|
|
|
| Larry Stein Oklahoma County Assessor (405) 713-1200 - Public Access System |
|
|
|
|
|
|
| Real Property Display - Screen Produced 4/7/2026 10:11:58 AM | ||||
|---|---|---|---|---|
| Account: R210411060 | Type: Residential | Location: |
1328 SWITCHGRASS RD |
|
| Building Name/Occupant: |
|
EDMOND |
||
| Owner Name 1: | CROWSON JAMES W & LORI A |
Parcel PIN#: |
3610-21-041-1060 |
|
| Owner Name 2: | 1/4 section #: |
3610 |
||
| Owner Name 3: | Parent Acct: |
3610-16-851-1310 |
||
| Billing Address: | 1328 SWITCHGRASS RD | Tax District: |
|
|
| City, State, Zip | EDMOND, OK 73013-9721 | School System: |
Edmond #12 |
|
|
Country: (If noted) |
Land Size: |
0.2227 Acres |
||
|
Land Value: 60,638 |
|
|||
|
Sect 3-T13N-R3W Qtr SE |
HIDDEN PRAIRIE AT KELLEY POINTE SECOND
Block
001
Lot
007
|
|||
| Full Legal Description: HIDDEN PRAIRIE AT KELLEY POINTE SECOND 001 007 |
| Photo & Sketch (if available) | Comp Sales (ordered by relevancy) |
|
||||||||||||||||||
|
||||||||||||||||||||
| Value History (*The County Treasurer 405-713-1300 posts & collects actual tax amounts. Contact information HERE) | |||||||||||||
|---|---|---|---|---|---|---|---|---|---|---|---|---|---|
| Year | Market Value | Taxable Mkt Value | Gross Assessed | Exemption | Net Assessed | Millage | Est. Tax | Tax Savings | |||||
|
2026 |
352,000 |
297,351 |
32,708 |
32,708 |
0 |
105.16 |
$0 |
$4,072 |
|||||
|
2025 |
362,500 |
288,691 |
31,755 |
31,755 |
0 |
105.16 |
$0 |
$4,193 |
|||||
|
2024 |
344,500 |
280,283 |
30,830 |
30,830 |
0 |
105.03 |
$0 |
$3,980 |
|||||
|
2023 |
345,500 |
272,120 |
29,932 |
29,932 |
0 |
104.24 |
$0 |
$3,962 |
|||||
|
2022 |
287,000 |
264,195 |
29,061 |
29,061 |
0 |
104.64 |
$0 |
$3,303 |
|||||
| Property Account Status/Adjustments/Exemptions | ||
|---|---|---|
| Account # | Exemption Description | Amount |
|
R210411060 |
100% DAV Exemption |
100 |
|
R210411060 |
DAV Homestead |
0 |
|
R210411060 |
3% Cap Homestead |
0 |
| Property Deed Transaction History (Recorded in the County Clerk's Office) | |||||||
|---|---|---|---|---|---|---|---|
| Date | Type | Book | Page | Price | Grantor | Grantee | |
|
12/19/2014 |
|
Deeds |
$238,000 |
D R HORTON TEXAS LTD |
CROWSON JAMES W & LORI A |
||
|
2/27/2013 |
|
Mult Parcel |
$612,000 |
KELLEY POINTE DEVELOPMENT CO INC |
DR HORTON TEXAS LTD |
||
| Last Mailed Notice of Value (N.O.V.) Information/History | ||||||||
|---|---|---|---|---|---|---|---|---|
| Year | Date | Market Value | Taxable Market Value | Gross Assessed | Exemption | Net Assessed | ||
|
2026 |
02/23/2026 |
352,000 |
297,351 |
32,708 |
32,708 |
0 |
||
|
2025 |
02/14/2025 |
362,500 |
288,691 |
31,755 |
31,755 |
0 |
||
|
2024 |
02/13/2024 |
344,500 |
280,283 |
30,830 |
30,830 |
0 |
||
|
2023 |
02/14/2023 |
345,500 |
272,120 |
29,932 |
29,932 |
0 |
||
|
2022 |
03/15/2022 |
287,000 |
269,325 |
29,625 |
0 |
29,625 |
||
| Property Building Permit History | ||||||
|---|---|---|---|---|---|---|
| Issued | Permit # | Provided by | Bldg # | Description | Est Construction Cost | Status |
|
4/7/2014 |
10462536 |
EDMOND |
1 |
Main Dwellin |
100,270 |
Inactive |
| Click button on building number to access detailed information: | ||||||
|---|---|---|---|---|---|---|
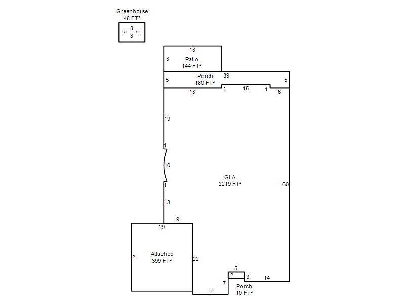
| Bldg # | Vacant/Improved Land | Bldg Description | Year Built | SqFt | # Stories | |
|
1 |
Improved |
Ranch 1 Story |
2014 |
2,219 |
1 Stories |
|