|
|
|
| Larry Stein Oklahoma County Assessor (405) 713-1200 - Public Access System |
|
|
|
|
|
|
| Real Property Display - Screen Produced 4/7/2026 10:23:55 AM | ||||
|---|---|---|---|---|
| Account: R210411160 | Type: Residential | Location: |
1524 SWITCHGRASS RD |
|
| Building Name/Occupant: |
|
EDMOND |
||
| Owner Name 1: | PADILLA KASIE N & RYAN CHRISTIAN A |
Parcel PIN#: |
3610-21-041-1160 |
|
| Owner Name 2: | 1/4 section #: |
3610 |
||
| Owner Name 3: | Parent Acct: |
3610-16-851-1310 |
||
| Billing Address: | 1524 SWITCHGRASS RD | Tax District: |
|
|
| City, State, Zip | EDMOND , OK 73013 | School System: |
Edmond #12 |
|
|
Country: (If noted) |
Land Size: |
0.3271 Acres |
||
|
Land Value: 60,735 |
|
|||
|
Sect 3-T13N-R3W Qtr SE |
HIDDEN PRAIRIE AT KELLEY POINTE SECOND
Block
001
Lot
017
|
|||
| Full Legal Description: HIDDEN PRAIRIE AT KELLEY POINTE SECOND 001 017 |
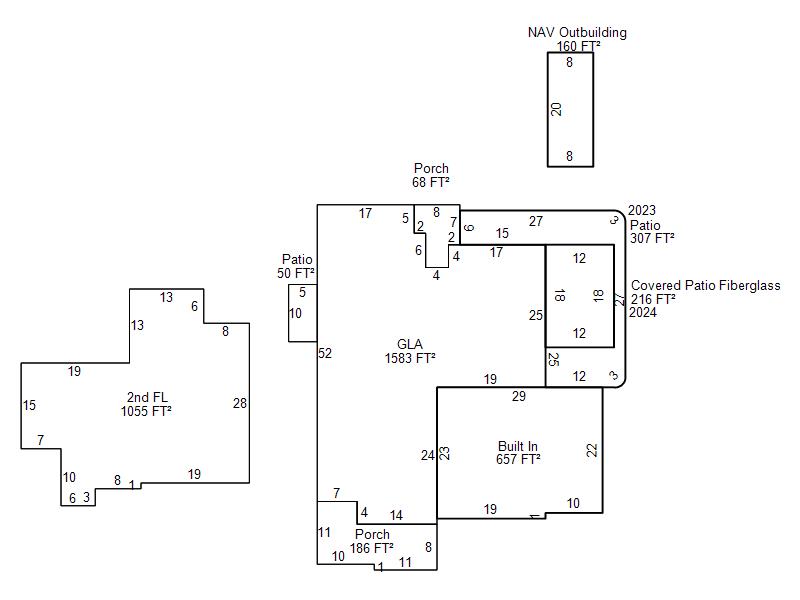
| Photo & Sketch (if available) | Comp Sales (ordered by relevancy) |
|
||||||||||||||||||
|
||||||||||||||||||||
| Value History (*The County Treasurer 405-713-1300 posts & collects actual tax amounts. Contact information HERE) | |||||||||||||
|---|---|---|---|---|---|---|---|---|---|---|---|---|---|
| Year | Market Value | Taxable Mkt Value | Gross Assessed | Exemption | Net Assessed | Millage | Est. Tax | Tax Savings | |||||
|
2026 |
435,000 |
435,000 |
47,850 |
1,000 |
46,850 |
105.16 |
$4,927 |
$105 |
|||||
|
2025 |
434,500 |
431,570 |
47,472 |
1,000 |
46,472 |
105.16 |
$4,887 |
$139 |
|||||
|
2024 |
419,000 |
419,000 |
46,090 |
0 |
46,090 |
105.03 |
$4,841 |
$0 |
|||||
|
2023 |
418,500 |
418,500 |
46,035 |
0 |
46,035 |
104.24 |
$4,799 |
$0 |
|||||
|
2022 |
335,500 |
309,000 |
33,990 |
1,000 |
32,990 |
104.64 |
$3,452 |
$410 |
|||||
| Property Account Status/Adjustments/Exemptions | ||
|---|---|---|
| Account # | Exemption Description | Amount |
|
R210411160 |
Homestead |
1,000 |
|
R210411160 |
3% Cap Homestead |
0 |
| Property Deed Transaction History (Recorded in the County Clerk's Office) | |||||||
|---|---|---|---|---|---|---|---|
| Date | Type | Book | Page | Price | Grantor | Grantee | |
|
10/3/2022 |
|
Deeds |
$429,000 |
LOGSDON HOMES LLC |
PADILLA KASIE N & RYAN CHRISTIAN A |
||
|
6/24/2022 |
|
Deeds |
$291,000 |
CLIFFORD STEVEN D & TRACY D TRS |
LOGSDON HOMES LLC |
||
|
6/24/2015 |
|
Deeds |
$0 |
CLIFFORD STEVEN D & TRACY D |
CLIFFORD STEVEN D & TRACY D TRS |
||
|
8/21/2013 |
|
Deeds |
$254,500 |
DR HORTON TEXAS LTD |
CLIFFORD STEVEN D & TRACY D |
||
|
8/30/2012 |
|
Mult Parcel |
$471,000 |
KELLEY POINTE DEVELOPMENT CO INC |
DR HORTON TEXAS LTD |
||
| Last Mailed Notice of Value (N.O.V.) Information/History | ||||||||
|---|---|---|---|---|---|---|---|---|
| Year | Date | Market Value | Taxable Market Value | Gross Assessed | Exemption | Net Assessed | ||
|
2026 |
02/23/2026 |
435,000 |
435,000 |
47,850 |
1,000 |
46,850 |
||
|
2025 |
02/14/2025 |
434,500 |
434,500 |
47,795 |
0 |
47,795 |
||
|
2024 |
02/13/2024 |
419,000 |
419,000 |
46,090 |
0 |
46,090 |
||
|
2023 |
02/14/2023 |
418,500 |
418,500 |
46,035 |
0 |
46,035 |
||
|
2022 |
03/15/2022 |
335,500 |
309,000 |
33,990 |
1,000 |
32,990 |
||
| Property Building Permit History | ||||||
|---|---|---|---|---|---|---|
| Issued | Permit # | Provided by | Bldg # | Description | Est Construction Cost | Status |
|
12/18/2012 |
10447038 |
EDMOND |
1 |
Main Dwellin |
92,389 |
Inactive |
| Click button on building number to access detailed information: | ||||||
|---|---|---|---|---|---|---|
| Bldg # | Vacant/Improved Land | Bldg Description | Year Built | SqFt | # Stories | |
|
1 |
Improved |
2 Story |
2013 |
2,638 |
2 Stories |
|