|
|
|
| Larry Stein Oklahoma County Assessor (405) 713-1200 - Public Access System |
|
|
|
|
|
|
| Real Property Display - Screen Produced 4/7/2026 10:11:58 AM | ||||
|---|---|---|---|---|
| Account: R210411230 | Type: Residential | Location: |
2917 MARIGOLD LN |
|
| Building Name/Occupant: |
|
EDMOND |
||
| Owner Name 1: | DELK KEVIN LANCE |
Parcel PIN#: |
3610-21-041-1230 |
|
| Owner Name 2: | 1/4 section #: |
3610 |
||
| Owner Name 3: | Parent Acct: |
3610-16-851-1310 |
||
| Billing Address: | 2917 MARIGOLD LN | Tax District: |
|
|
| City, State, Zip | EDMOND, OK 73013-9315 | School System: |
Edmond #12 |
|
|
Country: (If noted) |
Land Size: |
0.2015 Acres |
||
|
Land Value: 54,844 |
|
|||
|
Sect 3-T13N-R3W Qtr SE |
HIDDEN PRAIRIE AT KELLEY POINTE SECOND
Block
001
Lot
024
|
|||
| Full Legal Description: HIDDEN PRAIRIE AT KELLEY POINTE SECOND 001 024 |
| Photo & Sketch (if available) | Comp Sales (ordered by relevancy) |
|
||||||||||||||||||
|
||||||||||||||||||||
| Value History (*The County Treasurer 405-713-1300 posts & collects actual tax amounts. Contact information HERE) | |||||||||||||
|---|---|---|---|---|---|---|---|---|---|---|---|---|---|
| Year | Market Value | Taxable Mkt Value | Gross Assessed | Exemption | Net Assessed | Millage | Est. Tax | Tax Savings | |||||
|
2026 |
399,000 |
351,856 |
38,703 |
1,000 |
37,703 |
105.16 |
$3,965 |
$651 |
|||||
|
2025 |
412,500 |
341,608 |
37,576 |
1,000 |
36,576 |
105.16 |
$3,846 |
$925 |
|||||
|
2024 |
391,000 |
331,659 |
36,482 |
0 |
36,482 |
105.03 |
$3,832 |
$686 |
|||||
|
2023 |
390,000 |
315,866 |
34,744 |
0 |
34,744 |
104.24 |
$3,622 |
$850 |
|||||
|
2022 |
322,000 |
300,825 |
33,090 |
0 |
33,090 |
104.64 |
$3,463 |
$244 |
|||||
| Property Account Status/Adjustments/Exemptions | ||
|---|---|---|
| Account # | Exemption Description | Amount |
|
R210411230 |
Homestead |
1,000 |
|
R210411230 |
3% Cap Homestead |
0 |
| Property Deed Transaction History (Recorded in the County Clerk's Office) | |||||||
|---|---|---|---|---|---|---|---|
| Date | Type | Book | Page | Price | Grantor | Grantee | |
|
9/3/2015 |
|
Deeds |
$265,000 |
AHLUWALIA SUMIT MANNE BARKHA |
DELK KEVIN LANCE |
||
|
8/7/2012 |
|
Deeds |
$233,000 |
FIRST STAR HOMES INC |
AHLUWALIA SUMIT MANNE BARKHA |
||
|
3/2/2012 |
|
Deeds |
$36,000 |
KELLEY POINTE DEVELOPMENT CO INC |
FIRST STAR HOMES INC |
||
| Last Mailed Notice of Value (N.O.V.) Information/History | ||||||||
|---|---|---|---|---|---|---|---|---|
| Year | Date | Market Value | Taxable Market Value | Gross Assessed | Exemption | Net Assessed | ||
|
2026 |
02/23/2026 |
399,000 |
351,856 |
38,703 |
1,000 |
37,703 |
||
|
2025 |
02/14/2025 |
412,500 |
341,608 |
37,576 |
1,000 |
36,576 |
||
|
2024 |
02/13/2024 |
391,000 |
331,659 |
36,482 |
0 |
36,482 |
||
|
2023 |
02/14/2023 |
390,000 |
315,866 |
34,744 |
0 |
34,744 |
||
|
2022 |
03/15/2022 |
322,000 |
300,825 |
33,090 |
0 |
33,090 |
||
| Property Building Permit History | ||||||
|---|---|---|---|---|---|---|
| Issued | Permit # | Provided by | Bldg # | Description | Est Construction Cost | Status |
|
4/20/2012 |
10440624 |
EDMOND |
1 |
Main Dwellin |
220,000 |
Inactive |
| Click button on building number to access detailed information: | ||||||
|---|---|---|---|---|---|---|
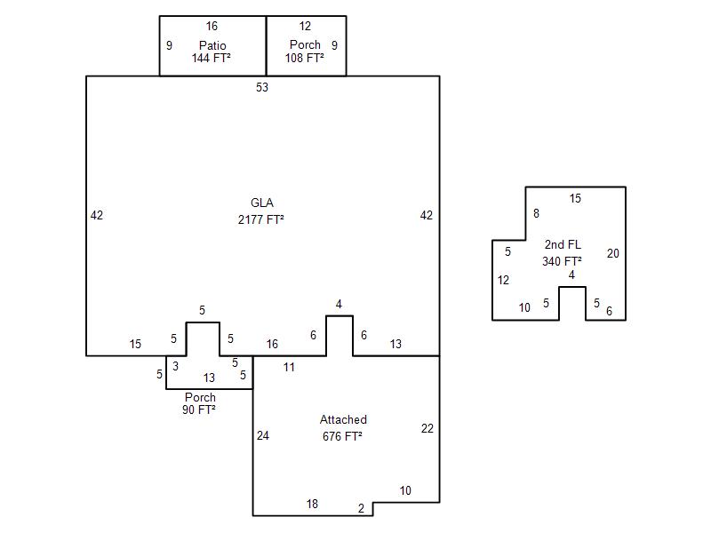
| Bldg # | Vacant/Improved Land | Bldg Description | Year Built | SqFt | # Stories | |
|
1 |
Improved |
1½ Story Fin |
2012 |
2,517 |
1.5 Stories |
|