|
|
|
| Larry Stein Oklahoma County Assessor (405) 713-1200 - Public Access System |
|
|
|
|
|
|
| Real Property Display - Screen Produced 4/7/2026 10:13:04 AM | ||||
|---|---|---|---|---|
| Account: R210411240 | Type: Residential | Location: |
2909 MARIGOLD LN |
|
| Building Name/Occupant: |
|
EDMOND |
||
| Owner Name 1: | RAMSEY BRIAN D |
Parcel PIN#: |
3610-21-041-1240 |
|
| Owner Name 2: | 1/4 section #: |
3610 |
||
| Owner Name 3: | Parent Acct: |
3610-16-851-1310 |
||
| Billing Address: | 2909 MARIGOLD LN | Tax District: |
|
|
| City, State, Zip | EDMOND, OK 73013 | School System: |
Edmond #12 |
|
|
Country: (If noted) |
UNITED STATES |
Land Size: |
0.2015 Acres |
|
|
Land Value: 54,844 |
|
|||
|
Sect 3-T13N-R3W Qtr SE |
HIDDEN PRAIRIE AT KELLEY POINTE SECOND
Block
001
Lot
025
|
|||
| Full Legal Description: HIDDEN PRAIRIE AT KELLEY POINTE SECOND 001 025 |
| Photo & Sketch (if available) | Comp Sales (ordered by relevancy) |
|
||||||||||||||||||
|
||||||||||||||||||||
| Value History (*The County Treasurer 405-713-1300 posts & collects actual tax amounts. Contact information HERE) | |||||||||||||
|---|---|---|---|---|---|---|---|---|---|---|---|---|---|
| Year | Market Value | Taxable Mkt Value | Gross Assessed | Exemption | Net Assessed | Millage | Est. Tax | Tax Savings | |||||
|
2026 |
385,000 |
319,378 |
35,131 |
35,131 |
0 |
105.16 |
$0 |
$4,453 |
|||||
|
2025 |
397,000 |
310,076 |
34,107 |
34,107 |
0 |
105.16 |
$0 |
$4,592 |
|||||
|
2024 |
376,500 |
301,045 |
33,114 |
33,114 |
0 |
105.03 |
$0 |
$4,350 |
|||||
|
2023 |
376,500 |
292,277 |
32,150 |
32,150 |
0 |
104.24 |
$0 |
$4,317 |
|||||
|
2022 |
311,500 |
283,765 |
31,214 |
31,214 |
0 |
104.64 |
$0 |
$3,585 |
|||||
| Property Account Status/Adjustments/Exemptions | ||
|---|---|---|
| Account # | Exemption Description | Amount |
|
R210411240 |
5% Capped Account |
0 |
| Property Deed Transaction History (Recorded in the County Clerk's Office) | |||||||
|---|---|---|---|---|---|---|---|
| Date | Type | Book | Page | Price | Grantor | Grantee | |
|
10/22/2019 |
|
Deeds |
$267,000 |
NEHME OMAR & MADONA AZAR |
RAMSEY BRIAN D |
||
|
8/18/2011 |
|
Deeds |
$0 |
NEHME OMAR |
NEHME OMAR & MADONA AZAR |
||
|
6/14/2011 |
|
Deeds |
$249,000 |
FIRST STAR HOMES INC |
NEHME OMAR |
||
|
1/28/2011 |
|
Deeds |
$36,000 |
KELLEY POINTE DEVELOPMENT CO INC |
FIRST STAR HOMES INC |
||
| Last Mailed Notice of Value (N.O.V.) Information/History | ||||||||
|---|---|---|---|---|---|---|---|---|
| Year | Date | Market Value | Taxable Market Value | Gross Assessed | Exemption | Net Assessed | ||
|
2026 |
02/23/2026 |
385,000 |
319,378 |
35,131 |
35,131 |
0 |
||
|
2025 |
02/14/2025 |
397,000 |
310,076 |
34,107 |
34,107 |
0 |
||
|
2024 |
02/13/2024 |
376,500 |
301,045 |
33,114 |
33,114 |
0 |
||
|
2023 |
02/14/2023 |
376,500 |
292,277 |
32,150 |
32,150 |
0 |
||
|
2022 |
03/15/2022 |
311,500 |
283,765 |
31,214 |
31,214 |
0 |
||
| Property Building Permit History | ||||||
|---|---|---|---|---|---|---|
| Issued | Permit # | Provided by | Bldg # | Description | Est Construction Cost | Status |
|
2/1/2011 |
10424198 |
EDMOND |
1 |
Main Dwellin |
240,000 |
Inactive |
| Click button on building number to access detailed information: | ||||||
|---|---|---|---|---|---|---|
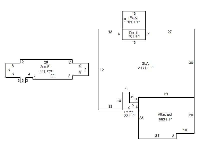
| Bldg # | Vacant/Improved Land | Bldg Description | Year Built | SqFt | # Stories | |
|
1 |
Improved |
1½ Story Fin |
2011 |
2,478 |
1.5 Stories |
|