|
|
|
| Larry Stein Oklahoma County Assessor (405) 713-1200 - Public Access System |
|
|
|
|
|
|
| Real Property Display - Screen Produced 4/7/2026 10:12:20 AM | ||||
|---|---|---|---|---|
| Account: R210411310 | Type: Residential | Location: |
1501 CONEFLOWER RD |
|
| Building Name/Occupant: |
|
EDMOND |
||
| Owner Name 1: | GONZALES BRIAN M & SARA K |
Parcel PIN#: |
3610-21-041-1310 |
|
| Owner Name 2: | 1/4 section #: |
3610 |
||
| Owner Name 3: | Parent Acct: |
3610-16-851-1310 |
||
| Billing Address: | 1501 CONEFLOWER RD | Tax District: |
|
|
| City, State, Zip | EDMOND, OK 73013 | School System: |
Edmond #12 |
|
|
Country: (If noted) |
Land Size: |
0.1865 Acres |
||
|
Land Value: 50,781 |
|
|||
|
Sect 3-T13N-R3W Qtr SE |
HIDDEN PRAIRIE AT KELLEY POINTE SECOND
Block
002
Lot
002
|
|||
| Full Legal Description: HIDDEN PRAIRIE AT KELLEY POINTE SECOND 002 002 |
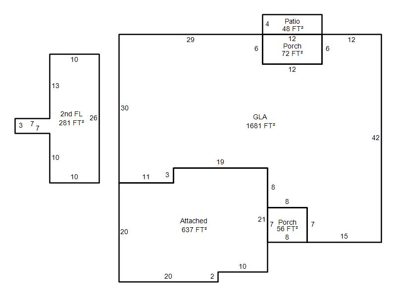
| Photo & Sketch (if available) | Comp Sales (ordered by relevancy) |
|
||||||||||||||||||
|
||||||||||||||||||||
| Value History (*The County Treasurer 405-713-1300 posts & collects actual tax amounts. Contact information HERE) | |||||||||||||
|---|---|---|---|---|---|---|---|---|---|---|---|---|---|
| Year | Market Value | Taxable Mkt Value | Gross Assessed | Exemption | Net Assessed | Millage | Est. Tax | Tax Savings | |||||
|
2026 |
319,000 |
294,819 |
32,429 |
0 |
32,429 |
105.16 |
$3,410 |
$280 |
|||||
|
2025 |
328,000 |
280,780 |
30,885 |
0 |
30,885 |
105.16 |
$3,248 |
$546 |
|||||
|
2024 |
311,000 |
267,410 |
29,414 |
0 |
29,414 |
105.03 |
$3,089 |
$504 |
|||||
|
2023 |
312,500 |
254,677 |
28,014 |
0 |
28,014 |
104.24 |
$2,920 |
$663 |
|||||
|
2022 |
258,500 |
242,550 |
26,680 |
0 |
26,680 |
104.64 |
$2,792 |
$184 |
|||||
| Property Account Status/Adjustments/Exemptions | ||
|---|---|---|
| Account # | Exemption Description | Amount |
|
R210411310 |
5% Capped Account |
0 |
| Property Deed Transaction History (Recorded in the County Clerk's Office) | |||||||
|---|---|---|---|---|---|---|---|
| Date | Type | Book | Page | Price | Grantor | Grantee | |
|
4/17/2019 |
|
Deeds |
$227,000 |
ARGO JIMMY & KENDRA |
GONZALES BRIAN M & SARA K |
||
|
5/16/2011 |
|
Deeds |
$190,000 |
FIRST STAR HOMES INC |
ARGO JIMMY & KENDRA |
||
|
8/20/2010 |
|
Mult Parcel |
$72,000 |
KELLEY POINTE DEVELOPMENT CO INC |
FIRST STAR HOMES INC |
||
| Last Mailed Notice of Value (N.O.V.) Information/History | ||||||||
|---|---|---|---|---|---|---|---|---|
| Year | Date | Market Value | Taxable Market Value | Gross Assessed | Exemption | Net Assessed | ||
|
2026 |
02/23/2026 |
319,000 |
294,819 |
32,429 |
0 |
32,429 |
||
|
2025 |
02/14/2025 |
328,000 |
280,780 |
30,885 |
0 |
30,885 |
||
|
2024 |
02/13/2024 |
311,000 |
267,410 |
29,414 |
0 |
29,414 |
||
|
2023 |
02/14/2023 |
312,500 |
254,677 |
28,014 |
0 |
28,014 |
||
|
2022 |
03/15/2022 |
258,500 |
242,550 |
26,680 |
0 |
26,680 |
||
| Property Building Permit History | ||||||
|---|---|---|---|---|---|---|
| Issued | Permit # | Provided by | Bldg # | Description | Est Construction Cost | Status |
|
8/1/2010 |
10409973 |
EDMOND |
1 |
Main Dwellin |
195,000 |
Inactive |
| Click button on building number to access detailed information: | ||||||
|---|---|---|---|---|---|---|
| Bldg # | Vacant/Improved Land | Bldg Description | Year Built | SqFt | # Stories | |
|
1 |
Improved |
1½ Story Fin |
2010 |
1,962 |
1.5 Stories |
|