|
|
|
| Larry Stein Oklahoma County Assessor (405) 713-1200 - Public Access System |
|
|
|
|
|
|
| Real Property Display - Screen Produced 4/7/2026 10:11:58 AM | ||||
|---|---|---|---|---|
| Account: R210411400 | Type: Residential | Location: |
1509 SWITCHGRASS RD |
|
| Building Name/Occupant: |
|
EDMOND |
||
| Owner Name 1: | CLARK STEPHANIE H TRS |
Parcel PIN#: |
3610-21-041-1400 |
|
| Owner Name 2: | CLARK STEPHANIE H REV TRUST | 1/4 section #: |
3610 |
|
| Owner Name 3: | Parent Acct: |
3610-16-851-1310 |
||
| Billing Address: | 1509 SWITCHGRASS RD | Tax District: |
|
|
| City, State, Zip | EDMOND, OK 73013-9723 | School System: |
Edmond #12 |
|
|
Country: (If noted) |
Land Size: |
0.3536 Acres |
||
|
Land Value: 60,735 |
|
|||
|
Sect 3-T13N-R3W Qtr SE |
HIDDEN PRAIRIE AT KELLEY POINTE SECOND
Block
003
Lot
000
|
|||
| Full Legal Description: HIDDEN PRAIRIE AT KELLEY POINTE SECOND 003 000 ALL OF LOT 7 & PT OF LOT 8 BEG SW/C LT 8 TH NW ALONG A CURVE 32.38FT ELY124.74FT SWLY124.02FT TO BEG |
| Photo & Sketch (if available) | Comp Sales (ordered by relevancy) |
|
||||||||||||||||||
|
||||||||||||||||||||
| Value History (*The County Treasurer 405-713-1300 posts & collects actual tax amounts. Contact information HERE) | |||||||||||||
|---|---|---|---|---|---|---|---|---|---|---|---|---|---|
| Year | Market Value | Taxable Mkt Value | Gross Assessed | Exemption | Net Assessed | Millage | Est. Tax | Tax Savings | |||||
|
2026 |
402,000 |
331,942 |
36,513 |
1,000 |
35,513 |
105.16 |
$3,735 |
$916 |
|||||
|
2025 |
413,500 |
322,274 |
35,449 |
1,000 |
34,449 |
105.16 |
$3,623 |
$1,160 |
|||||
|
2024 |
394,500 |
312,888 |
34,417 |
1,000 |
33,417 |
105.03 |
$3,510 |
$1,048 |
|||||
|
2023 |
394,500 |
303,775 |
33,415 |
1,000 |
32,415 |
104.24 |
$3,379 |
$1,145 |
|||||
|
2022 |
327,000 |
294,928 |
32,440 |
1,000 |
31,440 |
104.64 |
$3,290 |
$474 |
|||||
| Property Account Status/Adjustments/Exemptions | ||
|---|---|---|
| Account # | Exemption Description | Amount |
|
R210411400 |
Homestead |
1,000 |
|
R210411400 |
3% Cap Homestead |
0 |
| Property Deed Transaction History (Recorded in the County Clerk's Office) | |||||||
|---|---|---|---|---|---|---|---|
| Date | Type | Book | Page | Price | Grantor | Grantee | |
|
2/18/2014 |
|
Deeds |
$0 |
CLARK STEPHANIE H |
CLARK STEPHANIE H TRS |
||
|
12/4/2013 |
|
Deeds |
$237,500 |
FIRST STAR HOMES INC |
CLARK STEPHANIE H |
||
|
3/29/2013 |
|
Deeds |
$36,000 |
KELLEY POINTE DEVELOPMENT CO INC |
FIRST STAR HOMES INC |
||
| Last Mailed Notice of Value (N.O.V.) Information/History | ||||||||
|---|---|---|---|---|---|---|---|---|
| Year | Date | Market Value | Taxable Market Value | Gross Assessed | Exemption | Net Assessed | ||
|
2026 |
02/23/2026 |
402,000 |
331,942 |
36,513 |
1,000 |
35,513 |
||
|
2025 |
02/14/2025 |
413,500 |
322,274 |
35,449 |
1,000 |
34,449 |
||
|
2024 |
02/13/2024 |
394,500 |
312,888 |
34,417 |
1,000 |
33,417 |
||
|
2023 |
02/14/2023 |
394,500 |
303,775 |
33,415 |
1,000 |
32,415 |
||
|
2022 |
03/15/2022 |
327,000 |
294,928 |
32,440 |
1,000 |
31,440 |
||
| Property Building Permit History | ||||||
|---|---|---|---|---|---|---|
| Issued | Permit # | Provided by | Bldg # | Description | Est Construction Cost | Status |
|
4/4/2013 |
10451382 |
EDMOND |
1 |
Main Dwellin |
323,000 |
Inactive |
| Click button on building number to access detailed information: | ||||||
|---|---|---|---|---|---|---|
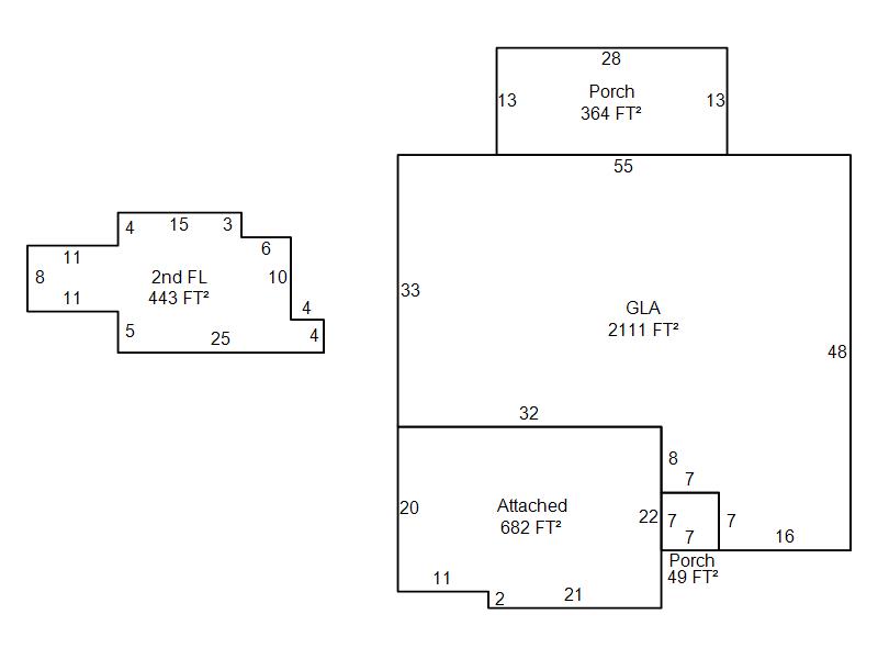
| Bldg # | Vacant/Improved Land | Bldg Description | Year Built | SqFt | # Stories | |
|
1 |
Improved |
1½ Story Fin |
2013 |
2,554 |
1.5 Stories |
|