|
|
|
| Larry Stein Oklahoma County Assessor (405) 713-1200 - Public Access System |
|
|
|
|
|
|
| Real Property Display - Screen Produced 4/4/2026 1:46:47 PM | ||||
|---|---|---|---|---|
| Account: R206861090 | Type: Residential | Location: |
15412 BRENTON HILLS AVE |
|
| Building Name/Occupant: |
|
OKLAHOMA CITY |
||
| Owner Name 1: | SALOUS MUHANAD & SARA |
Parcel PIN#: |
3615-20-686-1090 |
|
| Owner Name 2: | 1/4 section #: |
3615 |
||
| Owner Name 3: | Parent Acct: |
3615-14-452-1640 |
||
| Billing Address: | 15412 BRENTON HILLS AVE | Tax District: |
|
|
| City, State, Zip | EDMOND, OK 73013-1070 | School System: |
Edmond #12 |
|
|
Country: (If noted) |
Land Size: |
0.4271 Acres |
||
|
Land Value: 86,504 |
|
|||
|
Sect 4-T13N-R3W Qtr SW |
BRENTON HILLS SEC 7
Block
013
Lot
010
|
|||
| Full Legal Description: BRENTON HILLS SEC 7 013 010 |
| Photo & Sketch (if available) | Comp Sales (ordered by relevancy) |
|
||||||||||||||||||
|
||||||||||||||||||||
| Value History (*The County Treasurer 405-713-1300 posts & collects actual tax amounts. Contact information HERE) | |||||||||||||
|---|---|---|---|---|---|---|---|---|---|---|---|---|---|
| Year | Market Value | Taxable Mkt Value | Gross Assessed | Exemption | Net Assessed | Millage | Est. Tax | Tax Savings | |||||
|
2026 |
562,000 |
546,886 |
60,156 |
0 |
60,156 |
120.32 |
$7,238 |
$200 |
|||||
|
2025 |
553,000 |
520,844 |
57,292 |
0 |
57,292 |
120.32 |
$6,893 |
$426 |
|||||
|
2024 |
538,000 |
496,042 |
54,564 |
0 |
54,564 |
119.96 |
$6,546 |
$554 |
|||||
|
2023 |
547,500 |
472,421 |
51,965 |
0 |
51,965 |
119.02 |
$6,185 |
$983 |
|||||
|
2022 |
456,500 |
449,925 |
49,491 |
0 |
49,491 |
120.10 |
$5,944 |
$87 |
|||||
| Property Account Status/Adjustments/Exemptions | ||
|---|---|---|
| Account # | Exemption Description | Amount |
|
R206861090 |
5% Capped Account |
0 |
| Property Deed Transaction History (Recorded in the County Clerk's Office) | |||||||
|---|---|---|---|---|---|---|---|
| Date | Type | Book | Page | Price | Grantor | Grantee | |
|
9/15/2015 |
|
Deeds |
$433,000 |
JOZEFINY JAMES DAVID & ELONA W |
SALOUS MUHANAD & SARA |
||
|
6/6/2013 |
|
Deeds |
$405,000 |
SWEENEY DANIEL TIMOTHY & JACQUELINE RENE |
JOZEFINY JAMES DAVID & ELONA W |
||
|
2/22/2011 |
|
Deeds |
$398,000 |
THORNBROOKE HOMES LLC |
SWEENEY DANIEL TIMOTHY & JACQUELINE RENE |
||
|
10/1/2009 |
|
Mult Parcel |
$224,000 |
WINCHESTER DEVELOPMENT LLC |
THORNBROOKE HOMES LLC |
||
| Last Mailed Notice of Value (N.O.V.) Information/History | ||||||||
|---|---|---|---|---|---|---|---|---|
| Year | Date | Market Value | Taxable Market Value | Gross Assessed | Exemption | Net Assessed | ||
|
2026 |
02/23/2026 |
562,000 |
546,886 |
60,156 |
0 |
60,156 |
||
|
2025 |
02/14/2025 |
553,000 |
520,844 |
57,292 |
0 |
57,292 |
||
|
2024 |
02/13/2024 |
538,000 |
496,042 |
54,564 |
0 |
54,564 |
||
|
2023 |
02/14/2023 |
547,500 |
472,421 |
51,965 |
0 |
51,965 |
||
|
2022 |
03/15/2022 |
456,500 |
449,925 |
49,491 |
0 |
49,491 |
||
| Property Building Permit History | ||||||
|---|---|---|---|---|---|---|
| Issued | Permit # | Provided by | Bldg # | Description | Est Construction Cost | Status |
|
9/14/2009 |
10388361 |
OKLAHOMA CITY |
1 |
Main Dwellin |
300,000 |
Inactive |
| Click button on building number to access detailed information: | ||||||
|---|---|---|---|---|---|---|
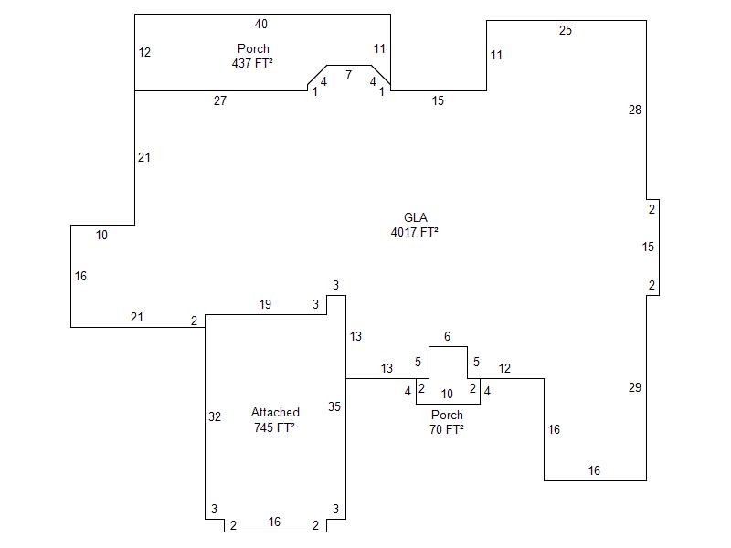
| Bldg # | Vacant/Improved Land | Bldg Description | Year Built | SqFt | # Stories | |
|
1 |
Improved |
Ranch 1 Story |
2010 |
4,017 |
1 Stories |
|