|
|
|
| Larry Stein Oklahoma County Assessor (405) 713-1200 - Public Access System |
|
|
|
|
|
|
| Real Property Display - Screen Produced 4/7/2026 11:32:52 AM | ||||
|---|---|---|---|---|
| Account: R205931120 | Type: Residential | Location: |
15212 BLUE JAY DR |
|
| Building Name/Occupant: |
|
OKLAHOMA CITY |
||
| Owner Name 1: | INNIS BRANDON |
Parcel PIN#: |
3622-20-593-1120 |
|
| Owner Name 2: | 1/4 section #: |
3622 |
||
| Owner Name 3: | Parent Acct: |
3622-16-851-1875 |
||
| Billing Address: | 10335 S DEGELOW RD | Tax District: |
|
|
| City, State, Zip | MILROY, IN 46156 | School System: |
Edmond #12 |
|
|
Country: (If noted) |
UNITED STATES |
Land Size: |
0.1653 Acres |
|
|
Land Value: 44,280 |
|
|||
|
Sect 6-T13N-R3W Qtr SE |
ROBIN RIDGE SEC 1
Block
001
Lot
013
|
|||
| Full Legal Description: ROBIN RIDGE SEC 1 001 013 |
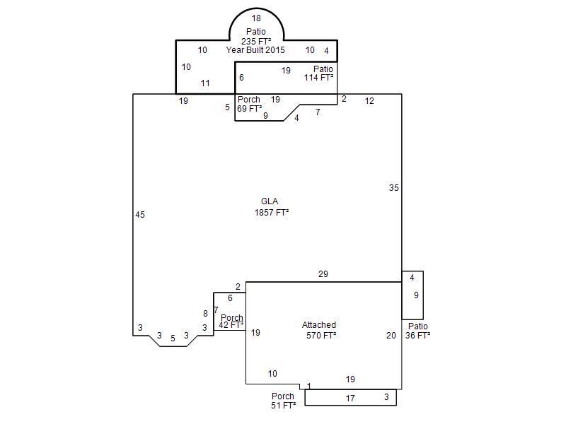
| Photo & Sketch (if available) | Comp Sales (ordered by relevancy) |
|
||||||||||||||||||
|
||||||||||||||||||||
| Value History (*The County Treasurer 405-713-1300 posts & collects actual tax amounts. Contact information HERE) | |||||||||||||
|---|---|---|---|---|---|---|---|---|---|---|---|---|---|
| Year | Market Value | Taxable Mkt Value | Gross Assessed | Exemption | Net Assessed | Millage | Est. Tax | Tax Savings | |||||
|
2026 |
294,500 |
274,398 |
30,183 |
0 |
30,183 |
120.32 |
$3,632 |
$266 |
|||||
|
2025 |
290,500 |
261,332 |
28,745 |
0 |
28,745 |
120.32 |
$3,459 |
$386 |
|||||
|
2024 |
283,000 |
248,888 |
27,377 |
0 |
27,377 |
119.96 |
$3,284 |
$450 |
|||||
|
2023 |
283,000 |
237,037 |
26,073 |
0 |
26,073 |
119.02 |
$3,103 |
$602 |
|||||
|
2022 |
246,500 |
225,750 |
24,832 |
0 |
24,832 |
120.10 |
$2,982 |
$274 |
|||||
| Property Account Status/Adjustments/Exemptions | ||
|---|---|---|
| Account # | Exemption Description | Amount |
|
R205931120 |
5% Capped Account |
0 |
| Property Deed Transaction History (Recorded in the County Clerk's Office) | |||||||
|---|---|---|---|---|---|---|---|
| Date | Type | Book | Page | Price | Grantor | Grantee | |
|
9/16/2010 |
|
Deeds |
$175,000 |
NASSRA REAL ESTATE LLC |
INNIS BRANDON |
||
|
7/28/2010 |
|
Deeds |
$148,000 |
WIENER MARK |
NASSRA REAL ESTATE LLC |
||
|
9/8/2006 |
|
Deeds |
$186,500 |
ROBIN RIDGE LLC |
WIENER MARK |
||
| Last Mailed Notice of Value (N.O.V.) Information/History | ||||||||
|---|---|---|---|---|---|---|---|---|
| Year | Date | Market Value | Taxable Market Value | Gross Assessed | Exemption | Net Assessed | ||
|
2026 |
02/23/2026 |
294,500 |
274,398 |
30,183 |
0 |
30,183 |
||
|
2025 |
02/14/2025 |
290,500 |
261,332 |
28,745 |
0 |
28,745 |
||
|
2024 |
02/13/2024 |
283,000 |
248,888 |
27,377 |
0 |
27,377 |
||
|
2023 |
02/14/2023 |
283,000 |
237,037 |
26,073 |
0 |
26,073 |
||
|
2022 |
03/15/2022 |
246,500 |
225,750 |
24,832 |
0 |
24,832 |
||
| Property Building Permit History | ||||||
|---|---|---|---|---|---|---|
| Issued | Permit # | Provided by | Bldg # | Description | Est Construction Cost | Status |
|
10/3/2005 |
10310691 |
OKLAHOMA CITY |
1 |
Main Dwellin |
174,000 |
Inactive |
| Click button on building number to access detailed information: | ||||||
|---|---|---|---|---|---|---|
| Bldg # | Vacant/Improved Land | Bldg Description | Year Built | SqFt | # Stories | |
|
1 |
Improved |
Ranch 1 Story |
2006 |
1,857 |
1 Stories |
|