|
|
|
| Larry Stein Oklahoma County Assessor (405) 713-1200 - Public Access System |
|
|
|
|
|
|
| Real Property Display - Screen Produced 4/7/2026 11:37:38 AM | ||||
|---|---|---|---|---|
| Account: R205931240 | Type: Residential | Location: |
2432 NW 151ST ST |
|
| Building Name/Occupant: |
|
OKLAHOMA CITY |
||
| Owner Name 1: | VARANUSUPAKUL WITCHAR |
Parcel PIN#: |
3622-20-593-1240 |
|
| Owner Name 2: | CHUONG HELEN HOA | 1/4 section #: |
3622 |
|
| Owner Name 3: | Parent Acct: |
3622-16-851-1875 |
||
| Billing Address: | 2432 NW 151ST ST | Tax District: |
|
|
| City, State, Zip | EDMOND, OK 73013-9233 | School System: |
Edmond #12 |
|
|
Country: (If noted) |
Land Size: |
0.2221 Acres |
||
|
Land Value: 46,000 |
|
|||
|
Sect 6-T13N-R3W Qtr SE |
ROBIN RIDGE SEC 1
Block
002
Lot
009
|
|||
| Full Legal Description: ROBIN RIDGE SEC 1 002 009 |
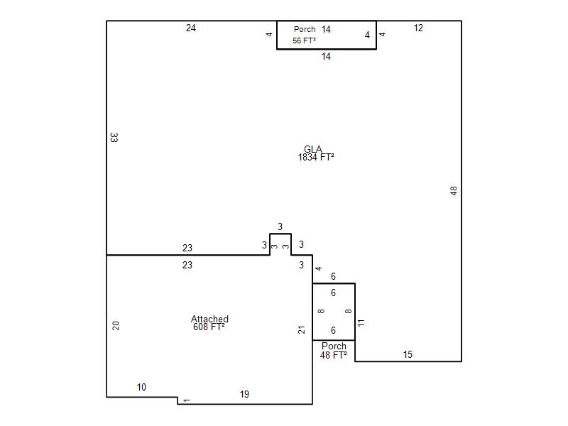
| Photo & Sketch (if available) | Comp Sales (ordered by relevancy) |
|
||||||||||||||||||
|
||||||||||||||||||||
| Value History (*The County Treasurer 405-713-1300 posts & collects actual tax amounts. Contact information HERE) | |||||||||||||
|---|---|---|---|---|---|---|---|---|---|---|---|---|---|
| Year | Market Value | Taxable Mkt Value | Gross Assessed | Exemption | Net Assessed | Millage | Est. Tax | Tax Savings | |||||
|
2026 |
304,000 |
243,584 |
26,793 |
1,000 |
25,793 |
120.32 |
$3,104 |
$920 |
|||||
|
2025 |
304,500 |
236,490 |
26,013 |
1,000 |
25,013 |
120.32 |
$3,010 |
$1,020 |
|||||
|
2024 |
292,000 |
229,602 |
25,255 |
1,000 |
24,255 |
119.96 |
$2,910 |
$943 |
|||||
|
2023 |
301,500 |
222,915 |
24,520 |
1,000 |
23,520 |
119.02 |
$2,799 |
$1,148 |
|||||
|
2022 |
264,000 |
216,423 |
23,806 |
1,000 |
22,806 |
120.10 |
$2,739 |
$749 |
|||||
| Property Account Status/Adjustments/Exemptions | ||
|---|---|---|
| Account # | Exemption Description | Amount |
|
R205931240 |
Homestead |
1,000 |
|
R205931240 |
3% Cap Homestead |
0 |
| Property Deed Transaction History (Recorded in the County Clerk's Office) | |||||||
|---|---|---|---|---|---|---|---|
| Date | Type | Book | Page | Price | Grantor | Grantee | |
|
9/4/2007 |
|
Deeds |
$188,500 |
ROBIN RIDGE LLC |
VARANUSUPAKUL WITCHAR |
||
| Last Mailed Notice of Value (N.O.V.) Information/History | ||||||||
|---|---|---|---|---|---|---|---|---|
| Year | Date | Market Value | Taxable Market Value | Gross Assessed | Exemption | Net Assessed | ||
|
2026 |
02/23/2026 |
304,000 |
243,584 |
26,793 |
1,000 |
25,793 |
||
|
2025 |
02/14/2025 |
304,500 |
236,490 |
26,013 |
1,000 |
25,013 |
||
|
2024 |
02/13/2024 |
292,000 |
229,602 |
25,255 |
1,000 |
24,255 |
||
|
2023 |
02/14/2023 |
301,500 |
222,915 |
24,520 |
1,000 |
23,520 |
||
|
2022 |
03/15/2022 |
264,000 |
216,423 |
23,806 |
1,000 |
22,806 |
||
| Property Building Permit History | ||||||
|---|---|---|---|---|---|---|
| Issued | Permit # | Provided by | Bldg # | Description | Est Construction Cost | Status |
|
5/8/2007 |
10338904 |
OKLAHOMA CITY |
1 |
Main Dwellin |
130,000 |
Inactive |
| Click button on building number to access detailed information: | ||||||
|---|---|---|---|---|---|---|
| Bldg # | Vacant/Improved Land | Bldg Description | Year Built | SqFt | # Stories | |
|
1 |
Improved |
Ranch 1 Story |
2007 |
1,834 |
1 Stories |
|