|
|
|
| Larry Stein Oklahoma County Assessor (405) 713-1200 - Public Access System |
|
|
|
|
|
|
| Real Property Display - Screen Produced 4/7/2026 11:28:07 AM | ||||
|---|---|---|---|---|
| Account: R205931290 | Type: Residential | Location: |
15217 CARDINAL NEST DR |
|
| Building Name/Occupant: |
|
OKLAHOMA CITY |
||
| Owner Name 1: | BACHMAN BRIAN & MEGAN |
Parcel PIN#: |
3622-20-593-1290 |
|
| Owner Name 2: | 1/4 section #: |
3622 |
||
| Owner Name 3: | Parent Acct: |
3622-16-851-1875 |
||
| Billing Address: | 15217 CARDINAL NEST DR | Tax District: |
|
|
| City, State, Zip | EDMOND , OK 73013 | School System: |
Edmond #12 |
|
|
Country: (If noted) |
Land Size: |
0.1625 Acres |
||
|
Land Value: 43,542 |
|
|||
|
Sect 6-T13N-R3W Qtr SE |
ROBIN RIDGE SEC 1
Block
002
Lot
014
|
|||
| Full Legal Description: ROBIN RIDGE SEC 1 002 014 |
| Photo & Sketch (if available) | Comp Sales (ordered by relevancy) |
|
||||||||||||||||||
|
||||||||||||||||||||
| Value History (*The County Treasurer 405-713-1300 posts & collects actual tax amounts. Contact information HERE) | |||||||||||||
|---|---|---|---|---|---|---|---|---|---|---|---|---|---|
| Year | Market Value | Taxable Mkt Value | Gross Assessed | Exemption | Net Assessed | Millage | Est. Tax | Tax Savings | |||||
|
2026 |
287,000 |
283,819 |
31,219 |
0 |
31,219 |
120.32 |
$3,756 |
$42 |
|||||
|
2025 |
283,000 |
270,304 |
29,732 |
0 |
29,732 |
120.32 |
$3,578 |
$168 |
|||||
|
2024 |
279,000 |
257,433 |
28,317 |
0 |
28,317 |
119.96 |
$3,397 |
$285 |
|||||
|
2023 |
280,000 |
245,175 |
26,969 |
0 |
26,969 |
119.02 |
$3,210 |
$456 |
|||||
|
2022 |
233,500 |
233,500 |
25,685 |
0 |
25,685 |
120.10 |
$3,085 |
$0 |
|||||
| Property Account Status/Adjustments/Exemptions | ||
|---|---|---|
| Account # | Exemption Description | Amount |
|
R205931290 |
5% Capped Account |
0 |
| Property Deed Transaction History (Recorded in the County Clerk's Office) | |||||||
|---|---|---|---|---|---|---|---|
| Date | Type | Book | Page | Price | Grantor | Grantee | |
|
1/29/2021 |
|
Deeds |
$228,000 |
SAIS TAMMY |
BACHMAN BRIAN & MEGAN |
||
|
5/15/2015 |
|
Deeds |
$205,000 |
ROBIN RIDGE INVESTMENTS LLC |
SAIS TAMMY |
||
|
7/1/2009 |
|
Hmstd Off & |
$0 |
ROBIN RIDGE LLC |
ROBIN RIDGE INVESTMENTS LLC |
||
| Last Mailed Notice of Value (N.O.V.) Information/History | ||||||||
|---|---|---|---|---|---|---|---|---|
| Year | Date | Market Value | Taxable Market Value | Gross Assessed | Exemption | Net Assessed | ||
|
2026 |
02/23/2026 |
287,000 |
283,819 |
31,219 |
0 |
31,219 |
||
|
2025 |
02/14/2025 |
283,000 |
270,304 |
29,732 |
0 |
29,732 |
||
|
2024 |
02/13/2024 |
279,000 |
257,433 |
28,317 |
0 |
28,317 |
||
|
2023 |
02/14/2023 |
280,000 |
245,175 |
26,969 |
0 |
26,969 |
||
|
2022 |
03/15/2022 |
233,500 |
233,500 |
25,685 |
0 |
25,685 |
||
| Property Building Permit History | ||||||
|---|---|---|---|---|---|---|
| Issued | Permit # | Provided by | Bldg # | Description | Est Construction Cost | Status |
|
8/31/2007 |
10342165 |
OKLAHOMA CITY |
1 |
Main Dwellin |
135,316 |
Inactive |
| Click button on building number to access detailed information: | ||||||
|---|---|---|---|---|---|---|
| Bldg # | Vacant/Improved Land | Bldg Description | Year Built | SqFt | # Stories | |
|
1 |
Improved |
Ranch 1 Story |
2008 |
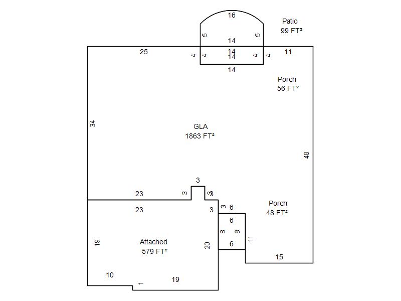
1,863 |
1 Stories |
|