|
|
|
| Larry Stein Oklahoma County Assessor (405) 713-1200 - Public Access System |
|
|
|
|
|
|
| Real Property Display - Screen Produced 4/7/2026 11:32:53 AM | ||||
|---|---|---|---|---|
| Account: R205931370 | Type: Residential | Location: |
2409 NW 151ST ST |
|
| Building Name/Occupant: |
|
OKLAHOMA CITY |
||
| Owner Name 1: | NOLAND SCOTT |
Parcel PIN#: |
3622-20-593-1370 |
|
| Owner Name 2: | NOLAND LAURA | 1/4 section #: |
3622 |
|
| Owner Name 3: | Parent Acct: |
3622-16-851-1875 |
||
| Billing Address: | 2409 NW 151ST ST | Tax District: |
|
|
| City, State, Zip | EDMOND, OK 73013-9227 | School System: |
Edmond #12 |
|
|
Country: (If noted) |
Land Size: |
0.1653 Acres |
||
|
Land Value: 44,280 |
|
|||
|
Sect 6-T13N-R3W Qtr SE |
ROBIN RIDGE SEC 1
Block
003
Lot
005
|
|||
| Full Legal Description: ROBIN RIDGE SEC 1 003 005 |
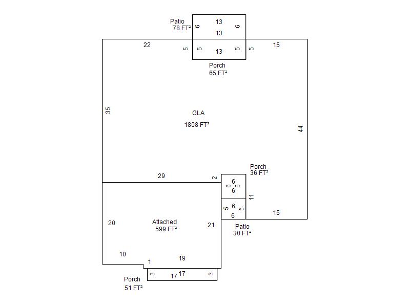
| Photo & Sketch (if available) | Comp Sales (ordered by relevancy) |
|
||||||||||||||||||
|
||||||||||||||||||||
| Value History (*The County Treasurer 405-713-1300 posts & collects actual tax amounts. Contact information HERE) | |||||||||||||
|---|---|---|---|---|---|---|---|---|---|---|---|---|---|
| Year | Market Value | Taxable Mkt Value | Gross Assessed | Exemption | Net Assessed | Millage | Est. Tax | Tax Savings | |||||
|
2026 |
281,000 |
257,169 |
28,288 |
0 |
28,288 |
120.32 |
$3,404 |
$315 |
|||||
|
2025 |
276,500 |
244,923 |
26,940 |
0 |
26,940 |
120.32 |
$3,242 |
$418 |
|||||
|
2024 |
273,000 |
233,260 |
25,657 |
0 |
25,657 |
119.96 |
$3,078 |
$524 |
|||||
|
2023 |
274,000 |
222,153 |
24,436 |
0 |
24,436 |
119.02 |
$2,908 |
$679 |
|||||
|
2022 |
239,000 |
211,575 |
23,273 |
0 |
23,273 |
120.10 |
$2,795 |
$362 |
|||||
| Property Account Status/Adjustments/Exemptions | ||
|---|---|---|
| Account # | Exemption Description | Amount |
|
R205931370 |
5% Capped Account |
0 |
| Property Deed Transaction History (Recorded in the County Clerk's Office) | |||||||
|---|---|---|---|---|---|---|---|
| Date | Type | Book | Page | Price | Grantor | Grantee | |
|
7/28/2017 |
|
Deeds |
$183,000 |
LEV ARI SHMUEL |
NOLAND SCOTT |
||
|
7/25/2017 |
|
Deeds |
$0 |
ARI SAM LEV BELKIN BARAK |
NOLAND SCOTT NOLAND LAURA |
||
|
7/10/2006 |
|
Deeds |
$175,000 |
ROBIN RIDGE LLC |
ARI SAM LEV BELKIN BARAK |
||
| Last Mailed Notice of Value (N.O.V.) Information/History | ||||||||
|---|---|---|---|---|---|---|---|---|
| Year | Date | Market Value | Taxable Market Value | Gross Assessed | Exemption | Net Assessed | ||
|
2026 |
02/23/2026 |
281,000 |
257,169 |
28,288 |
0 |
28,288 |
||
|
2025 |
02/14/2025 |
276,500 |
244,923 |
26,940 |
0 |
26,940 |
||
|
2024 |
02/13/2024 |
273,000 |
233,260 |
25,657 |
0 |
25,657 |
||
|
2023 |
02/14/2023 |
274,000 |
222,153 |
24,436 |
0 |
24,436 |
||
|
2022 |
03/15/2022 |
239,000 |
211,575 |
23,273 |
0 |
23,273 |
||
| Property Building Permit History | ||||||
|---|---|---|---|---|---|---|
| Issued | Permit # | Provided by | Bldg # | Description | Est Construction Cost | Status |
|
9/26/2005 |
10313044 |
OKLAHOMA CITY |
1 |
Main Dwellin |
175,000 |
Inactive |
| Click button on building number to access detailed information: | ||||||
|---|---|---|---|---|---|---|
| Bldg # | Vacant/Improved Land | Bldg Description | Year Built | SqFt | # Stories | |
|
1 |
Improved |
Ranch 1 Story |
2006 |
1,808 |
1 Stories |
|