|
|
|
| Larry Stein Oklahoma County Assessor (405) 713-1200 - Public Access System |
|
|
|
|
|
|
| Real Property Display - Screen Produced 4/7/2026 11:37:38 AM | ||||
|---|---|---|---|---|
| Account: R205931620 | Type: Residential | Location: |
2405 NW 152ND ST |
|
| Building Name/Occupant: |
|
OKLAHOMA CITY |
||
| Owner Name 1: | BENNETT MORGAN LINDSEY |
Parcel PIN#: |
3622-20-593-1620 |
|
| Owner Name 2: | 1/4 section #: |
3622 |
||
| Owner Name 3: | Parent Acct: |
3622-16-851-1875 |
||
| Billing Address: | 2405 NW 152ND ST | Tax District: |
|
|
| City, State, Zip | EDMOND, OK 73013-8911 | School System: |
Edmond #12 |
|
|
Country: (If noted) |
Land Size: |
0.1653 Acres |
||
|
Land Value: 44,280 |
|
|||
|
Sect 6-T13N-R3W Qtr SE |
ROBIN RIDGE SEC 1
Block
004
Lot
006
|
|||
| Full Legal Description: ROBIN RIDGE SEC 1 004 006 |
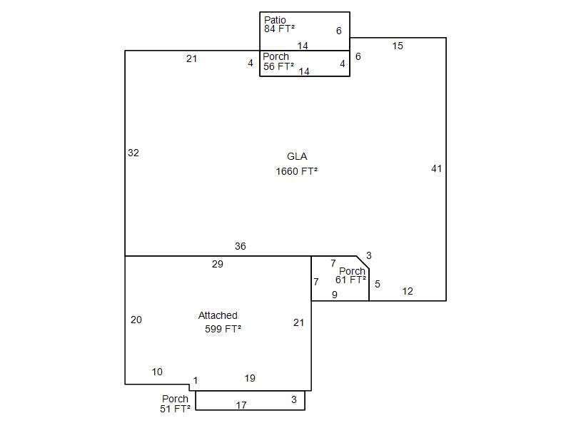
| Photo & Sketch (if available) | Comp Sales (ordered by relevancy) |
|
||||||||||||||||||
|
||||||||||||||||||||
| Value History (*The County Treasurer 405-713-1300 posts & collects actual tax amounts. Contact information HERE) | |||||||||||||
|---|---|---|---|---|---|---|---|---|---|---|---|---|---|
| Year | Market Value | Taxable Mkt Value | Gross Assessed | Exemption | Net Assessed | Millage | Est. Tax | Tax Savings | |||||
|
2026 |
266,000 |
266,000 |
29,260 |
0 |
29,260 |
120.32 |
$3,521 |
$0 |
|||||
|
2025 |
262,000 |
236,414 |
26,005 |
0 |
26,005 |
120.32 |
$3,129 |
$339 |
|||||
|
2024 |
258,000 |
225,157 |
24,766 |
0 |
24,766 |
119.96 |
$2,971 |
$433 |
|||||
|
2023 |
259,000 |
214,436 |
23,587 |
0 |
23,587 |
119.02 |
$2,807 |
$583 |
|||||
|
2022 |
226,000 |
204,225 |
22,464 |
0 |
22,464 |
120.10 |
$2,698 |
$288 |
|||||
| Property Account Status/Adjustments/Exemptions | ||||||
|---|---|---|---|---|---|---|
| Account # | Exemption Description | Amount | ||||
| No adjustment/exemption records returned. | ||||||
| Property Deed Transaction History (Recorded in the County Clerk's Office) | |||||||
|---|---|---|---|---|---|---|---|
| Date | Type | Book | Page | Price | Grantor | Grantee | |
|
1/13/2025 |
|
Deeds |
$300,000 |
SCOTT PETER B |
BENNETT MORGAN LINDSEY |
||
|
1/4/2011 |
|
Deeds |
$0 |
SCOTT FAMILY TRUST |
SCOTT PETER B |
||
|
3/17/2010 |
|
Deeds |
$0 |
SCOTT PETER B & CHERYL L |
SCOTT PETER B |
||
|
2/27/2006 |
|
Deeds |
$170,500 |
ROBIN RIDGE LLC |
SCOTT PETER B & CHERYL L |
||
| Last Mailed Notice of Value (N.O.V.) Information/History | ||||||||
|---|---|---|---|---|---|---|---|---|
| Year | Date | Market Value | Taxable Market Value | Gross Assessed | Exemption | Net Assessed | ||
|
2026 |
02/23/2026 |
266,000 |
266,000 |
29,260 |
0 |
29,260 |
||
|
2025 |
02/14/2025 |
262,000 |
236,414 |
26,005 |
0 |
26,005 |
||
|
2025 |
03/28/2025 |
262,000 |
236,414 |
26,005 |
0 |
26,005 |
||
|
2024 |
02/13/2024 |
258,000 |
225,157 |
24,766 |
0 |
24,766 |
||
|
2023 |
02/14/2023 |
259,000 |
214,436 |
23,587 |
0 |
23,587 |
||
| Property Building Permit History | ||||||
|---|---|---|---|---|---|---|
| Issued | Permit # | Provided by | Bldg # | Description | Est Construction Cost | Status |
|
10/4/2005 |
10310688 |
OKLAHOMA CITY |
1 |
Main Dwellin |
156,000 |
Inactive |
| Click button on building number to access detailed information: | ||||||
|---|---|---|---|---|---|---|
| Bldg # | Vacant/Improved Land | Bldg Description | Year Built | SqFt | # Stories | |
|
1 |
Improved |
Ranch 1 Story |
2005 |
1,660 |
1 Stories |
|