|
|
|
| Larry Stein Oklahoma County Assessor (405) 713-1200 - Public Access System |
|
|
|
|
|
|
| Real Property Display - Screen Produced 4/9/2026 8:12:04 AM | ||||
|---|---|---|---|---|
| Account: R205331190 | Type: Residential | Location: |
2625 NW 151ST ST |
|
| Building Name/Occupant: |
|
OKLAHOMA CITY |
||
| Owner Name 1: | MILLS LINDELL J TRS |
Parcel PIN#: |
3623-20-533-1190 |
|
| Owner Name 2: | MILLS LINDELL J LIVING TRUST | 1/4 section #: |
3623 |
|
| Owner Name 3: | Parent Acct: |
3623-14-053-6500 |
||
| Billing Address: | 2625 NW 151ST ST | Tax District: |
|
|
| City, State, Zip | EDMOND, OK 73013-9222 | School System: |
Edmond #12 |
|
|
Country: (If noted) |
Land Size: |
0.2033 Acres |
||
|
Land Value: 56,672 |
|
|||
|
Sect 6-T13N-R3W Qtr SW |
THE GARDENS OF BLUE QUAIL RIDGE PH III
Block
010
Lot
000
|
|||
| Full Legal Description: THE GARDENS OF BLUE QUAIL RIDGE PH III 010 000 E7FT OF LOT 2 & ALL OF LOT 3 |
| Photo & Sketch (if available) | Comp Sales (ordered by relevancy) |
|
||||||||||||||||||
|
||||||||||||||||||||
| Value History (*The County Treasurer 405-713-1300 posts & collects actual tax amounts. Contact information HERE) | |||||||||||||
|---|---|---|---|---|---|---|---|---|---|---|---|---|---|
| Year | Market Value | Taxable Mkt Value | Gross Assessed | Exemption | Net Assessed | Millage | Est. Tax | Tax Savings | |||||
|
2026 |
384,000 |
230,826 |
25,390 |
1,000 |
24,390 |
120.32 |
$2,935 |
$2,148 |
|||||
|
2025 |
375,000 |
230,826 |
25,390 |
1,000 |
24,390 |
120.32 |
$2,935 |
$2,028 |
|||||
|
2024 |
357,500 |
230,826 |
25,390 |
1,000 |
24,390 |
119.96 |
$2,926 |
$1,791 |
|||||
|
2023 |
345,000 |
230,826 |
25,390 |
1,000 |
24,390 |
119.02 |
$2,903 |
$1,614 |
|||||
|
2022 |
305,500 |
230,826 |
25,390 |
1,000 |
24,390 |
120.10 |
$2,929 |
$1,107 |
|||||
| Property Account Status/Adjustments/Exemptions | ||
|---|---|---|
| Account # | Exemption Description | Amount |
|
R205331190 |
Freeze Senior Valuation |
0 |
|
R205331190 |
3% Cap Homestead |
0 |
|
R205331190 |
Homestead |
1,000 |
| Property Deed Transaction History (Recorded in the County Clerk's Office) | |||||||
|---|---|---|---|---|---|---|---|
| Date | Type | Book | Page | Price | Grantor | Grantee | |
|
11/10/2005 |
|
Deeds |
$265,000 |
BLUE QUAIL HOMES INC |
MILLS LINDELL J TRS |
||
|
9/27/2005 |
|
Other |
$0 |
DALEDON INC |
BLUE QUAIL HOMES INC |
||
|
9/26/2005 |
|
Other |
$0 |
BLUE QUAIL RIDGE ENTERPRISES LTD |
DALEDON INC |
||
| Last Mailed Notice of Value (N.O.V.) Information/History | ||||||||
|---|---|---|---|---|---|---|---|---|
| Year | Date | Market Value | Taxable Market Value | Gross Assessed | Exemption | Net Assessed | ||
|
2026 |
02/23/2026 |
384,000 |
230,826 |
25,390 |
1,000 |
24,390 |
||
|
2025 |
02/14/2025 |
375,000 |
230,826 |
25,390 |
1,000 |
24,390 |
||
|
2024 |
02/13/2024 |
357,500 |
230,826 |
25,390 |
1,000 |
24,390 |
||
|
2023 |
02/14/2023 |
345,000 |
230,826 |
25,390 |
1,000 |
24,390 |
||
|
2022 |
03/15/2022 |
305,500 |
230,826 |
25,390 |
1,000 |
24,390 |
||
| Property Building Permit History | ||||||
|---|---|---|---|---|---|---|
| Issued | Permit # | Provided by | Bldg # | Description | Est Construction Cost | Status |
|
4/27/2005 |
10307511 |
OKLAHOMA CITY |
1 |
Main Dwellin |
138,000 |
Inactive |
| Click button on building number to access detailed information: | ||||||
|---|---|---|---|---|---|---|
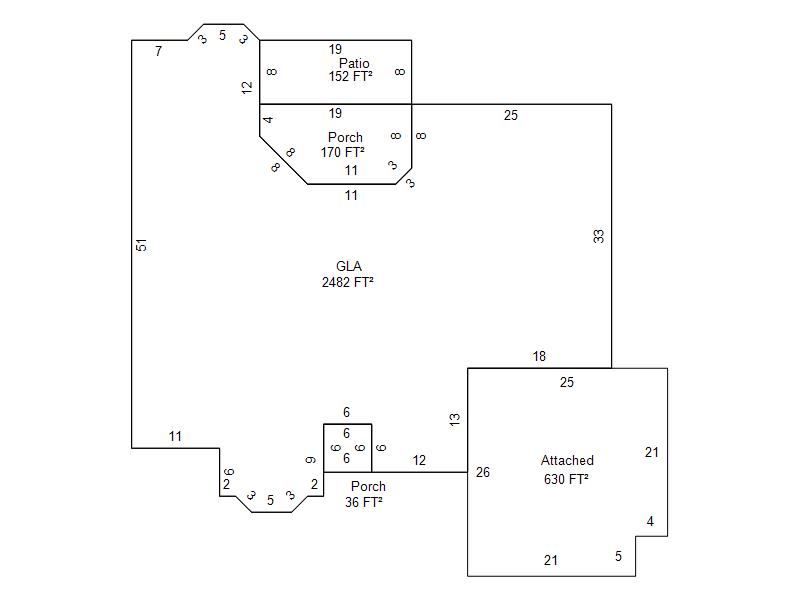
| Bldg # | Vacant/Improved Land | Bldg Description | Year Built | SqFt | # Stories | |
|
1 |
Improved |
Ranch 1 Story |
2005 |
2,482 |
1 Stories |
|