|
|
|
| Larry Stein Oklahoma County Assessor (405) 713-1200 - Public Access System |
|
|
|
|
|
|
| Real Property Display - Screen Produced 4/4/2026 1:48:50 PM | ||||
|---|---|---|---|---|
| Account: R202251280 | Type: Residential | Location: |
40 NW 147TH ST |
|
| Building Name/Occupant: |
|
OKLAHOMA CITY |
||
| Owner Name 1: | CLAUSEN DEVIN |
Parcel PIN#: |
3633-20-225-1280 |
|
| Owner Name 2: | CLAUSEN SYLVIA | 1/4 section #: |
3633 |
|
| Owner Name 3: | Parent Acct: |
3633-14-056-4500 |
||
| Billing Address: | 40 NW 147TH ST | Tax District: |
|
|
| City, State, Zip | EDMOND, OK 73013-2453 | School System: |
Edmond #12 |
|
|
Country: (If noted) |
Land Size: |
0.1873 Acres |
||
|
Land Value: 59,976 |
|
|||
|
Sect 9-T13N-R3W Qtr NE |
MESA POINTE SEC 1
Block
001
Lot
029
|
|||
| Full Legal Description: MESA POINTE SEC 1 001 029 |
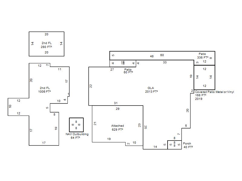
| Photo & Sketch (if available) | Comp Sales (ordered by relevancy) |
|
||||||||||||||||||
|
||||||||||||||||||||
| Value History (*The County Treasurer 405-713-1300 posts & collects actual tax amounts. Contact information HERE) | |||||||||||||
|---|---|---|---|---|---|---|---|---|---|---|---|---|---|
| Year | Market Value | Taxable Mkt Value | Gross Assessed | Exemption | Net Assessed | Millage | Est. Tax | Tax Savings | |||||
|
2026 |
410,000 |
410,000 |
45,100 |
1,000 |
44,100 |
120.32 |
$5,306 |
$120 |
|||||
|
2025 |
393,000 |
305,539 |
33,609 |
1,000 |
32,609 |
120.32 |
$3,924 |
$1,278 |
|||||
|
2024 |
386,000 |
305,539 |
33,609 |
1,000 |
32,609 |
119.96 |
$3,912 |
$1,182 |
|||||
|
2023 |
370,000 |
305,539 |
33,609 |
1,000 |
32,609 |
119.02 |
$3,881 |
$963 |
|||||
|
2022 |
333,500 |
305,539 |
33,608 |
1,000 |
32,608 |
120.10 |
$3,916 |
$489 |
|||||
| Property Account Status/Adjustments/Exemptions | ||
|---|---|---|
| Account # | Exemption Description | Amount |
|
R202251280 |
Homestead |
1,000 |
| Property Deed Transaction History (Recorded in the County Clerk's Office) | |||||||
|---|---|---|---|---|---|---|---|
| Date | Type | Book | Page | Price | Grantor | Grantee | |
|
10/1/2025 |
|
Deeds |
$390,000 |
RUSSELL JEFFREY B & IMAN |
CLAUSEN DEVIN |
||
|
4/14/2017 |
|
Deeds |
$280,000 |
ALLISON DAVID |
RUSSELL JEFFREY B & IMAN |
||
|
7/13/2012 |
|
Deeds |
$270,000 |
GRAY JAMES D |
ALLISON DAVID |
||
|
6/7/2005 |
|
Deeds |
$245,500 |
MEDICINE LODGE INVESTMENTS LLC |
GRAY JAMES D |
||
| Last Mailed Notice of Value (N.O.V.) Information/History | ||||||||
|---|---|---|---|---|---|---|---|---|
| Year | Date | Market Value | Taxable Market Value | Gross Assessed | Exemption | Net Assessed | ||
|
2026 |
02/23/2026 |
410,000 |
410,000 |
45,100 |
1,000 |
44,100 |
||
|
2025 |
02/14/2025 |
393,000 |
305,539 |
33,609 |
1,000 |
32,609 |
||
|
2024 |
02/13/2024 |
386,000 |
305,539 |
33,609 |
1,000 |
32,609 |
||
|
2023 |
02/14/2023 |
370,000 |
305,539 |
33,609 |
1,000 |
32,609 |
||
|
2022 |
03/15/2022 |
333,500 |
305,539 |
33,608 |
1,000 |
32,608 |
||
| Property Building Permit History | ||||||
|---|---|---|---|---|---|---|
| Issued | Permit # | Provided by | Bldg # | Description | Est Construction Cost | Status |
|
2/3/2004 |
10287458 |
OKLAHOMA CITY |
1 |
Main Dwellin |
205,005 |
Inactive |
| Click button on building number to access detailed information: | ||||||
|---|---|---|---|---|---|---|
| Bldg # | Vacant/Improved Land | Bldg Description | Year Built | SqFt | # Stories | |
|
1 |
Improved |
2 Story |
2004 |
3,299 |
2 Stories |
|