|
|
|
| Larry Stein Oklahoma County Assessor (405) 713-1200 - Public Access System |
|
|
|
|
|
|
| Real Property Display - Screen Produced 4/4/2026 1:48:50 PM | ||||
|---|---|---|---|---|
| Account: R202251330 | Type: Residential | Location: |
15016 SALEM CREEK RD |
|
| Building Name/Occupant: |
|
OKLAHOMA CITY |
||
| Owner Name 1: | PICKETT WAYMOND & TERESA |
Parcel PIN#: |
3633-20-225-1330 |
|
| Owner Name 2: | 1/4 section #: |
3633 |
||
| Owner Name 3: | Parent Acct: |
3633-14-056-4500 |
||
| Billing Address: | 15016 SALEM CREEK RD | Tax District: |
|
|
| City, State, Zip | EDMOND, OK 73013-2454 | School System: |
Edmond #12 |
|
|
Country: (If noted) |
Land Size: |
0.1928 Acres |
||
|
Land Value: 61,740 |
|
|||
|
Sect 9-T13N-R3W Qtr NE |
MESA POINTE SEC 1
Block
002
Lot
002
|
|||
| Full Legal Description: MESA POINTE SEC 1 002 002 |
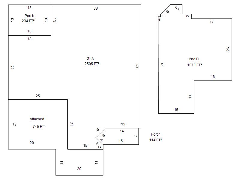
| Photo & Sketch (if available) | Comp Sales (ordered by relevancy) |
|
||||||||||||||||||
|
||||||||||||||||||||
| Value History (*The County Treasurer 405-713-1300 posts & collects actual tax amounts. Contact information HERE) | |||||||||||||
|---|---|---|---|---|---|---|---|---|---|---|---|---|---|
| Year | Market Value | Taxable Mkt Value | Gross Assessed | Exemption | Net Assessed | Millage | Est. Tax | Tax Savings | |||||
|
2026 |
411,500 |
367,994 |
40,479 |
1,000 |
39,479 |
120.32 |
$4,750 |
$696 |
|||||
|
2025 |
409,500 |
357,276 |
39,299 |
1,000 |
38,299 |
120.32 |
$4,608 |
$812 |
|||||
|
2024 |
402,000 |
346,870 |
38,155 |
1,000 |
37,155 |
119.96 |
$4,457 |
$847 |
|||||
|
2023 |
389,000 |
336,767 |
37,043 |
1,000 |
36,043 |
119.02 |
$4,290 |
$803 |
|||||
|
2022 |
353,500 |
326,959 |
35,964 |
1,000 |
34,964 |
120.10 |
$4,199 |
$471 |
|||||
| Property Account Status/Adjustments/Exemptions | ||
|---|---|---|
| Account # | Exemption Description | Amount |
|
R202251330 |
Homestead |
1,000 |
|
R202251330 |
3% Cap Homestead |
0 |
| Property Deed Transaction History (Recorded in the County Clerk's Office) | |||||||
|---|---|---|---|---|---|---|---|
| Date | Type | Book | Page | Price | Grantor | Grantee | |
|
2/27/2002 |
|
Deeds |
$205,000 |
REMINGTON BUILDERS INC |
PICKETT WAYMOND & TERESA |
||
|
6/6/2001 |
|
Deeds |
$26,000 |
MEDICINE LODGE INVESTMENTS LLC |
REMINGTON BUILDERS INC |
||
| Last Mailed Notice of Value (N.O.V.) Information/History | ||||||||
|---|---|---|---|---|---|---|---|---|
| Year | Date | Market Value | Taxable Market Value | Gross Assessed | Exemption | Net Assessed | ||
|
2026 |
02/23/2026 |
411,500 |
367,994 |
40,479 |
1,000 |
39,479 |
||
|
2025 |
02/14/2025 |
409,500 |
357,276 |
39,299 |
1,000 |
38,299 |
||
|
2024 |
02/13/2024 |
402,000 |
346,870 |
38,155 |
1,000 |
37,155 |
||
|
2023 |
02/14/2023 |
389,000 |
336,767 |
37,043 |
1,000 |
36,043 |
||
|
2022 |
03/15/2022 |
353,500 |
326,959 |
35,964 |
1,000 |
34,964 |
||
| Property Building Permit History | ||||||
|---|---|---|---|---|---|---|
| Issued | Permit # | Provided by | Bldg # | Description | Est Construction Cost | Status |
|
6/14/2001 |
10273620 |
OKLAHOMA CITY |
1 |
Main Dwellin |
155,000 |
Inactive |
| Click button on building number to access detailed information: | ||||||
|---|---|---|---|---|---|---|
| Bldg # | Vacant/Improved Land | Bldg Description | Year Built | SqFt | # Stories | |
|
1 |
Improved |
1½ Story Fin |
2002 |
3,578 |
1.5 Stories |
|