|
|
|
| Larry Stein Oklahoma County Assessor (405) 713-1200 - Public Access System |
|
|
|
|
|
|
| Real Property Display - Screen Produced 4/4/2026 1:46:29 PM | ||||
|---|---|---|---|---|
| Account: R202251360 | Type: Residential | Location: |
15004 SALEM CREEK RD |
|
| Building Name/Occupant: |
|
OKLAHOMA CITY |
||
| Owner Name 1: | EKWENUGO EBELECHUKWU L |
Parcel PIN#: |
3633-20-225-1360 |
|
| Owner Name 2: | 1/4 section #: |
3633 |
||
| Owner Name 3: | Parent Acct: |
3633-14-056-4500 |
||
| Billing Address: | 15004 SALEM CREEK RD | Tax District: |
|
|
| City, State, Zip | EDMOND, OK 73013-2454 | School System: |
Edmond #12 |
|
|
Country: (If noted) |
Land Size: |
0.1928 Acres |
||
|
Land Value: 61,740 |
|
|||
|
Sect 9-T13N-R3W Qtr NE |
MESA POINTE SEC 1
Block
002
Lot
005
|
|||
| Full Legal Description: MESA POINTE SEC 1 002 005 |
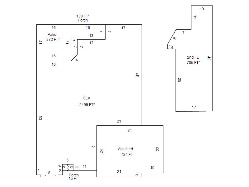
| Photo & Sketch (if available) | Comp Sales (ordered by relevancy) |
|
||||||||||||||||||
|
||||||||||||||||||||
| Value History (*The County Treasurer 405-713-1300 posts & collects actual tax amounts. Contact information HERE) | |||||||||||||
|---|---|---|---|---|---|---|---|---|---|---|---|---|---|
| Year | Market Value | Taxable Mkt Value | Gross Assessed | Exemption | Net Assessed | Millage | Est. Tax | Tax Savings | |||||
|
2026 |
399,500 |
399,500 |
43,945 |
0 |
43,945 |
120.32 |
$5,287 |
$0 |
|||||
|
2025 |
396,500 |
396,500 |
43,615 |
0 |
43,615 |
120.32 |
$5,248 |
$0 |
|||||
|
2024 |
388,000 |
388,000 |
42,680 |
0 |
42,680 |
119.96 |
$5,120 |
$0 |
|||||
|
2023 |
374,500 |
339,570 |
37,352 |
0 |
37,352 |
119.02 |
$4,446 |
$457 |
|||||
|
2022 |
340,500 |
323,400 |
35,574 |
0 |
35,574 |
120.10 |
$4,272 |
$226 |
|||||
| Property Account Status/Adjustments/Exemptions | ||
|---|---|---|
| Account # | Exemption Description | Amount |
|
R202251360 |
5% Capped Account |
0 |
| Property Deed Transaction History (Recorded in the County Clerk's Office) | |||||||
|---|---|---|---|---|---|---|---|
| Date | Type | Book | Page | Price | Grantor | Grantee | |
|
5/31/2023 |
|
Deeds |
$384,000 |
YOUNG MARJORIE A & WILBURN |
EKWENUGO EBELECHUKWU L |
||
|
3/3/2006 |
|
Deeds |
$284,500 |
PRUDENTIAL RELOCATION INC |
YOUNG MARJORIE A & WILBURN |
||
|
2/16/2006 |
|
Deeds |
$284,500 |
WEBB JAMES B & JILL R |
PRUDENTIAL RELOCATION INC |
||
|
12/14/2001 |
|
Deeds |
$208,000 |
MEDICINE LODGE INVESTMENTS LLC |
WEBB JAMES B & JILL R |
||
| Last Mailed Notice of Value (N.O.V.) Information/History | ||||||||
|---|---|---|---|---|---|---|---|---|
| Year | Date | Market Value | Taxable Market Value | Gross Assessed | Exemption | Net Assessed | ||
|
2026 |
02/23/2026 |
399,500 |
399,500 |
43,945 |
0 |
43,945 |
||
|
2025 |
02/14/2025 |
396,500 |
396,500 |
43,615 |
0 |
43,615 |
||
|
2024 |
02/13/2024 |
388,000 |
388,000 |
42,680 |
0 |
42,680 |
||
|
2023 |
02/14/2023 |
374,500 |
339,570 |
37,352 |
0 |
37,352 |
||
|
2022 |
03/15/2022 |
340,500 |
323,400 |
35,574 |
0 |
35,574 |
||
| Property Building Permit History | ||||||
|---|---|---|---|---|---|---|
| Issued | Permit # | Provided by | Bldg # | Description | Est Construction Cost | Status |
|
6/25/2001 |
10273626 |
OKLAHOMA CITY |
1 |
Main Dwellin |
165,000 |
Inactive |
|
6/6/2001 |
10273625 |
OKLAHOMA CITY |
1 |
Other |
165,000 |
Inactive |
| Click button on building number to access detailed information: | ||||||
|---|---|---|---|---|---|---|
| Bldg # | Vacant/Improved Land | Bldg Description | Year Built | SqFt | # Stories | |
|
1 |
Improved |
1½ Story Fin |
2001 |
3,284 |
1.5 Stories |
|