|
|
|
| Larry Stein Oklahoma County Assessor (405) 713-1200 - Public Access System |
|
|
|
|
|
|
| Real Property Display - Screen Produced 4/2/2026 6:28:17 AM | ||||
|---|---|---|---|---|
| Account: R141031395 | Type: Residential | Location: |
824 NW 143RD ST |
|
| Building Name/Occupant: |
|
OKLAHOMA CITY |
||
| Owner Name 1: | ANDERSON LARRY R & MARGARET J |
Parcel PIN#: |
3635-14-103-1395 |
|
| Owner Name 2: | LIVING TRUST | 1/4 section #: |
3635 |
|
| Owner Name 3: | Parent Acct: |
|
||
| Billing Address: | 824 NW 143RD ST | Tax District: |
|
|
| City, State, Zip | EDMOND, OK 73013-1926 | School System: |
Edmond #12 |
|
|
Country: (If noted) |
Land Size: |
0.2528 Acres |
||
|
Land Value: 40,741 |
|
|||
|
Sect 9-T13N-R3W Qtr SW |
FAIR HILL ADDITION
Block
002
Lot
000
|
|||
| Full Legal Description: FAIR HILL ADDITION 002 000 W2.5FT OF LOT 11 & ALL LOT 12 |
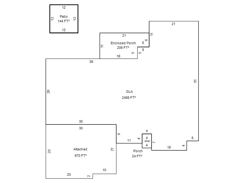
| Photo & Sketch (if available) | Comp Sales (ordered by relevancy) |
|
||||||||||||||||||
|
||||||||||||||||||||
| Value History (*The County Treasurer 405-713-1300 posts & collects actual tax amounts. Contact information HERE) | |||||||||||||
|---|---|---|---|---|---|---|---|---|---|---|---|---|---|
| Year | Market Value | Taxable Mkt Value | Gross Assessed | Exemption | Net Assessed | Millage | Est. Tax | Tax Savings | |||||
|
2026 |
307,000 |
231,047 |
25,414 |
1,000 |
24,414 |
120.32 |
$2,938 |
$1,126 |
|||||
|
2025 |
294,500 |
224,318 |
24,674 |
1,000 |
23,674 |
120.32 |
$2,849 |
$1,049 |
|||||
|
2024 |
291,500 |
217,785 |
23,955 |
1,000 |
22,955 |
119.96 |
$2,754 |
$1,093 |
|||||
|
2023 |
270,500 |
211,442 |
23,258 |
1,000 |
22,258 |
119.02 |
$2,649 |
$892 |
|||||
|
2022 |
240,500 |
205,284 |
22,580 |
1,000 |
21,580 |
120.10 |
$2,592 |
$585 |
|||||
| Property Account Status/Adjustments/Exemptions | ||
|---|---|---|
| Account # | Exemption Description | Amount |
|
R141031395 |
3% Cap Homestead |
0 |
|
R141031395 |
Homestead |
1,000 |
| Property Deed Transaction History (Recorded in the County Clerk's Office) | ||||||||||
|---|---|---|---|---|---|---|---|---|---|---|
| Date | Type | Book | Page | Price | Grantor | Grantee | ||||
|
6/11/2014 |
|
Deeds |
$170,500 |
COOPER NANCY LEE |
ANDERSON LARRY R & MARGARET J |
|||||
|
2/6/2014 |
|
Deeds |
$140,000 |
SAWIN KRISTINE MASAKO |
COOPER NANCY LEE |
|||||
|
10/27/2004 |
|
Deeds |
$160,000 |
COOPER JOSEPH R |
SAWIN KRISTINE MASAKO |
|||||
|
1/23/2004 |
|
Deeds |
$158,000 |
SCRANAGE GARY W |
COOPER JOSEPH R |
|||||
|
5/5/1999 |
|
Deeds |
$143,000 |
SUENRAM MELBURN & ROSE CO TRS |
SCRANAGE GARY W |
|||||
| Last Mailed Notice of Value (N.O.V.) Information/History | ||||||||
|---|---|---|---|---|---|---|---|---|
| Year | Date | Market Value | Taxable Market Value | Gross Assessed | Exemption | Net Assessed | ||
|
2026 |
02/23/2026 |
307,000 |
231,047 |
25,414 |
1,000 |
24,414 |
||
|
2025 |
02/14/2025 |
294,500 |
224,318 |
24,674 |
1,000 |
23,674 |
||
|
2024 |
02/13/2024 |
291,500 |
217,785 |
23,955 |
1,000 |
22,955 |
||
|
2023 |
02/14/2023 |
270,500 |
211,442 |
23,258 |
1,000 |
22,258 |
||
|
2022 |
03/15/2022 |
240,500 |
205,284 |
22,580 |
1,000 |
21,580 |
||
| Property Building Permit History | ||||||
|---|---|---|---|---|---|---|
| Issued | Permit # | Provided by | Bldg # | Description | Est Construction Cost | Status |
|
7/1/1991 |
10233798 |
OKLAHOMA CITY |
1 |
Main Dwellin |
98,000 |
Inactive |
| Click button on building number to access detailed information: | ||||||
|---|---|---|---|---|---|---|
| Bldg # | Vacant/Improved Land | Bldg Description | Year Built | SqFt | # Stories | |
|
1 |
Improved |
Ranch 1 Story |
1991 |
2,485 |
1 Stories |
|