|
|
|
| Larry Stein Oklahoma County Assessor (405) 713-1200 - Public Access System |
|
|
|
|
|
|
| Real Property Display - Screen Produced 4/11/2026 8:52:02 AM | ||||
|---|---|---|---|---|
| Account: R110101050 | Type: Residential | Location: |
2405 CYPRESS CT |
|
| Building Name/Occupant: |
|
OKLAHOMA CITY |
||
| Owner Name 1: | MMCAM LLC |
Parcel PIN#: |
3652-11-010-1050 |
|
| Owner Name 2: | 1/4 section #: |
3652 |
||
| Owner Name 3: | Parent Acct: |
|
||
| Billing Address: | 1011 LOCUST LN | Tax District: |
|
|
| City, State, Zip | EDMOND , OK 73013 | School System: |
Edmond #12 |
|
|
Country: (If noted) |
Land Size: |
0.1716 Acres |
||
|
Land Value: 34,011 |
|
|||
|
Sect 13-T13N-R3W Qtr NW |
NORTHWOOD SEC 3
Block
012
Lot
006
|
|||
| Full Legal Description: NORTHWOOD SEC 3 012 006 |
| Photo & Sketch (if available) | Comp Sales (ordered by relevancy) |
|
||||||||||||||||||
|
||||||||||||||||||||
| Value History (*The County Treasurer 405-713-1300 posts & collects actual tax amounts. Contact information HERE) | |||||||||||||
|---|---|---|---|---|---|---|---|---|---|---|---|---|---|
| Year | Market Value | Taxable Mkt Value | Gross Assessed | Exemption | Net Assessed | Millage | Est. Tax | Tax Savings | |||||
|
2026 |
225,000 |
223,653 |
24,601 |
0 |
24,601 |
120.32 |
$2,960 |
$18 |
|||||
|
2025 |
218,000 |
213,003 |
23,429 |
0 |
23,429 |
120.32 |
$2,819 |
$66 |
|||||
|
2024 |
212,000 |
202,860 |
22,314 |
0 |
22,314 |
119.96 |
$2,677 |
$121 |
|||||
|
2023 |
206,500 |
193,200 |
21,252 |
0 |
21,252 |
119.02 |
$2,529 |
$174 |
|||||
|
2022 |
184,000 |
184,000 |
20,240 |
0 |
20,240 |
120.10 |
$2,431 |
$0 |
|||||
| Property Account Status/Adjustments/Exemptions | ||
|---|---|---|
| Account # | Exemption Description | Amount |
|
R110101050 |
5% Capped Account |
0 |
| Property Deed Transaction History (Recorded in the County Clerk's Office) | ||||||||||
|---|---|---|---|---|---|---|---|---|---|---|
| Date | Type | Book | Page | Price | Grantor | Grantee | ||||
|
7/30/2021 |
|
Hmstd Off & |
$0 |
BRADSHAW DOROTHY REV TRUST |
PETREE DEBORAH CROW SUCC TRS |
|||||
|
7/30/2021 |
|
Deeds |
$178,000 |
BRADSHAW DOROTHY TRS |
MMCAM LLC |
|||||
|
11/16/2007 |
|
Deeds |
$0 |
BRADSHAW DOROTHY |
BRADSHAW DOROTHY TRS |
|||||
|
9/6/2002 |
|
Deeds |
$95,000 |
GLYCKHERR GARY R & PAMELA S |
BRADSHAW DOROTHY |
|||||
|
1/18/1994 |
|
Historical |
$0 |
GLYCKHERR PAMELA SUE |
GLYCKHERR GARY R & PAMELA S |
|||||
| Last Mailed Notice of Value (N.O.V.) Information/History | ||||||||
|---|---|---|---|---|---|---|---|---|
| Year | Date | Market Value | Taxable Market Value | Gross Assessed | Exemption | Net Assessed | ||
|
2026 |
02/23/2026 |
225,000 |
223,653 |
24,601 |
0 |
24,601 |
||
|
2025 |
02/14/2025 |
218,000 |
213,003 |
23,429 |
0 |
23,429 |
||
|
2024 |
02/13/2024 |
212,000 |
202,860 |
22,314 |
0 |
22,314 |
||
|
2023 |
02/14/2023 |
206,500 |
193,200 |
21,252 |
0 |
21,252 |
||
|
2022 |
03/15/2022 |
184,000 |
184,000 |
20,240 |
0 |
20,240 |
||
| Property Building Permit History | |||||||||||
|---|---|---|---|---|---|---|---|---|---|---|---|
| Issued | Permit # | Provided by | Bldg # | Description | Est Construction Cost | Status | |||||
| No Building Permit records returned. | |||||||||||
| Click button on building number to access detailed information: | ||||||
|---|---|---|---|---|---|---|
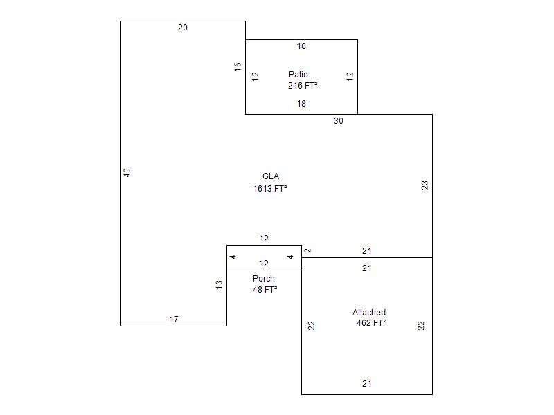
| Bldg # | Vacant/Improved Land | Bldg Description | Year Built | SqFt | # Stories | |
|
1 |
Improved |
Ranch 1 Story |
1980 |
1,613 |
1 Stories |
|