|
|
|
| Larry Stein Oklahoma County Assessor (405) 713-1200 - Public Access System |
|
|
|
|
|
|
| Real Property Display - Screen Produced 4/11/2026 10:32:45 AM | ||||
|---|---|---|---|---|
| Account: R110101080 | Type: Residential | Location: |
2417 CYPRESS CT |
|
| Building Name/Occupant: |
|
OKLAHOMA CITY |
||
| Owner Name 1: | DALE JOSHUA & BROOKE |
Parcel PIN#: |
3652-11-010-1080 |
|
| Owner Name 2: | 1/4 section #: |
3652 |
||
| Owner Name 3: | Parent Acct: |
|
||
| Billing Address: | 2417 CYPRESS CT | Tax District: |
|
|
| City, State, Zip | EDMOND, OK 73013-5623 | School System: |
Edmond #12 |
|
|
Country: (If noted) |
Land Size: |
0.1716 Acres |
||
|
Land Value: 34,011 |
|
|||
|
Sect 13-T13N-R3W Qtr NW |
NORTHWOOD SEC 3
Block
012
Lot
009
|
|||
| Full Legal Description: NORTHWOOD SEC 3 012 009 |
| Photo & Sketch (if available) | Comp Sales (ordered by relevancy) |
|
||||||||||||||||||
|
||||||||||||||||||||
| Value History (*The County Treasurer 405-713-1300 posts & collects actual tax amounts. Contact information HERE) | |||||||||||||
|---|---|---|---|---|---|---|---|---|---|---|---|---|---|
| Year | Market Value | Taxable Mkt Value | Gross Assessed | Exemption | Net Assessed | Millage | Est. Tax | Tax Savings | |||||
|
2026 |
251,500 |
222,454 |
24,469 |
0 |
24,469 |
120.32 |
$2,944 |
$384 |
|||||
|
2025 |
244,000 |
211,861 |
23,304 |
0 |
23,304 |
120.32 |
$2,804 |
$425 |
|||||
|
2024 |
237,000 |
201,773 |
22,194 |
0 |
22,194 |
119.96 |
$2,663 |
$465 |
|||||
|
2023 |
231,000 |
192,165 |
21,137 |
0 |
21,137 |
119.02 |
$2,516 |
$508 |
|||||
|
2022 |
207,500 |
183,015 |
20,131 |
0 |
20,131 |
120.10 |
$2,418 |
$323 |
|||||
| Property Account Status/Adjustments/Exemptions | ||
|---|---|---|
| Account # | Exemption Description | Amount |
|
R110101080 |
5% Capped Account |
0 |
| Property Deed Transaction History (Recorded in the County Clerk's Office) | |||||||
|---|---|---|---|---|---|---|---|
| Date | Type | Book | Page | Price | Grantor | Grantee | |
|
10/15/2015 |
|
Deeds |
$165,000 |
CODE THREE INVESTMENTS LLC |
DALE JOSHUA & BROOKE |
||
|
6/25/2015 |
|
Deeds |
$90,000 |
FISH MARK A & JENNIFER EVE |
CODE THREE INVESTMENTS LLC |
||
|
3/31/1993 |
|
Historical |
$0 |
EVE JENNIFER |
FISH MARK A & JENNIFER EVE |
||
|
9/1/1984 |
|
Historical |
$0 |
|
EVE JENNIFER |
||
| Last Mailed Notice of Value (N.O.V.) Information/History | ||||||||
|---|---|---|---|---|---|---|---|---|
| Year | Date | Market Value | Taxable Market Value | Gross Assessed | Exemption | Net Assessed | ||
|
2026 |
02/23/2026 |
251,500 |
222,454 |
24,469 |
0 |
24,469 |
||
|
2025 |
02/14/2025 |
244,000 |
211,861 |
23,304 |
0 |
23,304 |
||
|
2024 |
02/13/2024 |
237,000 |
201,773 |
22,194 |
0 |
22,194 |
||
|
2023 |
02/14/2023 |
231,000 |
192,165 |
21,137 |
0 |
21,137 |
||
|
2022 |
03/15/2022 |
207,500 |
183,015 |
20,131 |
0 |
20,131 |
||
| Property Building Permit History | |||||||||||
|---|---|---|---|---|---|---|---|---|---|---|---|
| Issued | Permit # | Provided by | Bldg # | Description | Est Construction Cost | Status | |||||
| No Building Permit records returned. | |||||||||||
| Click button on building number to access detailed information: | ||||||
|---|---|---|---|---|---|---|
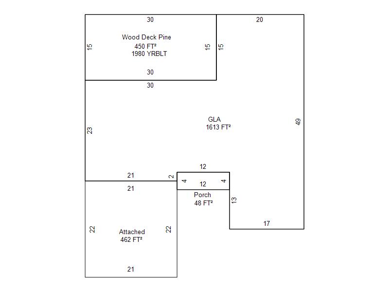
| Bldg # | Vacant/Improved Land | Bldg Description | Year Built | SqFt | # Stories | |
|
1 |
Improved |
Ranch 1 Story |
1980 |
1,613 |
1 Stories |
|