|
|
|
| Larry Stein Oklahoma County Assessor (405) 713-1200 - Public Access System |
|
|
|
|
|
|
| Real Property Display - Screen Produced 4/11/2026 10:32:45 AM | ||||
|---|---|---|---|---|
| Account: R110101110 | Type: Residential | Location: |
2429 CYPRESS CT |
|
| Building Name/Occupant: |
|
OKLAHOMA CITY |
||
| Owner Name 1: | ROBIE DIANE S REV TRUST |
Parcel PIN#: |
3652-11-010-1110 |
|
| Owner Name 2: | 1/4 section #: |
3652 |
||
| Owner Name 3: | Parent Acct: |
|
||
| Billing Address: | 2429 CYPRESS CT | Tax District: |
|
|
| City, State, Zip | EDMOND, OK 73013-5623 | School System: |
Edmond #12 |
|
|
Country: (If noted) |
Land Size: |
0.1893 Acres |
||
|
Land Value: 37,675 |
|
|||
|
Sect 13-T13N-R3W Qtr NW |
NORTHWOOD SEC 3
Block
012
Lot
012
|
|||
| Full Legal Description: NORTHWOOD SEC 3 012 012 |
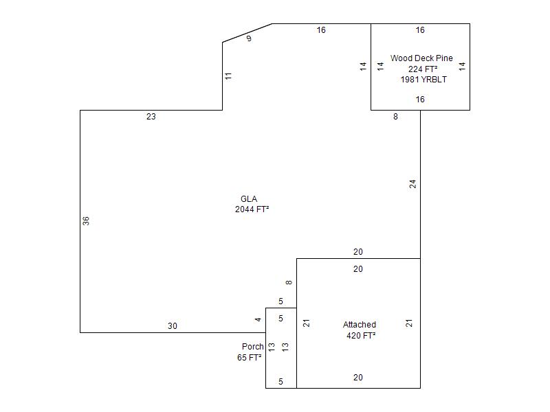
| Photo & Sketch (if available) | Comp Sales (ordered by relevancy) |
|
||||||||||||||||||
|
||||||||||||||||||||
| Value History (*The County Treasurer 405-713-1300 posts & collects actual tax amounts. Contact information HERE) | |||||||||||||
|---|---|---|---|---|---|---|---|---|---|---|---|---|---|
| Year | Market Value | Taxable Mkt Value | Gross Assessed | Exemption | Net Assessed | Millage | Est. Tax | Tax Savings | |||||
|
2026 |
260,500 |
216,589 |
23,824 |
1,000 |
22,824 |
120.32 |
$2,746 |
$701 |
|||||
|
2025 |
253,000 |
216,589 |
23,823 |
1,000 |
22,823 |
120.32 |
$2,746 |
$602 |
|||||
|
2024 |
245,500 |
210,281 |
23,130 |
0 |
23,130 |
119.96 |
$2,775 |
$465 |
|||||
|
2023 |
238,500 |
200,268 |
22,029 |
0 |
22,029 |
119.02 |
$2,622 |
$501 |
|||||
|
2022 |
214,000 |
190,732 |
20,980 |
0 |
20,980 |
120.10 |
$2,520 |
$307 |
|||||
| Property Account Status/Adjustments/Exemptions | ||
|---|---|---|
| Account # | Exemption Description | Amount |
|
R110101110 |
Freeze Senior Valuation |
0 |
|
R110101110 |
Homestead |
1,000 |
|
R110101110 |
3% Cap Homestead |
0 |
| Property Deed Transaction History (Recorded in the County Clerk's Office) | |||||||
|---|---|---|---|---|---|---|---|
| Date | Type | Book | Page | Price | Grantor | Grantee | |
|
12/4/2014 |
|
Deeds |
$0 |
ROBIE DIANE S |
ROBIE DIANE S REV TRUST |
||
|
5/6/1997 |
|
Historical |
$0 |
ROBIE DIANE S |
ROBIE DIANE S REV TRUST |
||
|
5/25/1994 |
|
Historical |
$82,000 |
HAPGOOD VINCENT F & TONI D |
ROBIE DIANE S |
||
|
5/8/1989 |
|
Historical |
$72,000 |
WILLIAMS DONALD A & DEBBIE J |
HAPGOOD VINCENT F & TONI D |
||
|
3/1/1985 |
|
Historical |
$0 |
|
WILLIAMS DONALD A & DEBBIE J |
||
| Last Mailed Notice of Value (N.O.V.) Information/History | ||||||||
|---|---|---|---|---|---|---|---|---|
| Year | Date | Market Value | Taxable Market Value | Gross Assessed | Exemption | Net Assessed | ||
|
2026 |
02/23/2026 |
260,500 |
216,589 |
23,824 |
1,000 |
22,824 |
||
|
2025 |
02/14/2025 |
253,000 |
216,589 |
23,823 |
1,000 |
22,823 |
||
|
2024 |
02/13/2024 |
245,500 |
210,281 |
23,130 |
0 |
23,130 |
||
|
2023 |
02/14/2023 |
238,500 |
200,268 |
22,029 |
0 |
22,029 |
||
|
2022 |
03/15/2022 |
214,000 |
190,732 |
20,980 |
0 |
20,980 |
||
| Property Building Permit History | |||||||||||
|---|---|---|---|---|---|---|---|---|---|---|---|
| Issued | Permit # | Provided by | Bldg # | Description | Est Construction Cost | Status | |||||
| No Building Permit records returned. | |||||||||||
| Click button on building number to access detailed information: | ||||||
|---|---|---|---|---|---|---|
| Bldg # | Vacant/Improved Land | Bldg Description | Year Built | SqFt | # Stories | |
|
1 |
Improved |
Ranch 1 Story |
1981 |
2,044 |
1 Stories |
|