|
|
|
| Larry Stein Oklahoma County Assessor (405) 713-1200 - Public Access System |
|
|
|
|
|
|
| Real Property Display - Screen Produced 4/11/2026 8:52:09 AM | ||||
|---|---|---|---|---|
| Account: R110101130 | Type: Residential | Location: |
13428 PALM AVE |
|
| Building Name/Occupant: |
|
OKLAHOMA CITY |
||
| Owner Name 1: | RICHEY JANE |
Parcel PIN#: |
3652-11-010-1130 |
|
| Owner Name 2: | 1/4 section #: |
3652 |
||
| Owner Name 3: | Parent Acct: |
|
||
| Billing Address: | 13428 PALM AVE | Tax District: |
|
|
| City, State, Zip | EDMOND, OK 73013-5627 | School System: |
Edmond #12 |
|
|
Country: (If noted) |
Land Size: |
0.1575 Acres |
||
|
Land Value: 31,213 |
|
|||
|
Sect 13-T13N-R3W Qtr NW |
NORTHWOOD SEC 3
Block
012
Lot
014
|
|||
| Full Legal Description: NORTHWOOD SEC 3 012 014 |
| Photo & Sketch (if available) | Comp Sales (ordered by relevancy) |
|
||||||||||||||||||
|
||||||||||||||||||||
| Value History (*The County Treasurer 405-713-1300 posts & collects actual tax amounts. Contact information HERE) | |||||||||||||
|---|---|---|---|---|---|---|---|---|---|---|---|---|---|
| Year | Market Value | Taxable Mkt Value | Gross Assessed | Exemption | Net Assessed | Millage | Est. Tax | Tax Savings | |||||
|
2026 |
222,000 |
172,910 |
19,019 |
1,000 |
18,019 |
120.32 |
$2,168 |
$770 |
|||||
|
2025 |
214,500 |
167,874 |
18,465 |
1,000 |
17,465 |
120.32 |
$2,102 |
$737 |
|||||
|
2024 |
208,500 |
162,985 |
17,928 |
1,000 |
16,928 |
119.96 |
$2,031 |
$721 |
|||||
|
2023 |
203,000 |
158,238 |
17,405 |
1,000 |
16,405 |
119.02 |
$1,953 |
$705 |
|||||
|
2022 |
181,000 |
153,630 |
16,898 |
1,000 |
15,898 |
120.10 |
$1,910 |
$482 |
|||||
| Property Account Status/Adjustments/Exemptions | ||
|---|---|---|
| Account # | Exemption Description | Amount |
|
R110101130 |
3% Cap Homestead |
0 |
|
R110101130 |
Homestead |
1,000 |
| Property Deed Transaction History (Recorded in the County Clerk's Office) | |||||||
|---|---|---|---|---|---|---|---|
| Date | Type | Book | Page | Price | Grantor | Grantee | |
|
8/11/1997 |
|
Historical |
$76,000 |
BREWER JESS L & KATHLEEN C |
RICHEY JANE |
||
|
10/1/1984 |
|
Historical |
$0 |
|
BREWER JESS L & KATHLEEN C |
||
| Last Mailed Notice of Value (N.O.V.) Information/History | ||||||||
|---|---|---|---|---|---|---|---|---|
| Year | Date | Market Value | Taxable Market Value | Gross Assessed | Exemption | Net Assessed | ||
|
2026 |
02/23/2026 |
222,000 |
172,910 |
19,019 |
1,000 |
18,019 |
||
|
2025 |
02/14/2025 |
214,500 |
167,874 |
18,465 |
1,000 |
17,465 |
||
|
2024 |
02/13/2024 |
208,500 |
162,985 |
17,928 |
1,000 |
16,928 |
||
|
2023 |
02/14/2023 |
203,000 |
158,238 |
17,405 |
1,000 |
16,405 |
||
|
2022 |
03/15/2022 |
181,000 |
153,630 |
16,898 |
1,000 |
15,898 |
||
| Property Building Permit History | |||||||||||
|---|---|---|---|---|---|---|---|---|---|---|---|
| Issued | Permit # | Provided by | Bldg # | Description | Est Construction Cost | Status | |||||
| No Building Permit records returned. | |||||||||||
| Click button on building number to access detailed information: | ||||||
|---|---|---|---|---|---|---|
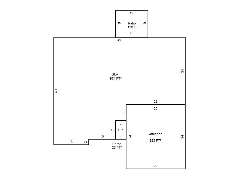
| Bldg # | Vacant/Improved Land | Bldg Description | Year Built | SqFt | # Stories | |
|
1 |
Improved |
Ranch 1 Story |
1981 |
1,574 |
1 Stories |
|