|
|
|
| Larry Stein Oklahoma County Assessor (405) 713-1200 - Public Access System |
|
|
|
|
|
|
| Real Property Display - Screen Produced 4/11/2026 8:53:41 AM | ||||
|---|---|---|---|---|
| Account: R110101230 | Type: Residential | Location: |
2400 CYPRESS CT |
|
| Building Name/Occupant: |
|
OKLAHOMA CITY |
||
| Owner Name 1: | RAMSEY AMY |
Parcel PIN#: |
3652-11-010-1230 |
|
| Owner Name 2: | RAMSEY LEONARD R | 1/4 section #: |
3652 |
|
| Owner Name 3: | Parent Acct: |
|
||
| Billing Address: | 2400 CYPRESS CT | Tax District: |
|
|
| City, State, Zip | EDMOND, OK 73013-5622 | School System: |
Edmond #12 |
|
|
Country: (If noted) |
Land Size: |
0.1848 Acres |
||
|
Land Value: 36,628 |
|
|||
|
Sect 13-T13N-R3W Qtr NW |
NORTHWOOD SEC 3
Block
013
Lot
005
|
|||
| Full Legal Description: NORTHWOOD SEC 3 013 005 |
| Photo & Sketch (if available) | Comp Sales (ordered by relevancy) |
|
||||||||||||||||||
|
||||||||||||||||||||
| Value History (*The County Treasurer 405-713-1300 posts & collects actual tax amounts. Contact information HERE) | |||||||||||||
|---|---|---|---|---|---|---|---|---|---|---|---|---|---|
| Year | Market Value | Taxable Mkt Value | Gross Assessed | Exemption | Net Assessed | Millage | Est. Tax | Tax Savings | |||||
|
2026 |
226,500 |
178,508 |
19,634 |
1,000 |
18,634 |
120.32 |
$2,242 |
$756 |
|||||
|
2025 |
219,000 |
173,309 |
19,063 |
1,000 |
18,063 |
120.32 |
$2,173 |
$725 |
|||||
|
2024 |
213,000 |
168,262 |
18,508 |
1,000 |
17,508 |
119.96 |
$2,100 |
$710 |
|||||
|
2023 |
207,500 |
163,362 |
17,969 |
1,000 |
16,969 |
119.02 |
$2,020 |
$697 |
|||||
|
2022 |
185,000 |
158,604 |
17,446 |
1,000 |
16,446 |
120.10 |
$1,975 |
$469 |
|||||
| Property Account Status/Adjustments/Exemptions | ||
|---|---|---|
| Account # | Exemption Description | Amount |
|
R110101230 |
Homestead |
1,000 |
|
R110101230 |
3% Cap Homestead |
0 |
| Property Deed Transaction History (Recorded in the County Clerk's Office) | ||||||||||
|---|---|---|---|---|---|---|---|---|---|---|
| Date | Type | Book | Page | Price | Grantor | Grantee | ||||
|
8/25/2017 |
|
Deeds |
$145,500 |
ALLEN CARRIE L |
RAMSEY AMY |
|||||
|
12/26/2013 |
|
Deeds |
$116,500 |
SPENCER VALERIE L TRS SPENCER VALERIE L REV TRUST |
ALLEN CARRIE L |
|||||
|
3/5/2007 |
|
Deeds |
$0 |
SPENCER VALERIE L |
SPENCER VALERIE L TRS SPENCER VALERIE L REV TRUST |
|||||
|
10/17/2006 |
|
Deeds |
$133,500 |
GOOTOS PETE |
SPENCER VALERIE L |
|||||
|
3/27/2006 |
|
Other |
$0 |
WEEKS DWIGHT RUSSELL |
GOOTOS PETE |
|||||
| Last Mailed Notice of Value (N.O.V.) Information/History | ||||||||
|---|---|---|---|---|---|---|---|---|
| Year | Date | Market Value | Taxable Market Value | Gross Assessed | Exemption | Net Assessed | ||
|
2026 |
02/23/2026 |
226,500 |
178,508 |
19,634 |
1,000 |
18,634 |
||
|
2025 |
02/14/2025 |
219,000 |
173,309 |
19,063 |
1,000 |
18,063 |
||
|
2024 |
02/13/2024 |
213,000 |
168,262 |
18,508 |
1,000 |
17,508 |
||
|
2023 |
02/14/2023 |
207,500 |
163,362 |
17,969 |
1,000 |
16,969 |
||
|
2022 |
03/15/2022 |
185,000 |
158,604 |
17,446 |
1,000 |
16,446 |
||
| Property Building Permit History | |||||||||||
|---|---|---|---|---|---|---|---|---|---|---|---|
| Issued | Permit # | Provided by | Bldg # | Description | Est Construction Cost | Status | |||||
| No Building Permit records returned. | |||||||||||
| Click button on building number to access detailed information: | ||||||
|---|---|---|---|---|---|---|
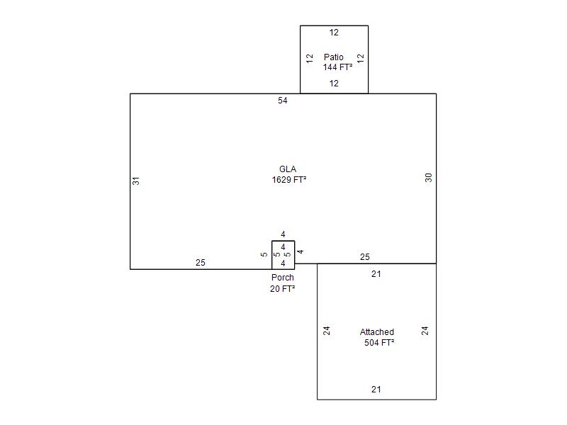
| Bldg # | Vacant/Improved Land | Bldg Description | Year Built | SqFt | # Stories | |
|
1 |
Improved |
Ranch 1 Story |
1980 |
1,629 |
1 Stories |
|