|
|
|
| Larry Stein Oklahoma County Assessor (405) 713-1200 - Public Access System |
|
|
|
|
|
|
| Real Property Display - Screen Produced 4/11/2026 10:32:32 AM | ||||
|---|---|---|---|---|
| Account: R110101260 | Type: Residential | Location: |
2412 CYPRESS CT |
|
| Building Name/Occupant: |
|
OKLAHOMA CITY |
||
| Owner Name 1: | COLE CALEB |
Parcel PIN#: |
3652-11-010-1260 |
|
| Owner Name 2: | 1/4 section #: |
3652 |
||
| Owner Name 3: | Parent Acct: |
|
||
| Billing Address: | 2412 CYPRESS CT | Tax District: |
|
|
| City, State, Zip | OKLAHOMA CITY, OK 73013 | School System: |
Edmond #12 |
|
|
Country: (If noted) |
Land Size: |
0.1848 Acres |
||
|
Land Value: 36,628 |
|
|||
|
Sect 13-T13N-R3W Qtr NW |
NORTHWOOD SEC 3
Block
013
Lot
008
|
|||
| Full Legal Description: NORTHWOOD SEC 3 013 008 |
| Photo & Sketch (if available) | Comp Sales (ordered by relevancy) |
|
||||||||||||||||||
|
||||||||||||||||||||
| Value History (*The County Treasurer 405-713-1300 posts & collects actual tax amounts. Contact information HERE) | |||||||||||||
|---|---|---|---|---|---|---|---|---|---|---|---|---|---|
| Year | Market Value | Taxable Mkt Value | Gross Assessed | Exemption | Net Assessed | Millage | Est. Tax | Tax Savings | |||||
|
2026 |
240,000 |
224,260 |
24,667 |
0 |
24,667 |
120.32 |
$2,968 |
$208 |
|||||
|
2025 |
230,000 |
213,581 |
23,493 |
0 |
23,493 |
120.32 |
$2,827 |
$217 |
|||||
|
2024 |
224,000 |
203,411 |
22,374 |
0 |
22,374 |
119.96 |
$2,684 |
$272 |
|||||
|
2023 |
217,000 |
193,725 |
21,309 |
0 |
21,309 |
119.02 |
$2,536 |
$305 |
|||||
|
2022 |
184,500 |
184,500 |
20,295 |
0 |
20,295 |
120.10 |
$2,437 |
$0 |
|||||
| Property Account Status/Adjustments/Exemptions | ||
|---|---|---|
| Account # | Exemption Description | Amount |
|
R110101260 |
5% Capped Account |
0 |
| Property Deed Transaction History (Recorded in the County Clerk's Office) | |||||||
|---|---|---|---|---|---|---|---|
| Date | Type | Book | Page | Price | Grantor | Grantee | |
|
11/14/2021 |
|
Deeds |
$180,000 |
KEIL NORVAL L |
COLE CALEB |
||
|
7/1/1997 |
|
Historical |
$79,000 |
ENGLAND ALLEN R & VALERIE A |
KEIL NORVAL L |
||
|
8/18/1988 |
|
Historical |
$48,000 |
ADMR OF VETERANS AFFAIRS |
ENGLAND ALLEN R & VALERIE A |
||
|
6/1/1988 |
|
Historical |
$0 |
BREEDEN BRADFORD E & EVELYN S |
ADMR OF VETERANS AFFAIRS |
||
|
5/1/1981 |
|
Historical |
$0 |
|
BREEDEN BRADFORD E & EVELYN S |
||
| Last Mailed Notice of Value (N.O.V.) Information/History | ||||||||
|---|---|---|---|---|---|---|---|---|
| Year | Date | Market Value | Taxable Market Value | Gross Assessed | Exemption | Net Assessed | ||
|
2026 |
02/23/2026 |
240,000 |
224,260 |
24,667 |
0 |
24,667 |
||
|
2025 |
02/14/2025 |
230,000 |
213,581 |
23,493 |
0 |
23,493 |
||
|
2024 |
02/13/2024 |
224,000 |
203,411 |
22,374 |
0 |
22,374 |
||
|
2023 |
02/14/2023 |
217,000 |
193,725 |
21,309 |
0 |
21,309 |
||
|
2022 |
03/15/2022 |
184,500 |
184,500 |
20,295 |
0 |
20,295 |
||
| Property Building Permit History | |||||||||||
|---|---|---|---|---|---|---|---|---|---|---|---|
| Issued | Permit # | Provided by | Bldg # | Description | Est Construction Cost | Status | |||||
| No Building Permit records returned. | |||||||||||
| Click button on building number to access detailed information: | ||||||
|---|---|---|---|---|---|---|
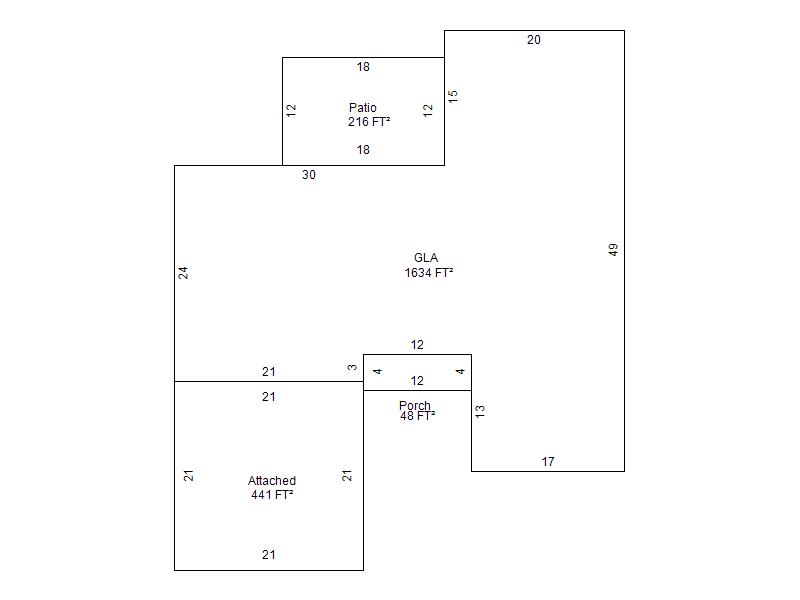
| Bldg # | Vacant/Improved Land | Bldg Description | Year Built | SqFt | # Stories | |
|
1 |
Improved |
Ranch 1 Story |
1981 |
1,634 |
1 Stories |
|