|
|
|
| Larry Stein Oklahoma County Assessor (405) 713-1200 - Public Access System |
|
|
|
|
|
|
| Real Property Display - Screen Produced 4/11/2026 10:32:45 AM | ||||
|---|---|---|---|---|
| Account: R110101490 | Type: Residential | Location: |
2400 APPLEWAY ST |
|
| Building Name/Occupant: |
|
OKLAHOMA CITY |
||
| Owner Name 1: | KELLEY MARIAH S SUCCESSOR TRS |
Parcel PIN#: |
3652-11-010-1490 |
|
| Owner Name 2: | DUBONT LINDA M REV TRUST | 1/4 section #: |
3652 |
|
| Owner Name 3: | Parent Acct: |
|
||
| Billing Address: | 2400 APPLEWAY ST | Tax District: |
|
|
| City, State, Zip | EDMOND, OK 73013-5670 | School System: |
Edmond #12 |
|
|
Country: (If noted) |
Land Size: |
0.1768 Acres |
||
|
Land Value: 35,035 |
|
|||
|
Sect 13-T13N-R3W Qtr NW |
NORTHWOOD SEC 3
Block
014
Lot
007
|
|||
| Full Legal Description: NORTHWOOD SEC 3 014 007 |
| Photo & Sketch (if available) | Comp Sales (ordered by relevancy) |
|
||||||||||||||||||
|
||||||||||||||||||||
| Value History (*The County Treasurer 405-713-1300 posts & collects actual tax amounts. Contact information HERE) | |||||||||||||
|---|---|---|---|---|---|---|---|---|---|---|---|---|---|
| Year | Market Value | Taxable Mkt Value | Gross Assessed | Exemption | Net Assessed | Millage | Est. Tax | Tax Savings | |||||
|
2026 |
233,000 |
207,042 |
22,774 |
0 |
22,774 |
120.32 |
$2,740 |
$344 |
|||||
|
2025 |
226,000 |
197,183 |
21,689 |
0 |
21,689 |
120.32 |
$2,610 |
$381 |
|||||
|
2024 |
218,500 |
187,794 |
20,656 |
0 |
20,656 |
119.96 |
$2,478 |
$405 |
|||||
|
2023 |
213,000 |
178,852 |
19,672 |
0 |
19,672 |
119.02 |
$2,342 |
$447 |
|||||
|
2022 |
191,000 |
170,336 |
18,736 |
0 |
18,736 |
120.10 |
$2,250 |
$273 |
|||||
| Property Account Status/Adjustments/Exemptions | ||
|---|---|---|
| Account # | Exemption Description | Amount |
|
R110101490 |
5% Capped Account |
0 |
| Property Deed Transaction History (Recorded in the County Clerk's Office) | |||||||
|---|---|---|---|---|---|---|---|
| Date | Type | Book | Page | Price | Grantor | Grantee | |
|
3/10/2016 |
|
Deeds |
$0 |
KNIGHT GERALD M & WILLODEAN |
KNIGHT WILLODEAN |
||
|
3/10/2016 |
|
Deeds |
$145,000 |
KNIGHT WILLODEAN |
KELLEY MARIAH S SUCCESSOR TRS |
||
|
6/2/1990 |
|
Historical |
$63,500 |
JONES RICK D |
KNIGHT GERALD M & WILLODEAN |
||
|
9/21/1987 |
|
Historical |
$64,500 |
SCHMIT GREGORY & DIANE |
JONES RICK D |
||
|
7/1/1981 |
|
Historical |
$0 |
|
SCHMIT GREGORY & DIANE |
||
| Last Mailed Notice of Value (N.O.V.) Information/History | ||||||||
|---|---|---|---|---|---|---|---|---|
| Year | Date | Market Value | Taxable Market Value | Gross Assessed | Exemption | Net Assessed | ||
|
2026 |
02/23/2026 |
233,000 |
207,042 |
22,774 |
0 |
22,774 |
||
|
2025 |
02/14/2025 |
226,000 |
197,183 |
21,689 |
0 |
21,689 |
||
|
2024 |
02/13/2024 |
218,500 |
187,794 |
20,656 |
0 |
20,656 |
||
|
2023 |
02/14/2023 |
213,000 |
178,852 |
19,672 |
0 |
19,672 |
||
|
2022 |
03/15/2022 |
191,000 |
170,336 |
18,736 |
0 |
18,736 |
||
| Property Building Permit History | |||||||||||
|---|---|---|---|---|---|---|---|---|---|---|---|
| Issued | Permit # | Provided by | Bldg # | Description | Est Construction Cost | Status | |||||
| No Building Permit records returned. | |||||||||||
| Click button on building number to access detailed information: | ||||||
|---|---|---|---|---|---|---|
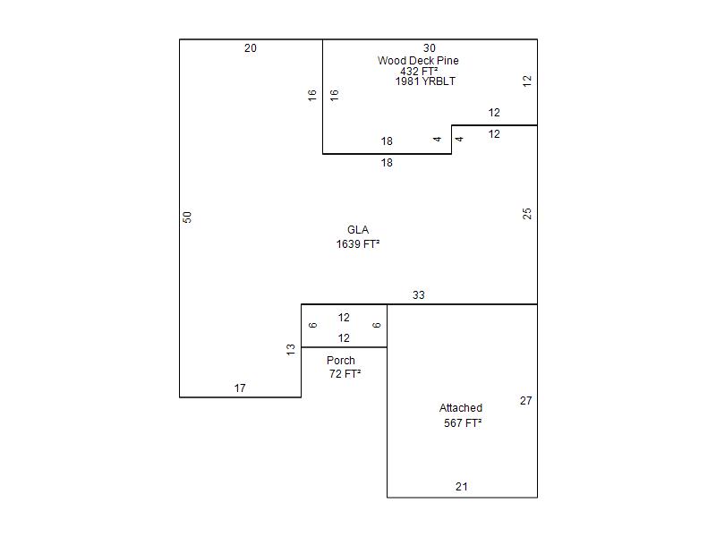
| Bldg # | Vacant/Improved Land | Bldg Description | Year Built | SqFt | # Stories | |
|
1 |
Improved |
Ranch 1 Story |
1981 |
1,639 |
1 Stories |
|