|
|
|
| Larry Stein Oklahoma County Assessor (405) 713-1200 - Public Access System |
|
|
|
|
|
|
| Real Property Display - Screen Produced 4/11/2026 8:51:43 AM | ||||
|---|---|---|---|---|
| Account: R110101530 | Type: Residential | Location: |
2416 APPLE WAY |
|
| Building Name/Occupant: |
|
OKLAHOMA CITY |
||
| Owner Name 1: | RUBENSTEIN MEGAN GRACE |
Parcel PIN#: |
3652-11-010-1530 |
|
| Owner Name 2: | RUBENSTEIN MICHAEL A & MARGARET F | 1/4 section #: |
3652 |
|
| Owner Name 3: | Parent Acct: |
|
||
| Billing Address: | 2416 APPLEWAY ST | Tax District: |
|
|
| City, State, Zip | EDMOND, OK 73013-5670 | School System: |
Edmond #12 |
|
|
Country: (If noted) |
Land Size: |
0.1768 Acres |
||
|
Land Value: 35,035 |
|
|||
|
Sect 13-T13N-R3W Qtr NW |
NORTHWOOD SEC 3
Block
014
Lot
011
|
|||
| Full Legal Description: NORTHWOOD SEC 3 014 011 |
| Photo & Sketch (if available) | Comp Sales (ordered by relevancy) |
|
||||||||||||||||||
|
||||||||||||||||||||
| Value History (*The County Treasurer 405-713-1300 posts & collects actual tax amounts. Contact information HERE) | |||||||||||||
|---|---|---|---|---|---|---|---|---|---|---|---|---|---|
| Year | Market Value | Taxable Mkt Value | Gross Assessed | Exemption | Net Assessed | Millage | Est. Tax | Tax Savings | |||||
|
2026 |
285,000 |
285,000 |
31,350 |
0 |
31,350 |
120.32 |
$3,772 |
$0 |
|||||
|
2025 |
277,500 |
277,500 |
30,525 |
0 |
30,525 |
120.32 |
$3,673 |
$0 |
|||||
|
2024 |
229,000 |
196,302 |
21,593 |
0 |
21,593 |
119.96 |
$2,590 |
$431 |
|||||
|
2023 |
223,000 |
186,955 |
20,564 |
0 |
20,564 |
119.02 |
$2,448 |
$472 |
|||||
|
2022 |
199,500 |
178,053 |
19,585 |
0 |
19,585 |
120.10 |
$2,352 |
$283 |
|||||
| Property Account Status/Adjustments/Exemptions | ||
|---|---|---|
| Account # | Exemption Description | Amount |
|
R110101530 |
5% Capped Account |
0 |
| Property Deed Transaction History (Recorded in the County Clerk's Office) | ||||||||||
|---|---|---|---|---|---|---|---|---|---|---|
| Date | Type | Book | Page | Price | Grantor | Grantee | ||||
|
3/15/2024 |
|
Deeds |
$297,500 |
DANESHMAND ALI |
RUBENSTEIN MEGAN GRACE |
|||||
|
1/12/2024 |
|
Deeds |
$110,000 |
WOMBLE CAROL K |
DANESHMAND ALI |
|||||
|
12/11/2023 |
|
Hmstd Off & |
$0 |
WOMBLE MICHAEL & CAROL K |
WOMBLE CAROL K |
|||||
|
7/15/2003 |
|
Deeds |
$0 |
WOMBLE CAROL K WOMBLE WILLIAM O |
WOMBLE MICHAEL & CAROL K |
|||||
|
4/10/1996 |
|
Historical |
$0 |
WOMBLE MICHAEL A ETAL |
WOMBLE CAROL K |
|||||
| Last Mailed Notice of Value (N.O.V.) Information/History | ||||||||
|---|---|---|---|---|---|---|---|---|
| Year | Date | Market Value | Taxable Market Value | Gross Assessed | Exemption | Net Assessed | ||
|
2026 |
02/23/2026 |
285,000 |
285,000 |
31,350 |
0 |
31,350 |
||
|
2025 |
02/14/2025 |
277,500 |
277,500 |
30,525 |
0 |
30,525 |
||
|
2024 |
02/13/2024 |
229,000 |
196,302 |
21,593 |
0 |
21,593 |
||
|
2024 |
04/05/2024 |
229,000 |
196,302 |
21,593 |
0 |
21,593 |
||
|
2023 |
02/14/2023 |
223,000 |
186,955 |
20,564 |
0 |
20,564 |
||
| Property Building Permit History | |||||||||||
|---|---|---|---|---|---|---|---|---|---|---|---|
| Issued | Permit # | Provided by | Bldg # | Description | Est Construction Cost | Status | |||||
| No Building Permit records returned. | |||||||||||
| Click button on building number to access detailed information: | ||||||
|---|---|---|---|---|---|---|
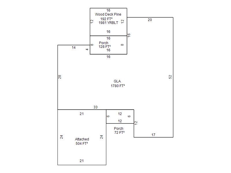
| Bldg # | Vacant/Improved Land | Bldg Description | Year Built | SqFt | # Stories | |
|
1 |
Improved |
Ranch 1 Story |
1981 |
1,780 |
1 Stories |
|