|
|
|
| Larry Stein Oklahoma County Assessor (405) 713-1200 - Public Access System |
|
|
|
|
|
|
| Real Property Display - Screen Produced 4/9/2026 10:45:28 AM | ||||
|---|---|---|---|---|
| Account: R120141060 | Type: Residential | Location: |
2409 NORTHWOOD LN |
|
| Building Name/Occupant: |
|
OKLAHOMA CITY |
||
| Owner Name 1: | CAMPBELL JOHN WILLIAM TRS |
Parcel PIN#: |
3652-12-014-1060 |
|
| Owner Name 2: | CAMPBELL JOHN WILLIAM 2015 REV TRUST | 1/4 section #: |
3652 |
|
| Owner Name 3: | Parent Acct: |
|
||
| Billing Address: | 2409 NORTHWOOD LN | Tax District: |
|
|
| City, State, Zip | EDMOND, OK 73013-5633 | School System: |
Edmond #12 |
|
|
Country: (If noted) |
Land Size: |
0.1687 Acres |
||
|
Land Value: 33,443 |
|
|||
|
Sect 13-T13N-R3W Qtr NW |
NORTHWOOD ADDN IV
Block
014
Lot
018
|
|||
| Full Legal Description: NORTHWOOD ADDN IV 014 018 |
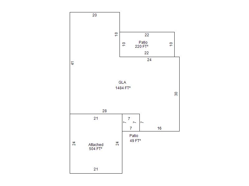
| Photo & Sketch (if available) | Comp Sales (ordered by relevancy) |
|
||||||||||||||||||
|
||||||||||||||||||||
| Value History (*The County Treasurer 405-713-1300 posts & collects actual tax amounts. Contact information HERE) | |||||||||||||
|---|---|---|---|---|---|---|---|---|---|---|---|---|---|
| Year | Market Value | Taxable Mkt Value | Gross Assessed | Exemption | Net Assessed | Millage | Est. Tax | Tax Savings | |||||
|
2026 |
215,000 |
167,844 |
18,462 |
1,000 |
17,462 |
120.32 |
$2,101 |
$744 |
|||||
|
2025 |
208,500 |
162,956 |
17,925 |
1,000 |
16,925 |
120.32 |
$2,036 |
$723 |
|||||
|
2024 |
201,500 |
158,210 |
17,402 |
1,000 |
16,402 |
119.96 |
$1,968 |
$691 |
|||||
|
2023 |
196,500 |
153,602 |
16,896 |
1,000 |
15,896 |
119.02 |
$1,892 |
$681 |
|||||
|
2022 |
176,500 |
149,129 |
16,402 |
1,000 |
15,402 |
120.10 |
$1,850 |
$482 |
|||||
| Property Account Status/Adjustments/Exemptions | ||
|---|---|---|
| Account # | Exemption Description | Amount |
|
R120141060 |
3% Cap Homestead |
0 |
|
R120141060 |
Homestead |
1,000 |
| Property Deed Transaction History (Recorded in the County Clerk's Office) | |||||||
|---|---|---|---|---|---|---|---|
| Date | Type | Book | Page | Price | Grantor | Grantee | |
|
11/25/2015 |
|
Deeds |
$0 |
CAMPBELL JOHN WILLIAM |
CAMPBELL JOHN WILLIAM TRS |
||
|
1/1/1982 |
|
Historical |
$0 |
|
CAMPBELL JOHN WILLIAM |
||
| Last Mailed Notice of Value (N.O.V.) Information/History | ||||||||
|---|---|---|---|---|---|---|---|---|
| Year | Date | Market Value | Taxable Market Value | Gross Assessed | Exemption | Net Assessed | ||
|
2026 |
02/23/2026 |
215,000 |
167,844 |
18,462 |
1,000 |
17,462 |
||
|
2025 |
02/14/2025 |
208,500 |
162,956 |
17,925 |
1,000 |
16,925 |
||
|
2024 |
02/13/2024 |
201,500 |
158,210 |
17,402 |
1,000 |
16,402 |
||
|
2023 |
02/14/2023 |
196,500 |
153,602 |
16,896 |
1,000 |
15,896 |
||
|
2022 |
03/15/2022 |
176,500 |
149,129 |
16,402 |
1,000 |
15,402 |
||
| Property Building Permit History | |||||||||||
|---|---|---|---|---|---|---|---|---|---|---|---|
| Issued | Permit # | Provided by | Bldg # | Description | Est Construction Cost | Status | |||||
| No Building Permit records returned. | |||||||||||
| Click button on building number to access detailed information: | ||||||
|---|---|---|---|---|---|---|
| Bldg # | Vacant/Improved Land | Bldg Description | Year Built | SqFt | # Stories | |
|
1 |
Improved |
Ranch 1 Story |
1981 |
1,484 |
1 Stories |
|