|
|
|
| Larry Stein Oklahoma County Assessor (405) 713-1200 - Public Access System |
|
|
|
|
|
|
| Real Property Display - Screen Produced 4/9/2026 10:25:20 AM | ||||
|---|---|---|---|---|
| Account: R120141610 | Type: Residential | Location: |
2433 SHADY TREE LN |
|
| Building Name/Occupant: |
|
OKLAHOMA CITY |
||
| Owner Name 1: | CANYON RESOURCES LLC |
Parcel PIN#: |
3652-12-014-1610 |
|
| Owner Name 2: | 1/4 section #: |
3652 |
||
| Owner Name 3: | Parent Acct: |
|
||
| Billing Address: | PO BOX 7594 | Tax District: |
|
|
| City, State, Zip | EDMOND, OK 73083 | School System: |
Edmond #12 |
|
|
Country: (If noted) |
Land Size: |
0.1818 Acres |
||
|
Land Value: 36,036 |
|
|||
|
Sect 13-T13N-R3W Qtr NW |
NORTHWOOD ADDN IV
Block
017
Lot
014
|
|||
| Full Legal Description: NORTHWOOD ADDN IV 017 014 |
| Photo & Sketch (if available) | Comp Sales (ordered by relevancy) |
|
||||||||||||||||||
|
||||||||||||||||||||
| Value History (*The County Treasurer 405-713-1300 posts & collects actual tax amounts. Contact information HERE) | |||||||||||||
|---|---|---|---|---|---|---|---|---|---|---|---|---|---|
| Year | Market Value | Taxable Mkt Value | Gross Assessed | Exemption | Net Assessed | Millage | Est. Tax | Tax Savings | |||||
|
2026 |
236,500 |
236,500 |
26,015 |
0 |
26,015 |
120.32 |
$3,130 |
$0 |
|||||
|
2025 |
230,500 |
226,894 |
24,957 |
0 |
24,957 |
120.32 |
$3,003 |
$48 |
|||||
|
2024 |
222,500 |
216,090 |
23,769 |
0 |
23,769 |
119.96 |
$2,851 |
$85 |
|||||
|
2023 |
217,000 |
205,800 |
22,638 |
0 |
22,638 |
119.02 |
$2,694 |
$147 |
|||||
|
2022 |
196,000 |
196,000 |
21,560 |
0 |
21,560 |
120.10 |
$2,589 |
$0 |
|||||
| Property Account Status/Adjustments/Exemptions | ||
|---|---|---|
| Account # | Exemption Description | Amount |
|
R120141610 |
5% Capped Account |
0 |
| Property Deed Transaction History (Recorded in the County Clerk's Office) | ||||||||||
|---|---|---|---|---|---|---|---|---|---|---|
| Date | Type | Book | Page | Price | Grantor | Grantee | ||||
|
5/21/2021 |
|
Deeds |
$193,000 |
VENABLE PATRICK R |
CANYON RESOURCES LLC |
|||||
|
3/31/2015 |
|
Deeds |
$140,000 |
NORRIS BETTE |
VENABLE PATRICK R |
|||||
|
8/22/2003 |
|
Deeds |
$105,000 |
WICKSTROM JOHN C WICKSTROM MARY J |
NORRIS BETTE |
|||||
|
8/28/1996 |
|
Historical |
$69,500 |
LOHMANN CONSTANCE E |
WICKSTROM JOHN C |
|||||
|
7/19/1996 |
|
Historical |
$0 |
BROWN JAMES A & BETTY B |
LOHMANN CONSTANCE E |
|||||
| Last Mailed Notice of Value (N.O.V.) Information/History | ||||||||
|---|---|---|---|---|---|---|---|---|
| Year | Date | Market Value | Taxable Market Value | Gross Assessed | Exemption | Net Assessed | ||
|
2026 |
02/23/2026 |
236,500 |
236,500 |
26,015 |
0 |
26,015 |
||
|
2025 |
02/14/2025 |
230,500 |
226,894 |
24,957 |
0 |
24,957 |
||
|
2024 |
02/13/2024 |
222,500 |
216,090 |
23,769 |
0 |
23,769 |
||
|
2023 |
02/14/2023 |
217,000 |
205,800 |
22,638 |
0 |
22,638 |
||
|
2022 |
03/15/2022 |
196,000 |
196,000 |
21,560 |
0 |
21,560 |
||
| Property Building Permit History | |||||||||||
|---|---|---|---|---|---|---|---|---|---|---|---|
| Issued | Permit # | Provided by | Bldg # | Description | Est Construction Cost | Status | |||||
| No Building Permit records returned. | |||||||||||
| Click button on building number to access detailed information: | ||||||
|---|---|---|---|---|---|---|
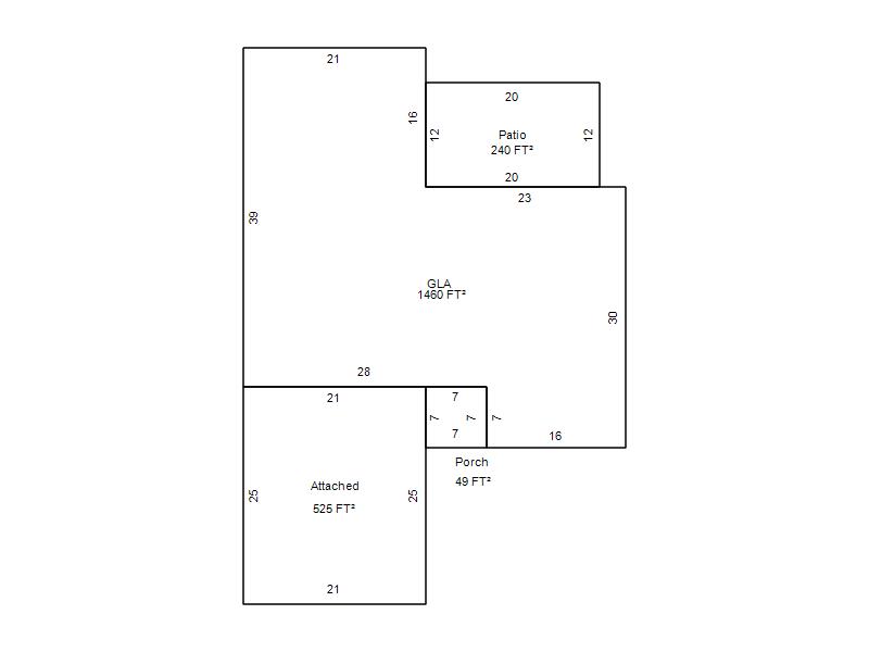
| Bldg # | Vacant/Improved Land | Bldg Description | Year Built | SqFt | # Stories | |
|
1 |
Improved |
Ranch 1 Story |
1982 |
1,460 |
1 Stories |
|