|
|
|
| Larry Stein Oklahoma County Assessor (405) 713-1200 - Public Access System |
|
|
|
|
|
|
| Real Property Display - Screen Produced 4/9/2026 10:25:20 AM | ||||
|---|---|---|---|---|
| Account: R120141770 | Type: Residential | Location: |
2328 SHADY TREE LN |
|
| Building Name/Occupant: |
|
OKLAHOMA CITY |
||
| Owner Name 1: | STEWART RYAN PARKER |
Parcel PIN#: |
3652-12-014-1770 |
|
| Owner Name 2: | 1/4 section #: |
3652 |
||
| Owner Name 3: | Parent Acct: |
|
||
| Billing Address: | 2328 SHADY TREE LN | Tax District: |
|
|
| City, State, Zip | EDMOND, OK 73013-5638 | School System: |
Edmond #12 |
|
|
Country: (If noted) |
Land Size: |
0.1703 Acres |
||
|
Land Value: 33,761 |
|
|||
|
Sect 13-T13N-R3W Qtr NW |
NORTHWOOD ADDN IV
Block
018
Lot
004
|
|||
| Full Legal Description: NORTHWOOD ADDN IV 018 004 |
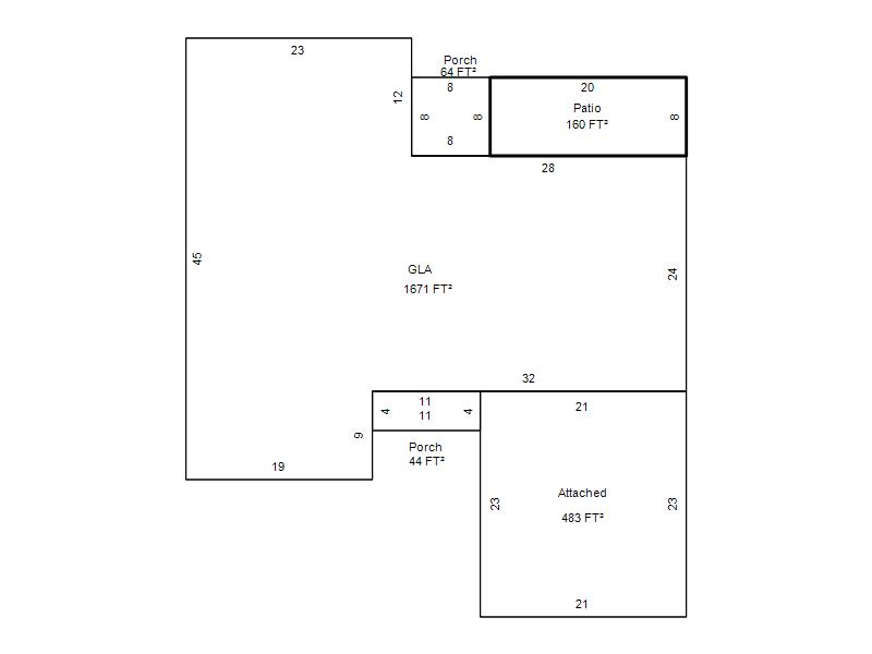
| Photo & Sketch (if available) | Comp Sales (ordered by relevancy) |
|
||||||||||||||||||
|
||||||||||||||||||||
| Value History (*The County Treasurer 405-713-1300 posts & collects actual tax amounts. Contact information HERE) | |||||||||||||
|---|---|---|---|---|---|---|---|---|---|---|---|---|---|
| Year | Market Value | Taxable Mkt Value | Gross Assessed | Exemption | Net Assessed | Millage | Est. Tax | Tax Savings | |||||
|
2026 |
239,000 |
208,381 |
22,921 |
0 |
22,921 |
120.32 |
$2,758 |
$405 |
|||||
|
2025 |
231,500 |
198,459 |
21,829 |
0 |
21,829 |
120.32 |
$2,627 |
$437 |
|||||
|
2024 |
225,000 |
189,009 |
20,790 |
0 |
20,790 |
119.96 |
$2,494 |
$475 |
|||||
|
2023 |
218,500 |
180,009 |
19,800 |
0 |
19,800 |
119.02 |
$2,357 |
$504 |
|||||
|
2022 |
194,500 |
171,438 |
18,858 |
0 |
18,858 |
120.10 |
$2,265 |
$305 |
|||||
| Property Account Status/Adjustments/Exemptions | ||
|---|---|---|
| Account # | Exemption Description | Amount |
|
R120141770 |
5% Capped Account |
0 |
| Property Deed Transaction History (Recorded in the County Clerk's Office) | ||||||||||
|---|---|---|---|---|---|---|---|---|---|---|
| Date | Type | Book | Page | Price | Grantor | Grantee | ||||
|
5/29/2015 |
|
Deeds |
$149,000 |
STILL AUTUMN |
STEWART RYAN PARKER |
|||||
|
9/17/2009 |
|
Deeds |
$140,000 |
HALL JOHN R |
STILL AUTUMN |
|||||
|
2/27/2007 |
|
Deeds |
$134,500 |
WILLIAMS CLARENCE D & BARBARA J |
HALL JOHN R |
|||||
|
3/24/2006 |
|
Deeds |
$121,500 |
BAUMGARTNER PAUL C |
WILLIAMS CLARENCE D & BARBARA J |
|||||
|
7/24/2002 |
|
Deeds |
$0 |
BAUMGARTNER PAUL & BERNICE G |
BAUMGARTNER PAUL C |
|||||
| Last Mailed Notice of Value (N.O.V.) Information/History | ||||||||
|---|---|---|---|---|---|---|---|---|
| Year | Date | Market Value | Taxable Market Value | Gross Assessed | Exemption | Net Assessed | ||
|
2026 |
02/23/2026 |
239,000 |
208,381 |
22,921 |
0 |
22,921 |
||
|
2025 |
02/14/2025 |
231,500 |
198,459 |
21,829 |
0 |
21,829 |
||
|
2024 |
02/13/2024 |
225,000 |
189,009 |
20,790 |
0 |
20,790 |
||
|
2023 |
02/14/2023 |
218,500 |
180,009 |
19,800 |
0 |
19,800 |
||
|
2022 |
03/15/2022 |
194,500 |
171,438 |
18,858 |
0 |
18,858 |
||
| Property Building Permit History | |||||||||||
|---|---|---|---|---|---|---|---|---|---|---|---|
| Issued | Permit # | Provided by | Bldg # | Description | Est Construction Cost | Status | |||||
| No Building Permit records returned. | |||||||||||
| Click button on building number to access detailed information: | ||||||
|---|---|---|---|---|---|---|
| Bldg # | Vacant/Improved Land | Bldg Description | Year Built | SqFt | # Stories | |
|
1 |
Improved |
Ranch 1 Story |
1983 |
1,671 |
1 Stories |
|