|
|
|
| Larry Stein Oklahoma County Assessor (405) 713-1200 - Public Access System |
|
|
|
|
|
|
| Real Property Display - Screen Produced 4/2/2026 7:50:11 AM | ||||
|---|---|---|---|---|
| Account: R110121090 | Type: Residential | Location: |
2749 TEALWOOD DR |
|
| Building Name/Occupant: |
|
OKLAHOMA CITY |
||
| Owner Name 1: | HAWLEY PAULA KAY |
Parcel PIN#: |
3671-11-012-1090 |
|
| Owner Name 2: | 1/4 section #: |
3671 |
||
| Owner Name 3: | Parent Acct: |
|
||
| Billing Address: | 3920 LANDMARK RD | Tax District: |
|
|
| City, State, Zip | YUKON, OK 73099-3212 | School System: |
Oklahoma City #89 |
|
|
Country: (If noted) |
Land Size: |
0.1001 Acres |
||
|
Land Value: 28,340 |
|
|||
|
Sect 18-T13N-R3W Qtr SW |
TEALWOOD
Block
001
Lot
009
|
|||
| Full Legal Description: TEALWOOD 001 009 |
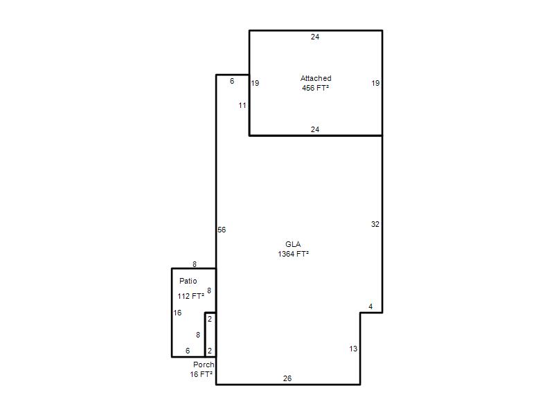
| Photo & Sketch (if available) | Comp Sales (ordered by relevancy) |
|
||||||||||||||||||
|
||||||||||||||||||||
| Value History (*The County Treasurer 405-713-1300 posts & collects actual tax amounts. Contact information HERE) | |||||||||||||
|---|---|---|---|---|---|---|---|---|---|---|---|---|---|
| Year | Market Value | Taxable Mkt Value | Gross Assessed | Exemption | Net Assessed | Millage | Est. Tax | Tax Savings | |||||
|
2026 |
194,500 |
169,520 |
18,646 |
0 |
18,646 |
122.90 |
$2,292 |
$338 |
|||||
|
2025 |
186,500 |
161,448 |
17,758 |
0 |
17,758 |
122.90 |
$2,183 |
$339 |
|||||
|
2024 |
183,500 |
153,760 |
16,913 |
0 |
16,913 |
123.89 |
$2,095 |
$405 |
|||||
|
2023 |
174,000 |
146,439 |
16,108 |
0 |
16,108 |
122.82 |
$1,978 |
$372 |
|||||
|
2022 |
150,000 |
139,466 |
15,340 |
0 |
15,340 |
117.63 |
$1,805 |
$136 |
|||||
| Property Account Status/Adjustments/Exemptions | ||
|---|---|---|
| Account # | Exemption Description | Amount |
|
R110121090 |
5% Capped Account |
0 |
| Property Deed Transaction History (Recorded in the County Clerk's Office) | ||||||||||
|---|---|---|---|---|---|---|---|---|---|---|
| Date | Type | Book | Page | Price | Grantor | Grantee | ||||
|
11/24/1998 |
|
Historical |
$82,000 |
FEDERAL NATIONAL |
HAWLEY PAULA KAY |
|||||
|
7/10/1998 |
|
Historical |
$0 |
STEVENS RICK E |
FEDERAL NATIONAL |
|||||
|
10/2/1995 |
|
Historical |
$84,000 |
REALTY PARTNERS CORPORATION |
STEVENS RICK E |
|||||
|
10/22/1987 |
|
Historical |
$0 |
REALTY PARTNERS |
REALTY PARTNERS CORPORATION |
|||||
|
9/8/1987 |
|
Historical |
$0 |
MTI PROPERTIES LTD |
REALTY PARTNERS |
|||||
| Last Mailed Notice of Value (N.O.V.) Information/History | ||||||||
|---|---|---|---|---|---|---|---|---|
| Year | Date | Market Value | Taxable Market Value | Gross Assessed | Exemption | Net Assessed | ||
|
2026 |
02/23/2026 |
194,500 |
169,520 |
18,646 |
0 |
18,646 |
||
|
2025 |
02/14/2025 |
186,500 |
161,448 |
17,758 |
0 |
17,758 |
||
|
2024 |
02/13/2024 |
183,500 |
153,760 |
16,913 |
0 |
16,913 |
||
|
2023 |
02/14/2023 |
174,000 |
146,439 |
16,108 |
0 |
16,108 |
||
|
2022 |
03/15/2022 |
150,000 |
139,466 |
15,340 |
0 |
15,340 |
||
| Property Building Permit History | ||||||
|---|---|---|---|---|---|---|
| Issued | Permit # | Provided by | Bldg # | Description | Est Construction Cost | Status |
|
3/16/1995 |
10204458 |
OKLAHOMA CITY |
1 |
Main Dwellin |
50,000 |
Inactive |
| Click button on building number to access detailed information: | ||||||
|---|---|---|---|---|---|---|
| Bldg # | Vacant/Improved Land | Bldg Description | Year Built | SqFt | # Stories | |
|
1 |
Improved |
Ranch 1 Story |
1995 |
1,364 |
1 Stories |
|