|
|
|
| Larry Stein Oklahoma County Assessor (405) 713-1200 - Public Access System |
|
|
|
|
|
|
| Real Property Display - Screen Produced 4/3/2026 5:11:51 AM | ||||
|---|---|---|---|---|
| Account: R122893110 | Type: Residential | Location: |
11130 N STRATFORD DR, Unit 311 |
|
| Building Name/Occupant: |
|
OKLAHOMA CITY |
||
| Owner Name 1: | MOREIRA JORGE E |
Parcel PIN#: |
3674-12-289-3110 |
|
| Owner Name 2: | 1/4 section #: |
3674 |
||
| Owner Name 3: | Parent Acct: |
|
||
| Billing Address: | 11130 N STRATFORD DR, Unit 311 | Tax District: |
|
|
| City, State, Zip | OKLAHOMA CITY, OK 73120-7243 | School System: |
Oklahoma City #89 |
|
|
Country: (If noted) |
Land Size: |
1.0000 Square Feet |
||
|
Land Value: 8,325 |
|
|||
|
Sect 19-T13N-R3W Qtr SE |
STRATFORD PLACE CONDOMINIUM
Block
000
Lot
000
|
|||
| Full Legal Description: STRATFORD PLACE CONDOMINIUM 000 000 UNIT 311 |
| Photo & Sketch (if available) | Comp Sales (ordered by relevancy) |
|
||||||||||||||||||
|
||||||||||||||||||||
| Value History (*The County Treasurer 405-713-1300 posts & collects actual tax amounts. Contact information HERE) | |||||||||||||
|---|---|---|---|---|---|---|---|---|---|---|---|---|---|
| Year | Market Value | Taxable Mkt Value | Gross Assessed | Exemption | Net Assessed | Millage | Est. Tax | Tax Savings | |||||
|
2026 |
78,000 |
60,301 |
6,632 |
0 |
6,632 |
122.90 |
$815 |
$239 |
|||||
|
2025 |
76,500 |
57,430 |
6,316 |
0 |
6,316 |
122.90 |
$776 |
$258 |
|||||
|
2024 |
75,500 |
54,696 |
6,016 |
0 |
6,016 |
123.89 |
$745 |
$284 |
|||||
|
2023 |
65,000 |
52,092 |
5,729 |
0 |
5,729 |
122.82 |
$704 |
$174 |
|||||
|
2022 |
51,000 |
49,612 |
5,456 |
0 |
5,456 |
117.63 |
$642 |
$18 |
|||||
| Property Account Status/Adjustments/Exemptions | ||
|---|---|---|
| Account # | Exemption Description | Amount |
|
R122893110 |
5% Capped Account |
0 |
| Property Deed Transaction History (Recorded in the County Clerk's Office) | ||||||||||
|---|---|---|---|---|---|---|---|---|---|---|
| Date | Type | Book | Page | Price | Grantor | Grantee | ||||
|
2/15/2019 |
|
Deeds |
$48,000 |
SINGLETEARY BRAD L & MARCI K |
MOREIRA JORGE E |
|||||
|
11/10/2017 |
|
Mult Parcel |
$156,000 |
PARKER DOUGLAS O & DIANE M TRS |
SINGLETEARY BRAD L & MARCI K |
|||||
|
11/10/2017 |
|
Hmstd Off & |
$0 |
PARKER DOUGLAS & DIANE |
PARKER DOUGLAS O & DIANE M TRS |
|||||
|
3/29/2010 |
|
Deeds |
$0 |
PARKER DOUGLAS O |
PARKER DOUGLAS O & DIANE M TRS |
|||||
|
7/16/2009 |
|
Other |
$0 |
SECRETARY OF HOUSING & URBAN DEVELOPMENT |
PARKER DOUGLAS O |
|||||
| Last Mailed Notice of Value (N.O.V.) Information/History | ||||||||
|---|---|---|---|---|---|---|---|---|
| Year | Date | Market Value | Taxable Market Value | Gross Assessed | Exemption | Net Assessed | ||
|
2026 |
02/23/2026 |
78,000 |
60,301 |
6,632 |
0 |
6,632 |
||
|
2025 |
02/14/2025 |
76,500 |
57,430 |
6,316 |
0 |
6,316 |
||
|
2024 |
02/13/2024 |
75,500 |
54,696 |
6,016 |
0 |
6,016 |
||
|
2023 |
02/14/2023 |
65,000 |
52,092 |
5,729 |
0 |
5,729 |
||
|
2022 |
03/15/2022 |
51,000 |
49,612 |
5,456 |
0 |
5,456 |
||
| Property Building Permit History | |||||||||||
|---|---|---|---|---|---|---|---|---|---|---|---|
| Issued | Permit # | Provided by | Bldg # | Description | Est Construction Cost | Status | |||||
| No Building Permit records returned. | |||||||||||
| Click button on building number to access detailed information: | ||||||
|---|---|---|---|---|---|---|
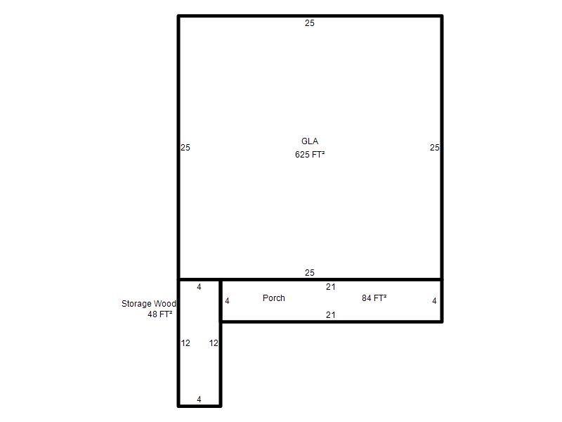
| Bldg # | Vacant/Improved Land | Bldg Description | Year Built | SqFt | # Stories | |
|
1 |
Improved |
Condo <= 3 Stories |
1984 |
625 |
1 Stories |
|