|
|
|
| Larry Stein Oklahoma County Assessor (405) 713-1200 - Public Access System |
|
|
|
|
|
|
| Real Property Display - Screen Produced 4/4/2026 2:38:53 AM | ||||
|---|---|---|---|---|
| Account: R130731800 | Type: Residential | Location: |
2341 NW 112TH ST |
|
| Building Name/Occupant: |
|
OKLAHOMA CITY |
||
| Owner Name 1: | MINCEY CADEN |
Parcel PIN#: |
3674-13-073-1800 |
|
| Owner Name 2: | BENTLEY PAIGE | 1/4 section #: |
3674 |
|
| Owner Name 3: | Parent Acct: |
|
||
| Billing Address: | 2341 NW 112TH ST | Tax District: |
|
|
| City, State, Zip | OKLAHOMA CITY, OK 73120-7219 | School System: |
Oklahoma City #89 |
|
|
Country: (If noted) |
Land Size: |
0.2157 Acres |
||
|
Land Value: 37,576 |
|
|||
|
Sect 19-T13N-R3W Qtr SE |
CASADY TERRACE 2ND
Block
009
Lot
010
|
|||
| Full Legal Description: CASADY TERRACE 2ND 009 010 |
| Photo & Sketch (if available) | Comp Sales (ordered by relevancy) |
|
||||||||||||||||||
|
||||||||||||||||||||
| Value History (*The County Treasurer 405-713-1300 posts & collects actual tax amounts. Contact information HERE) | |||||||||||||
|---|---|---|---|---|---|---|---|---|---|---|---|---|---|
| Year | Market Value | Taxable Mkt Value | Gross Assessed | Exemption | Net Assessed | Millage | Est. Tax | Tax Savings | |||||
|
2026 |
280,000 |
280,000 |
30,800 |
0 |
30,800 |
122.90 |
$3,785 |
$0 |
|||||
|
2025 |
279,500 |
279,500 |
30,745 |
0 |
30,745 |
122.90 |
$3,779 |
$0 |
|||||
|
2024 |
271,500 |
232,076 |
25,527 |
0 |
25,527 |
123.89 |
$3,163 |
$537 |
|||||
|
2023 |
256,000 |
221,025 |
24,312 |
0 |
24,312 |
122.82 |
$2,986 |
$473 |
|||||
|
2022 |
210,500 |
210,500 |
23,155 |
0 |
23,155 |
117.63 |
$2,724 |
$0 |
|||||
| Property Account Status/Adjustments/Exemptions | ||
|---|---|---|
| Account # | Exemption Description | Amount |
|
R130731800 |
5% Capped Account |
0 |
| Property Deed Transaction History (Recorded in the County Clerk's Office) | ||||||||||
|---|---|---|---|---|---|---|---|---|---|---|
| Date | Type | Book | Page | Price | Grantor | Grantee | ||||
|
3/25/2024 |
|
Deeds |
$250,000 |
JONES STEPHEN R |
MINCEY CADEN |
|||||
|
5/27/2021 |
|
Deeds |
$205,500 |
TORTORELLI RICHARD & KATHRYNE |
JONES STEPHEN R |
|||||
|
3/20/2014 |
|
Deeds |
$124,500 |
ADAMS WILLIS D & JUANITA |
TORTORELLI RICHARD & KATHRYNE |
|||||
|
4/10/2006 |
|
Deeds |
$0 |
ADAMS WILLIS D RODGERS KELA |
ADAMS WILLIS D & JUANITA |
|||||
|
4/10/2006 |
|
Deeds |
$0 |
SAMICO |
ADAMS WILLIS D & JUANITA |
|||||
| Last Mailed Notice of Value (N.O.V.) Information/History | ||||||||
|---|---|---|---|---|---|---|---|---|
| Year | Date | Market Value | Taxable Market Value | Gross Assessed | Exemption | Net Assessed | ||
|
2026 |
02/23/2026 |
280,000 |
280,000 |
30,800 |
0 |
30,800 |
||
|
2025 |
02/14/2025 |
279,500 |
279,500 |
30,745 |
0 |
30,745 |
||
|
2024 |
02/13/2024 |
271,500 |
232,076 |
25,527 |
0 |
25,527 |
||
|
2023 |
02/14/2023 |
256,000 |
221,025 |
24,312 |
0 |
24,312 |
||
|
2022 |
03/15/2022 |
210,500 |
210,500 |
23,155 |
0 |
23,155 |
||
| Property Building Permit History | |||||||||||
|---|---|---|---|---|---|---|---|---|---|---|---|
| Issued | Permit # | Provided by | Bldg # | Description | Est Construction Cost | Status | |||||
| No Building Permit records returned. | |||||||||||
| Click button on building number to access detailed information: | ||||||
|---|---|---|---|---|---|---|
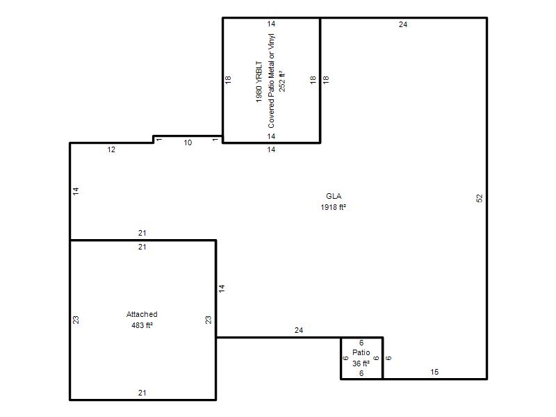
| Bldg # | Vacant/Improved Land | Bldg Description | Year Built | SqFt | # Stories | |
|
1 |
Improved |
Ranch 1 Story |
1972 |
1,918 |
1 Stories |
|