|
|
|
| Larry Stein Oklahoma County Assessor (405) 713-1200 - Public Access System |
|
|
|
|
|
|
| Real Property Display - Screen Produced 4/4/2026 12:53:27 AM | ||||
|---|---|---|---|---|
| Account: R109801175 | Type: Residential | Location: |
2528 NW 116TH ST |
|
| Building Name/Occupant: |
|
OKLAHOMA CITY |
||
| Owner Name 1: | KLETS GREGORY |
Parcel PIN#: |
3676-10-980-1175 |
|
| Owner Name 2: | 1/4 section #: |
3676 |
||
| Owner Name 3: | Parent Acct: |
|
||
| Billing Address: | 267 CURTNER AVE | Tax District: |
|
|
| City, State, Zip | PALO ALTO, CA 94306 | School System: |
Oklahoma City #89 |
|
|
Country: (If noted) |
Land Size: |
0.2095 Acres |
||
|
Land Value: 34,219 |
|
|||
|
Sect 19-T13N-R3W Qtr NW |
BEL AIR SECTION STONEGATE
Block
024
Lot
008
|
|||
| Full Legal Description: BEL AIR SECTION STONEGATE 024 008 |
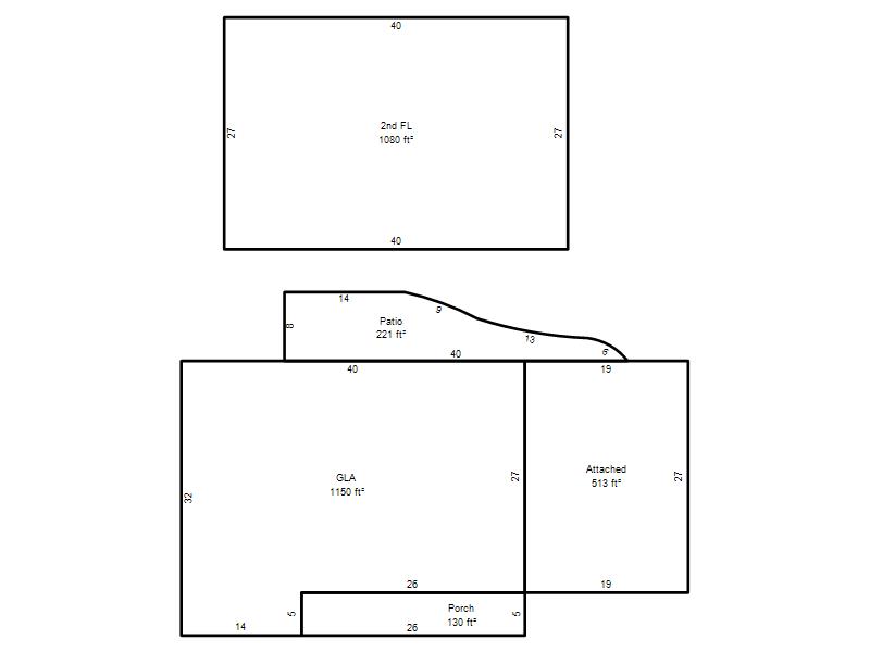
| Photo & Sketch (if available) | Comp Sales (ordered by relevancy) |
|
||||||||||||||||||
|
||||||||||||||||||||
| Value History (*The County Treasurer 405-713-1300 posts & collects actual tax amounts. Contact information HERE) | |||||||||||||
|---|---|---|---|---|---|---|---|---|---|---|---|---|---|
| Year | Market Value | Taxable Mkt Value | Gross Assessed | Exemption | Net Assessed | Millage | Est. Tax | Tax Savings | |||||
|
2026 |
310,000 |
295,974 |
32,556 |
0 |
32,556 |
122.90 |
$4,001 |
$190 |
|||||
|
2025 |
308,000 |
281,880 |
31,006 |
0 |
31,006 |
122.90 |
$3,811 |
$353 |
|||||
|
2024 |
302,500 |
268,458 |
29,530 |
0 |
29,530 |
123.89 |
$3,659 |
$464 |
|||||
|
2023 |
287,500 |
255,675 |
28,124 |
0 |
28,124 |
122.82 |
$3,454 |
$430 |
|||||
|
2022 |
243,500 |
243,500 |
26,785 |
0 |
26,785 |
117.63 |
$3,151 |
$0 |
|||||
| Property Account Status/Adjustments/Exemptions | ||
|---|---|---|
| Account # | Exemption Description | Amount |
|
R109801175 |
5% Capped Account |
0 |
| Property Deed Transaction History (Recorded in the County Clerk's Office) | ||||||||||
|---|---|---|---|---|---|---|---|---|---|---|
| Date | Type | Book | Page | Price | Grantor | Grantee | ||||
|
9/30/2021 |
|
Deeds |
$235,000 |
REI NATION LLC |
KLETS GREGORY |
|||||
|
5/19/2021 |
|
Deeds |
$140,000 |
SNYDER KAY FRANCES |
REI NATION LLC |
|||||
|
11/19/2003 |
|
Hmstd Off & |
$0 |
WHITE JOHN B |
SNYDER KAY FRANCES |
|||||
|
5/27/1999 |
|
Deeds |
$0 |
WHITE ANNIE B |
WHITE JOHN B |
|||||
|
5/18/1999 |
|
Deeds |
$0 |
WHITE JOHN B |
WHITE ANNIE B |
|||||
| Last Mailed Notice of Value (N.O.V.) Information/History | ||||||||
|---|---|---|---|---|---|---|---|---|
| Year | Date | Market Value | Taxable Market Value | Gross Assessed | Exemption | Net Assessed | ||
|
2026 |
02/23/2026 |
310,000 |
295,974 |
32,556 |
0 |
32,556 |
||
|
2025 |
02/14/2025 |
308,000 |
281,880 |
31,006 |
0 |
31,006 |
||
|
2024 |
02/13/2024 |
302,500 |
268,458 |
29,530 |
0 |
29,530 |
||
|
2023 |
02/14/2023 |
287,500 |
255,675 |
28,124 |
0 |
28,124 |
||
|
2022 |
03/15/2022 |
243,500 |
243,500 |
26,785 |
0 |
26,785 |
||
| Property Building Permit History | |||||||||||
|---|---|---|---|---|---|---|---|---|---|---|---|
| Issued | Permit # | Provided by | Bldg # | Description | Est Construction Cost | Status | |||||
| No Building Permit records returned. | |||||||||||
| Click button on building number to access detailed information: | ||||||
|---|---|---|---|---|---|---|
| Bldg # | Vacant/Improved Land | Bldg Description | Year Built | SqFt | # Stories | |
|
1 |
Improved |
2 Story |
1964 |
2,230 |
2 Stories |
|