|
|
|
| Larry Stein Oklahoma County Assessor (405) 713-1200 - Public Access System |
|
|
|
|
|
|
| Real Property Display - Screen Produced 4/4/2026 5:41:26 PM | ||||
|---|---|---|---|---|
| Account: R130565600 | Type: Residential | Location: |
1016 NW 98TH ST |
|
| Building Name/Occupant: |
|
OKLAHOMA CITY |
||
| Owner Name 1: | GOLD JACK HOLDINGS LLC |
Parcel PIN#: |
3711-13-056-5600 |
|
| Owner Name 2: | 1/4 section #: |
3711 |
||
| Owner Name 3: | Parent Acct: |
|
||
| Billing Address: | 3160 W BRITTON RD, Unit DD | Tax District: |
|
|
| City, State, Zip | OKLAHOMA CITY, OK 73120 | School System: |
Oklahoma City #89 |
|
|
Country: (If noted) |
Land Size: |
0.1607 Acres |
||
|
Land Value: 11,900 |
|
|||
|
Sect 28-T13N-R3W Qtr SW |
CENTRAL VIEW HEIGHTS
Block
004
Lot
000
|
|||
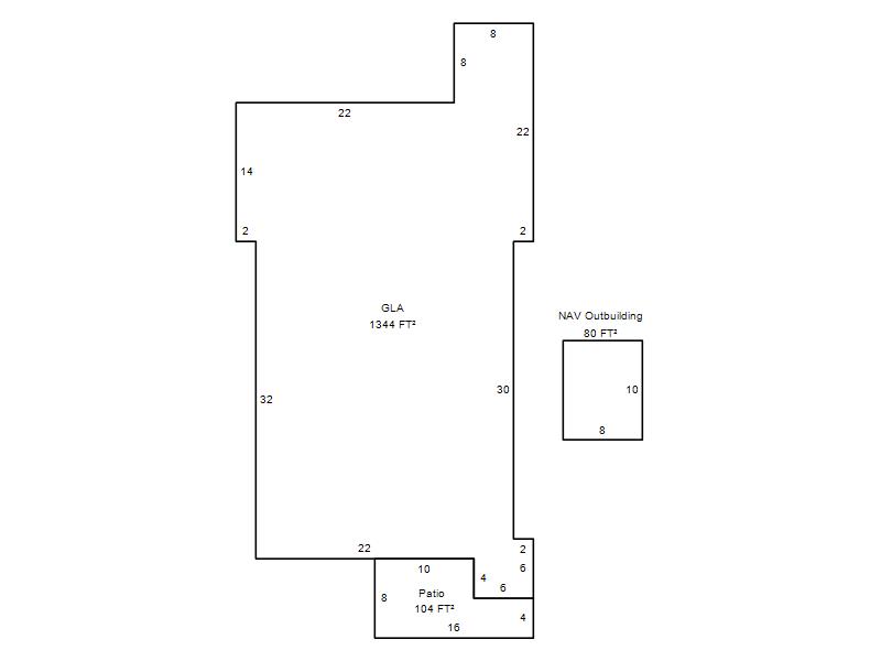
| Full Legal Description: CENTRAL VIEW HEIGHTS 004 000 LOTS 19 & 20 |
| Photo & Sketch (if available) | Comp Sales (ordered by relevancy) |
|
||||||||||||||||||
|
||||||||||||||||||||
| Value History (*The County Treasurer 405-713-1300 posts & collects actual tax amounts. Contact information HERE) | |||||||||||||
|---|---|---|---|---|---|---|---|---|---|---|---|---|---|
| Year | Market Value | Taxable Mkt Value | Gross Assessed | Exemption | Net Assessed | Millage | Est. Tax | Tax Savings | |||||
|
2026 |
115,500 |
115,500 |
12,705 |
0 |
12,705 |
122.90 |
$1,561 |
$0 |
|||||
|
2025 |
116,500 |
112,350 |
12,358 |
0 |
12,358 |
122.90 |
$1,519 |
$56 |
|||||
|
2024 |
107,000 |
107,000 |
11,770 |
0 |
11,770 |
123.89 |
$1,458 |
$0 |
|||||
|
2023 |
89,000 |
48,766 |
5,363 |
0 |
5,363 |
122.82 |
$659 |
$544 |
|||||
|
2022 |
73,500 |
46,444 |
5,107 |
0 |
5,107 |
117.63 |
$601 |
$350 |
|||||
| Property Account Status/Adjustments/Exemptions | ||
|---|---|---|
| Account # | Exemption Description | Amount |
|
R130565600 |
5% Capped Account |
0 |
| Property Deed Transaction History (Recorded in the County Clerk's Office) | ||||||||||
|---|---|---|---|---|---|---|---|---|---|---|
| Date | Type | Book | Page | Price | Grantor | Grantee | ||||
|
8/14/2023 |
|
Deeds |
$185,000 |
BRAVO COMPANY LLC |
GOLD JACK HOLDINGS LLC |
|||||
|
2/14/2023 |
|
Deeds |
$75,000 |
ELITE INVESTMENTS LLC |
MY QUICK HOME SOLUTIONS LLC |
|||||
|
2/11/2023 |
|
Deeds |
$85,000 |
MY QUICK HOME SOLUTIONS LLC |
BRAVO COMPANY LLC |
|||||
|
1/23/2008 |
|
Hmstd Off & |
$0 |
FOOTE MICHAEL & ASHLEY |
ELITE INVESTMENTS LLC |
|||||
|
12/28/2007 |
|
Deeds |
$43,500 |
ONEBODY PROPERTIES LLC |
FOOTE MICHAEL & ASHLEY |
|||||
| Last Mailed Notice of Value (N.O.V.) Information/History | ||||||||
|---|---|---|---|---|---|---|---|---|
| Year | Date | Market Value | Taxable Market Value | Gross Assessed | Exemption | Net Assessed | ||
|
2026 |
02/23/2026 |
115,500 |
115,500 |
12,705 |
0 |
12,705 |
||
|
2025 |
02/14/2025 |
116,500 |
112,350 |
12,358 |
0 |
12,358 |
||
|
2024 |
02/13/2024 |
107,000 |
107,000 |
11,770 |
0 |
11,770 |
||
|
2023 |
02/14/2023 |
89,000 |
48,766 |
5,363 |
0 |
5,363 |
||
|
2023 |
03/02/2023 |
89,000 |
48,766 |
5,363 |
0 |
5,363 |
||
| Property Building Permit History | ||||||
|---|---|---|---|---|---|---|
| Issued | Permit # | Provided by | Bldg # | Description | Est Construction Cost | Status |
|
2/4/2004 |
10287445 |
OKLAHOMA CITY |
1 |
Fire Remodel |
3,000 |
Inactive |
|
1/27/2004 |
10287319 |
OKLAHOMA CITY |
1 |
Burn - Trip |
3,000 |
Inactive |
| Click button on building number to access detailed information: | ||||||
|---|---|---|---|---|---|---|
| Bldg # | Vacant/Improved Land | Bldg Description | Year Built | SqFt | # Stories | |
|
1 |
Improved |
Ranch 1 Story |
1962 |
1,344 |
1 Stories |
|