|
|
|
| Larry Stein Oklahoma County Assessor (405) 713-1200 - Public Access System |
|
|
|
|
|
|
| Real Property Display - Screen Produced 4/4/2026 11:16:45 AM | ||||
|---|---|---|---|---|
| Account: R130642000 | Type: Residential | Location: |
9807 N WESTERN AVE |
|
| Building Name/Occupant: |
|
OKLAHOMA CITY |
||
| Owner Name 1: | CRUZ SARAH |
Parcel PIN#: |
3714-13-064-2000 |
|
| Owner Name 2: | 1/4 section #: |
3714 |
||
| Owner Name 3: | Parent Acct: |
|
||
| Billing Address: | 9807 N WESTERN AVE | Tax District: |
|
|
| City, State, Zip | OKLAHOMA CITY, OK 73114-4823 | School System: |
Oklahoma City #89 |
|
|
Country: (If noted) |
Land Size: |
0.1539 Acres |
||
|
Land Value: 17,433 |
|
|||
|
Sect 29-T13N-R3W Qtr SE |
ALTAVUE ADDITION
Block
005
Lot
000
|
|||
| Full Legal Description: ALTAVUE ADDITION 005 000 ALL LOT 9 & N20FT OF LOT 10 |
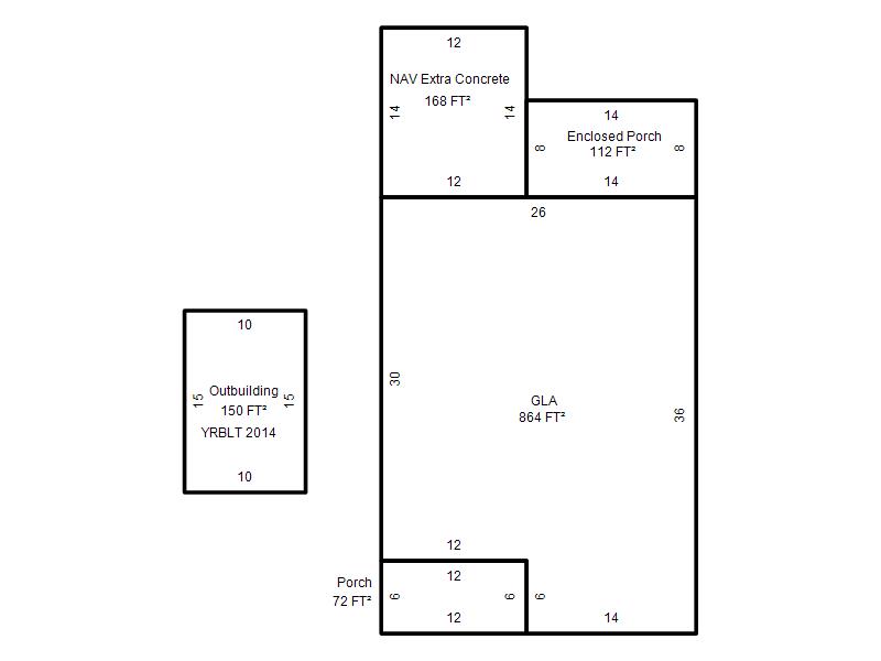
| Photo & Sketch (if available) | Comp Sales (ordered by relevancy) |
|
||||||||||||||||||
|
||||||||||||||||||||
| Value History (*The County Treasurer 405-713-1300 posts & collects actual tax amounts. Contact information HERE) | |||||||||||||
|---|---|---|---|---|---|---|---|---|---|---|---|---|---|
| Year | Market Value | Taxable Mkt Value | Gross Assessed | Exemption | Net Assessed | Millage | Est. Tax | Tax Savings | |||||
|
2026 |
84,500 |
57,617 |
6,337 |
0 |
6,337 |
122.90 |
$779 |
$363 |
|||||
|
2025 |
81,000 |
54,874 |
6,035 |
0 |
6,035 |
122.90 |
$742 |
$353 |
|||||
|
2024 |
77,500 |
52,261 |
5,748 |
0 |
5,748 |
123.89 |
$712 |
$344 |
|||||
|
2023 |
74,500 |
49,773 |
5,474 |
0 |
5,474 |
122.82 |
$672 |
$334 |
|||||
|
2022 |
57,000 |
47,403 |
5,213 |
0 |
5,213 |
117.63 |
$613 |
$124 |
|||||
| Property Account Status/Adjustments/Exemptions | ||
|---|---|---|
| Account # | Exemption Description | Amount |
|
R130642000 |
5% Capped Account |
0 |
| Property Deed Transaction History (Recorded in the County Clerk's Office) | |||||||
|---|---|---|---|---|---|---|---|
| Date | Type | Book | Page | Price | Grantor | Grantee | |
|
3/5/2012 |
|
Deeds |
$13,000 |
STEPHENS CHERI A |
CRUZ SARAH |
||
|
2/15/2012 |
|
Deeds |
$0 |
POWELL JOHN LEE & ROZELLA A |
STEPHENS CHERI A |
||
|
2/14/1991 |
|
Historical |
$0 |
POWELL JOHN LEE & R A |
STEPHENS DALE R & CHERI A |
||
|
11/11/1911 |
|
Historical |
$0 |
|
POWELL JOHN LEE & R A |
||
| Last Mailed Notice of Value (N.O.V.) Information/History | ||||||||
|---|---|---|---|---|---|---|---|---|
| Year | Date | Market Value | Taxable Market Value | Gross Assessed | Exemption | Net Assessed | ||
|
2026 |
02/23/2026 |
84,500 |
57,617 |
6,337 |
0 |
6,337 |
||
|
2025 |
02/14/2025 |
81,000 |
54,874 |
6,035 |
0 |
6,035 |
||
|
2024 |
02/13/2024 |
77,500 |
52,261 |
5,748 |
0 |
5,748 |
||
|
2023 |
02/14/2023 |
74,500 |
49,773 |
5,474 |
0 |
5,474 |
||
|
2022 |
03/15/2022 |
57,000 |
47,403 |
5,213 |
0 |
5,213 |
||
| Property Building Permit History | |||||||||||
|---|---|---|---|---|---|---|---|---|---|---|---|
| Issued | Permit # | Provided by | Bldg # | Description | Est Construction Cost | Status | |||||
| No Building Permit records returned. | |||||||||||
| Click button on building number to access detailed information: | ||||||
|---|---|---|---|---|---|---|
| Bldg # | Vacant/Improved Land | Bldg Description | Year Built | SqFt | # Stories | |
|
1 |
Improved |
Ranch 1 Story |
1932 |
864 |
1 Stories |
|