|
|
|
| Larry Stein Oklahoma County Assessor (405) 713-1200 - Public Access System |
|
|
|
|
|
|
| Real Property Display - Screen Produced 4/4/2026 11:22:54 AM | ||||
|---|---|---|---|---|
| Account: R130646740 | Type: Residential | Location: |
1328 NW 99TH ST |
|
| Building Name/Occupant: |
|
OKLAHOMA CITY |
||
| Owner Name 1: | HUNTLEIGH CO HOLDINGS LLC |
Parcel PIN#: |
3714-13-064-6740 |
|
| Owner Name 2: | 1/4 section #: |
3714 |
||
| Owner Name 3: | Parent Acct: |
|
||
| Billing Address: | PO BOX 21444 | Tax District: |
|
|
| City, State, Zip | OKLAHOMA CITY, OK 73156 | School System: |
Oklahoma City #89 |
|
|
Country: (If noted) |
Land Size: |
0.1607 Acres |
||
|
Land Value: 18,200 |
|
|||
|
Sect 29-T13N-R3W Qtr SE |
ALTAVUE ADDITION
Block
019
Lot
000
|
|||
| Full Legal Description: ALTAVUE ADDITION 019 000 LOTS 15 & 16 |
| Photo & Sketch (if available) | Comp Sales (ordered by relevancy) |
|
||||||||||||||||||
|
||||||||||||||||||||
| Value History (*The County Treasurer 405-713-1300 posts & collects actual tax amounts. Contact information HERE) | |||||||||||||
|---|---|---|---|---|---|---|---|---|---|---|---|---|---|
| Year | Market Value | Taxable Mkt Value | Gross Assessed | Exemption | Net Assessed | Millage | Est. Tax | Tax Savings | |||||
|
2026 |
83,000 |
83,000 |
9,130 |
0 |
9,130 |
122.90 |
$1,122 |
$0 |
|||||
|
2025 |
83,500 |
83,475 |
9,182 |
0 |
9,182 |
122.90 |
$1,128 |
$0 |
|||||
|
2024 |
79,500 |
79,500 |
8,745 |
0 |
8,745 |
123.89 |
$1,083 |
$0 |
|||||
|
2023 |
81,000 |
81,000 |
8,910 |
0 |
8,910 |
122.82 |
$1,094 |
$0 |
|||||
|
2022 |
50,500 |
35,734 |
3,930 |
0 |
3,930 |
117.63 |
$462 |
$191 |
|||||
| Property Account Status/Adjustments/Exemptions | ||
|---|---|---|
| Account # | Exemption Description | Amount |
|
R130646740 |
5% Capped Account |
0 |
| Property Deed Transaction History (Recorded in the County Clerk's Office) | ||||||||||
|---|---|---|---|---|---|---|---|---|---|---|
| Date | Type | Book | Page | Price | Grantor | Grantee | ||||
|
1/10/2022 |
|
Deeds |
$80,000 |
ALFRED DARRELL & LINDA H REV TRUST |
HUNTLEIGH CO HOLDINGS LLC |
|||||
|
6/10/2016 |
|
Deeds |
$0 |
ALFRED LINDA H & DARRELL E |
ALFRED DARRELL & LINDA H REV TRUST |
|||||
|
6/28/2008 |
|
Deeds |
$29,500 |
PETTISE FAMILY TRUST |
ALFRED LINDA H & DARRELL E |
|||||
|
5/12/2005 |
|
Deeds |
$54,000 |
RAK PROPERTIES INC |
PETTISE FAMILY TRUST |
|||||
|
5/11/2005 |
|
Other |
$0 |
SALA PROPERTIES LLC |
GIEGER SHAWN ALLARD & DAKONDA ASHLEA |
|||||
| Last Mailed Notice of Value (N.O.V.) Information/History | ||||||||
|---|---|---|---|---|---|---|---|---|
| Year | Date | Market Value | Taxable Market Value | Gross Assessed | Exemption | Net Assessed | ||
|
2025 |
02/14/2025 |
83,500 |
83,475 |
9,182 |
0 |
9,182 |
||
|
2023 |
02/14/2023 |
81,000 |
81,000 |
8,910 |
0 |
8,910 |
||
|
2022 |
03/15/2022 |
50,500 |
35,734 |
3,930 |
0 |
3,930 |
||
|
2021 |
03/19/2021 |
47,500 |
34,033 |
3,743 |
0 |
3,743 |
||
|
2020 |
03/10/2020 |
36,500 |
32,413 |
3,565 |
0 |
3,565 |
||
| Property Building Permit History | |||||||||||
|---|---|---|---|---|---|---|---|---|---|---|---|
| Issued | Permit # | Provided by | Bldg # | Description | Est Construction Cost | Status | |||||
| No Building Permit records returned. | |||||||||||
| Click button on building number to access detailed information: | ||||||
|---|---|---|---|---|---|---|
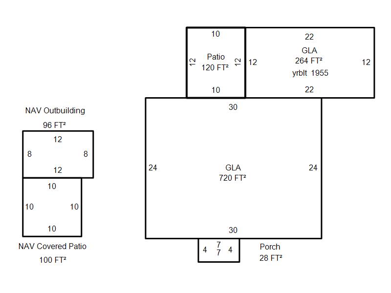
| Bldg # | Vacant/Improved Land | Bldg Description | Year Built | SqFt | # Stories | |
|
1 |
Improved |
Ranch 1 Story |
1949 |
984 |
1 Stories |
|