|
|
|
| Larry Stein Oklahoma County Assessor (405) 713-1200 - Public Access System |
|
|
|
|
|
|
| Real Property Display - Screen Produced 4/4/2026 11:21:51 AM | ||||
|---|---|---|---|---|
| Account: R130646875 | Type: Residential | Location: |
1317 NW 98TH ST |
|
| Building Name/Occupant: |
|
OKLAHOMA CITY |
||
| Owner Name 1: | LUNA ALICIA MARIE LEONIDES |
Parcel PIN#: |
3714-13-064-6875 |
|
| Owner Name 2: | 1/4 section #: |
3714 |
||
| Owner Name 3: | Parent Acct: |
|
||
| Billing Address: | 1317 NW 98TH ST | Tax District: |
|
|
| City, State, Zip | OKLAHOMA CITY, OK 73114 | School System: |
Oklahoma City #89 |
|
|
Country: (If noted) |
Land Size: |
0.1607 Acres |
||
|
Land Value: 18,200 |
|
|||
|
Sect 29-T13N-R3W Qtr SE |
ALTAVUE ADDITION
Block
019
Lot
000
|
|||
| Full Legal Description: ALTAVUE ADDITION 019 000 LOTS 39 & 40 |
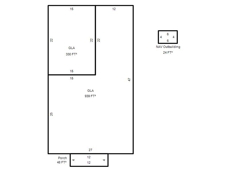
| Photo & Sketch (if available) | Comp Sales (ordered by relevancy) |
|
||||||||||||||||||
|
||||||||||||||||||||
| Value History (*The County Treasurer 405-713-1300 posts & collects actual tax amounts. Contact information HERE) | |||||||||||||
|---|---|---|---|---|---|---|---|---|---|---|---|---|---|
| Year | Market Value | Taxable Mkt Value | Gross Assessed | Exemption | Net Assessed | Millage | Est. Tax | Tax Savings | |||||
|
2026 |
96,000 |
91,242 |
10,036 |
1,000 |
9,036 |
122.90 |
$1,111 |
$187 |
|||||
|
2025 |
96,500 |
88,585 |
9,743 |
1,000 |
8,743 |
122.90 |
$1,075 |
$230 |
|||||
|
2024 |
91,500 |
86,005 |
9,460 |
1,000 |
8,460 |
123.89 |
$1,048 |
$199 |
|||||
|
2023 |
83,500 |
83,500 |
9,185 |
1,000 |
8,185 |
122.82 |
$1,005 |
$123 |
|||||
|
2022 |
53,000 |
37,010 |
4,069 |
0 |
4,069 |
117.63 |
$479 |
$207 |
|||||
| Property Account Status/Adjustments/Exemptions | ||
|---|---|---|
| Account # | Exemption Description | Amount |
|
R130646875 |
3% Cap Homestead |
0 |
|
R130646875 |
Homestead |
1,000 |
| Property Deed Transaction History (Recorded in the County Clerk's Office) | |||||||
|---|---|---|---|---|---|---|---|
| Date | Type | Book | Page | Price | Grantor | Grantee | |
|
8/31/2022 |
|
Deeds |
$31,500 |
E & M PROPERTIES INC |
LUNA ALICIA MARIE LEONIDES |
||
|
12/30/2014 |
|
Hmstd Off & |
$0 |
MOUNTAIN HIGH HOLDINGS LLC |
E & M PROPERTIES INC |
||
|
7/17/2012 |
|
Deeds |
$30,000 |
MCCORMACK JACK J |
MOUNTAIN HIGH HOLDINGS LLC |
||
|
6/29/2012 |
|
Deeds |
$0 |
MCCORMACK JACK J & P M |
MCCORMACK JACK J |
||
|
11/11/1911 |
|
Historical |
$0 |
|
MCCORMACK JACK J & P M |
||
| Last Mailed Notice of Value (N.O.V.) Information/History | ||||||||
|---|---|---|---|---|---|---|---|---|
| Year | Date | Market Value | Taxable Market Value | Gross Assessed | Exemption | Net Assessed | ||
|
2026 |
02/23/2026 |
96,000 |
91,242 |
10,036 |
1,000 |
9,036 |
||
|
2025 |
02/14/2025 |
96,500 |
88,585 |
9,743 |
1,000 |
8,743 |
||
|
2024 |
02/13/2024 |
91,500 |
86,005 |
9,460 |
1,000 |
8,460 |
||
|
2023 |
02/14/2023 |
83,500 |
83,500 |
9,185 |
1,000 |
8,185 |
||
|
2022 |
03/15/2022 |
53,000 |
37,010 |
4,069 |
0 |
4,069 |
||
| Property Building Permit History | |||||||||||
|---|---|---|---|---|---|---|---|---|---|---|---|
| Issued | Permit # | Provided by | Bldg # | Description | Est Construction Cost | Status | |||||
| No Building Permit records returned. | |||||||||||
| Click button on building number to access detailed information: | ||||||
|---|---|---|---|---|---|---|
| Bldg # | Vacant/Improved Land | Bldg Description | Year Built | SqFt | # Stories | |
|
1 |
Improved |
Ranch 1 Story |
1948 |
1,269 |
1 Stories |
|