|
|
|
| Larry Stein Oklahoma County Assessor (405) 713-1200 - Public Access System |
|
|
|
|
|
|
| Real Property Display - Screen Produced 4/4/2026 11:20:03 AM | ||||
|---|---|---|---|---|
| Account: R130647325 | Type: Residential | Location: |
1425 NW 100TH ST |
|
| Building Name/Occupant: |
|
OKLAHOMA CITY |
||
| Owner Name 1: | MILLER CANDICE |
Parcel PIN#: |
3714-13-064-7325 |
|
| Owner Name 2: | 1/4 section #: |
3714 |
||
| Owner Name 3: | Parent Acct: |
|
||
| Billing Address: | 1425 NW 100TH ST | Tax District: |
|
|
| City, State, Zip | OKLAHOMA CITY, OK 73114 | School System: |
Oklahoma City #89 |
|
|
Country: (If noted) |
Land Size: |
0.1848 Acres |
||
|
Land Value: 20,930 |
|
|||
|
Sect 29-T13N-R3W Qtr SE |
ALTAVUE ADDITION
Block
022
Lot
000
|
|||
| Full Legal Description: ALTAVUE ADDITION 022 000 LOTS 13 & 14 |
| Photo & Sketch (if available) | Comp Sales (ordered by relevancy) |
|
||||||||||||||||||
|
||||||||||||||||||||
| Value History (*The County Treasurer 405-713-1300 posts & collects actual tax amounts. Contact information HERE) | |||||||||||||
|---|---|---|---|---|---|---|---|---|---|---|---|---|---|
| Year | Market Value | Taxable Mkt Value | Gross Assessed | Exemption | Net Assessed | Millage | Est. Tax | Tax Savings | |||||
|
2026 |
181,500 |
181,500 |
19,965 |
1,000 |
18,965 |
122.90 |
$2,331 |
$123 |
|||||
|
2025 |
184,500 |
180,353 |
19,838 |
1,000 |
18,838 |
122.90 |
$2,315 |
$179 |
|||||
|
2024 |
179,500 |
175,100 |
19,261 |
1,000 |
18,261 |
123.89 |
$2,262 |
$184 |
|||||
|
2023 |
170,000 |
170,000 |
18,700 |
0 |
18,700 |
122.82 |
$2,297 |
$0 |
|||||
|
2022 |
134,000 |
116,079 |
12,768 |
0 |
12,768 |
117.63 |
$1,502 |
$232 |
|||||
| Property Account Status/Adjustments/Exemptions | ||
|---|---|---|
| Account # | Exemption Description | Amount |
|
R130647325 |
3% Cap Homestead |
0 |
|
R130647325 |
Homestead |
1,000 |
| Property Deed Transaction History (Recorded in the County Clerk's Office) | ||||||||||
|---|---|---|---|---|---|---|---|---|---|---|
| Date | Type | Book | Page | Price | Grantor | Grantee | ||||
|
6/16/2022 |
|
Deeds |
$120,000 |
GREEN RONNIE |
MILLER CANDICE |
|||||
|
3/24/2011 |
|
Deeds |
$89,000 |
DEES JEFFREY JOHN |
GREEN RONNIE |
|||||
|
11/30/2004 |
|
Deeds |
$85,000 |
THOMAS GEORGE G SCHENDT REBECCA A |
DEES JEFFREY JOHN |
|||||
|
12/20/2002 |
|
Deeds |
$81,000 |
SHARPE CHRISTOPHER A & LEAH L |
THOMAS GEORGE G SCHENDT REBECCA A |
|||||
|
3/12/1999 |
|
Historical |
$61,000 |
SHARPE BRUCE REED |
SHARPE CHRISTOPHER A & LEAH L |
|||||
| Last Mailed Notice of Value (N.O.V.) Information/History | ||||||||
|---|---|---|---|---|---|---|---|---|
| Year | Date | Market Value | Taxable Market Value | Gross Assessed | Exemption | Net Assessed | ||
|
2026 |
02/23/2026 |
181,500 |
181,500 |
19,965 |
1,000 |
18,965 |
||
|
2025 |
02/14/2025 |
184,500 |
180,353 |
19,838 |
1,000 |
18,838 |
||
|
2024 |
02/13/2024 |
179,500 |
178,500 |
19,635 |
0 |
19,635 |
||
|
2023 |
02/14/2023 |
170,000 |
170,000 |
18,700 |
0 |
18,700 |
||
|
2022 |
03/15/2022 |
134,000 |
116,079 |
12,768 |
0 |
12,768 |
||
| Property Building Permit History | |||||||||||
|---|---|---|---|---|---|---|---|---|---|---|---|
| Issued | Permit # | Provided by | Bldg # | Description | Est Construction Cost | Status | |||||
| No Building Permit records returned. | |||||||||||
| Click button on building number to access detailed information: | ||||||
|---|---|---|---|---|---|---|
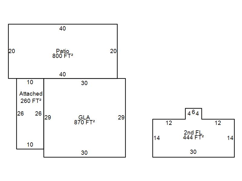
| Bldg # | Vacant/Improved Land | Bldg Description | Year Built | SqFt | # Stories | |
|
1 |
Improved |
1½ Story Fin |
1966 |
1,314 |
1.5 Stories |
|