|
|
|
| Larry Stein Oklahoma County Assessor (405) 713-1200 - Public Access System |
|
|
|
|
|
|
| Real Property Display - Screen Produced 4/4/2026 11:16:46 AM | ||||
|---|---|---|---|---|
| Account: R130647407 | Type: Residential | Location: |
9909 N MCKINLEY AVE |
|
| Building Name/Occupant: |
|
OKLAHOMA CITY |
||
| Owner Name 1: | LEONARD DELANA GABRIELLA |
Parcel PIN#: |
3714-13-064-7407 |
|
| Owner Name 2: | 1/4 section #: |
3714 |
||
| Owner Name 3: | Parent Acct: |
|
||
| Billing Address: | 9909 N MCKINLEY AVE | Tax District: |
|
|
| City, State, Zip | OKLAHOMA CITY, OK 73114-4818 | School System: |
Oklahoma City #89 |
|
|
Country: (If noted) |
Land Size: |
0.1607 Acres |
||
|
Land Value: 18,200 |
|
|||
|
Sect 29-T13N-R3W Qtr SE |
ALTAVUE ADDITION
Block
024
Lot
000
|
|||
| Full Legal Description: ALTAVUE ADDITION 024 000 LOTS 7 & 8 |
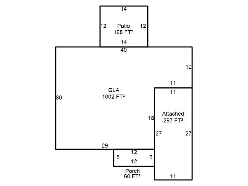
| Photo & Sketch (if available) | Comp Sales (ordered by relevancy) |
|
||||||||||||||||||
|
||||||||||||||||||||
| Value History (*The County Treasurer 405-713-1300 posts & collects actual tax amounts. Contact information HERE) | |||||||||||||
|---|---|---|---|---|---|---|---|---|---|---|---|---|---|
| Year | Market Value | Taxable Mkt Value | Gross Assessed | Exemption | Net Assessed | Millage | Est. Tax | Tax Savings | |||||
|
2026 |
113,000 |
84,950 |
9,343 |
0 |
9,343 |
122.90 |
$1,148 |
$379 |
|||||
|
2025 |
112,500 |
80,905 |
8,898 |
0 |
8,898 |
122.90 |
$1,094 |
$427 |
|||||
|
2024 |
110,000 |
77,053 |
8,475 |
0 |
8,475 |
123.89 |
$1,050 |
$449 |
|||||
|
2023 |
104,000 |
73,384 |
8,071 |
0 |
8,071 |
122.82 |
$991 |
$414 |
|||||
|
2022 |
80,000 |
69,890 |
7,687 |
0 |
7,687 |
117.63 |
$904 |
$131 |
|||||
| Property Account Status/Adjustments/Exemptions | ||
|---|---|---|
| Account # | Exemption Description | Amount |
|
R130647407 |
5% Capped Account |
0 |
| Property Deed Transaction History (Recorded in the County Clerk's Office) | |||||||
|---|---|---|---|---|---|---|---|
| Date | Type | Book | Page | Price | Grantor | Grantee | |
|
3/9/2026 |
|
Deeds |
$127,000 |
BOYD JOHN E |
LEONARD DELANA GABRIELLA |
||
|
11/8/2005 |
|
Deeds |
$59,000 |
PARDUE FRANKLIN M & ANDREA L |
BOYD JOHN E |
||
|
8/31/1999 |
|
Deeds |
$42,500 |
GOETZ PAUL J |
PARDUE FRANKLIN M & ANDREA L |
||
|
6/1/1986 |
|
Historical |
$0 |
|
GOETZ PAUL J |
||
| Last Mailed Notice of Value (N.O.V.) Information/History | ||||||||
|---|---|---|---|---|---|---|---|---|
| Year | Date | Market Value | Taxable Market Value | Gross Assessed | Exemption | Net Assessed | ||
|
2026 |
02/23/2026 |
113,000 |
84,950 |
9,343 |
0 |
9,343 |
||
|
2026 |
03/30/2026 |
113,000 |
84,950 |
9,343 |
0 |
9,343 |
||
|
2025 |
02/14/2025 |
112,500 |
80,905 |
8,898 |
0 |
8,898 |
||
|
2024 |
02/13/2024 |
110,000 |
77,053 |
8,475 |
0 |
8,475 |
||
|
2023 |
02/14/2023 |
104,000 |
73,384 |
8,071 |
0 |
8,071 |
||
| Property Building Permit History | |||||||||||
|---|---|---|---|---|---|---|---|---|---|---|---|
| Issued | Permit # | Provided by | Bldg # | Description | Est Construction Cost | Status | |||||
| No Building Permit records returned. | |||||||||||
| Click button on building number to access detailed information: | ||||||
|---|---|---|---|---|---|---|
| Bldg # | Vacant/Improved Land | Bldg Description | Year Built | SqFt | # Stories | |
|
1 |
Improved |
Ranch 1 Story |
1960 |
1,002 |
1 Stories |
|