|
|
|
| Larry Stein Oklahoma County Assessor (405) 713-1200 - Public Access System |
|
|
|
|
|
|
| Real Property Display - Screen Produced 4/4/2026 1:52:35 PM | ||||
|---|---|---|---|---|
| Account: R130682600 | Type: Residential | Location: |
1229 W BRITTON RD |
|
| Building Name/Occupant: |
|
OKLAHOMA CITY |
||
| Owner Name 1: | BANTA SHARON LEE |
Parcel PIN#: |
3714-13-068-2600 |
|
| Owner Name 2: | 1/4 section #: |
3714 |
||
| Owner Name 3: | Parent Acct: |
|
||
| Billing Address: | 9800 S ROCKWELL AVE | Tax District: |
|
|
| City, State, Zip | OKLAHOMA CITY , OK 73169 | School System: |
Oklahoma City #89 |
|
|
Country: (If noted) |
Land Size: |
0.1993 Acres |
||
|
Land Value: 22,568 |
|
|||
|
Sect 29-T13N-R3W Qtr SE |
ALTAVUE SECOND ADD
Block
001
Lot
000
|
|||
| Full Legal Description: ALTAVUE SECOND ADD 001 000 E 1/2 LOT 32 ALL LOTS 33 & 34 |
| Photo & Sketch (if available) | Comp Sales (ordered by relevancy) |
|
||||||||||||||||||
|
||||||||||||||||||||
| Value History (*The County Treasurer 405-713-1300 posts & collects actual tax amounts. Contact information HERE) | |||||||||||||
|---|---|---|---|---|---|---|---|---|---|---|---|---|---|
| Year | Market Value | Taxable Mkt Value | Gross Assessed | Exemption | Net Assessed | Millage | Est. Tax | Tax Savings | |||||
|
2026 |
144,500 |
72,362 |
7,959 |
0 |
7,959 |
122.90 |
$978 |
$975 |
|||||
|
2025 |
82,000 |
68,917 |
7,579 |
0 |
7,579 |
122.90 |
$932 |
$177 |
|||||
|
2024 |
96,000 |
65,636 |
7,219 |
0 |
7,219 |
123.89 |
$894 |
$414 |
|||||
|
2023 |
96,000 |
62,511 |
6,875 |
0 |
6,875 |
122.82 |
$845 |
$452 |
|||||
|
2022 |
69,500 |
59,535 |
6,548 |
0 |
6,548 |
117.63 |
$770 |
$129 |
|||||
| Property Account Status/Adjustments/Exemptions | ||
|---|---|---|
| Account # | Exemption Description | Amount |
|
R130682600 |
5% Capped Account |
0 |
| Property Deed Transaction History (Recorded in the County Clerk's Office) | |||||||
|---|---|---|---|---|---|---|---|
| Date | Type | Book | Page | Price | Grantor | Grantee | |
|
8/28/2019 |
|
Deeds |
$65,000 |
EVANS SHERYL E |
BANTA SHARON LEE |
||
|
6/3/2011 |
|
Deeds |
$50,000 |
HOOPER MARIE L & RANDALL W |
EVANS SHERYL E |
||
|
8/13/1999 |
|
Deeds |
$30,000 |
SELF THOMAS E & ELIZABETH |
HOOPER MARIE L & RANDALL W |
||
|
11/11/1911 |
|
Historical |
$0 |
|
SELF THOMAS E & ELIZABETH |
||
| Last Mailed Notice of Value (N.O.V.) Information/History | ||||||||
|---|---|---|---|---|---|---|---|---|
| Year | Date | Market Value | Taxable Market Value | Gross Assessed | Exemption | Net Assessed | ||
|
2026 |
03/30/2026 |
144,500 |
72,362 |
7,959 |
0 |
7,959 |
||
|
2025 |
02/14/2025 |
101,000 |
68,917 |
7,579 |
0 |
7,579 |
||
|
2024 |
02/13/2024 |
96,000 |
65,636 |
7,219 |
0 |
7,219 |
||
|
2023 |
02/14/2023 |
96,000 |
62,511 |
6,875 |
0 |
6,875 |
||
|
2022 |
03/15/2022 |
69,500 |
59,535 |
6,548 |
0 |
6,548 |
||
| Property Building Permit History | ||||||
|---|---|---|---|---|---|---|
| Issued | Permit # | Provided by | Bldg # | Description | Est Construction Cost | Status |
|
5/20/2025 |
|
|
1 |
Fire Remodel |
|
Inactive |
|
1/31/2025 |
25008322 |
|
1 |
Burn - Trip |
3,000 |
Inactive |
| Click button on building number to access detailed information: | ||||||
|---|---|---|---|---|---|---|
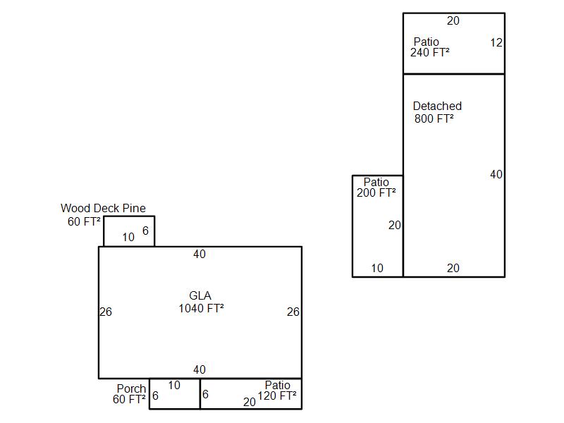
| Bldg # | Vacant/Improved Land | Bldg Description | Year Built | SqFt | # Stories | |
|
1 |
Improved |
Ranch 1 Story |
1946 |
1,040 |
1 Stories |
|