|
|
|
| Larry Stein Oklahoma County Assessor (405) 713-1200 - Public Access System |
|
|
|
|
|
|
| Real Property Display - Screen Produced 4/2/2026 12:01:13 AM | ||||
|---|---|---|---|---|
| Account: R126210490 | Type: Residential | Location: |
8670 N MAY AVE, Unit 49D |
|
| Building Name/Occupant: |
|
OKLAHOMA CITY |
||
| Owner Name 1: | FURSETH SHERRY TRS |
Parcel PIN#: |
3724-12-621-0490 |
|
| Owner Name 2: | FURSETH SHERRY LIV TRUST | 1/4 section #: |
3724 |
|
| Owner Name 3: | Parent Acct: |
|
||
| Billing Address: | 901 NW 63RD ST, Unit 201 | Tax District: |
|
|
| City, State, Zip | OKLAHOMA CITY, OK 73116-7627 | School System: |
Oklahoma City #89 |
|
|
Country: (If noted) |
Land Size: |
1.0000 Acres |
||
|
Land Value: 57,200 |
|
|||
|
Sect 31-T13N-R3W Qtr NW |
SAINT MARTINS CONDOS
Block
000
Lot
000
|
|||
| Full Legal Description: SAINT MARTINS CONDOS 000 000 UNIT 49D |
| Photo & Sketch (if available) | Comp Sales (ordered by relevancy) |
|
||||||||||||||||||
|
||||||||||||||||||||
| Value History (*The County Treasurer 405-713-1300 posts & collects actual tax amounts. Contact information HERE) | |||||||||||||
|---|---|---|---|---|---|---|---|---|---|---|---|---|---|
| Year | Market Value | Taxable Mkt Value | Gross Assessed | Exemption | Net Assessed | Millage | Est. Tax | Tax Savings | |||||
|
2026 |
415,500 |
415,500 |
45,705 |
0 |
45,705 |
122.90 |
$5,617 |
$0 |
|||||
|
2025 |
418,500 |
418,500 |
46,035 |
0 |
46,035 |
122.90 |
$5,658 |
$0 |
|||||
|
2024 |
422,500 |
422,500 |
46,475 |
0 |
46,475 |
123.89 |
$5,758 |
$0 |
|||||
|
2023 |
406,500 |
312,384 |
34,361 |
0 |
34,361 |
122.82 |
$4,220 |
$1,272 |
|||||
|
2022 |
308,000 |
297,509 |
32,725 |
0 |
32,725 |
117.63 |
$3,850 |
$136 |
|||||
| Property Account Status/Adjustments/Exemptions | ||
|---|---|---|
| Account # | Exemption Description | Amount |
|
R126210490 |
5% Capped Account |
0 |
| Property Deed Transaction History (Recorded in the County Clerk's Office) | ||||||||||
|---|---|---|---|---|---|---|---|---|---|---|
| Date | Type | Book | Page | Price | Grantor | Grantee | ||||
|
3/9/2023 |
|
Deeds |
$410,000 |
CKM OKC PROPERTIES LLC |
FURSETH SHERRY TRS |
|||||
|
6/29/2018 |
|
Deeds |
$276,000 |
DRISKILL CATHERINE CLOTE |
CKM OKC PROPERTIES LLC |
|||||
|
12/8/2017 |
|
Deeds |
$275,000 |
GIVENS ANNABEL TRS |
DRISKILL CATHERINE CLOTE |
|||||
|
6/24/2016 |
|
Deeds |
$180,000 |
BRAWNER TERESA B |
GIVENS ANNABEL TRS |
|||||
|
4/19/2016 |
|
Deeds |
$0 |
BRAWNER LARRY C TRS BRAWNER LARRY C REV TRUST |
BRAWNER TERESA B |
|||||
| Last Mailed Notice of Value (N.O.V.) Information/History | ||||||||
|---|---|---|---|---|---|---|---|---|
| Year | Date | Market Value | Taxable Market Value | Gross Assessed | Exemption | Net Assessed | ||
|
2024 |
02/13/2024 |
422,500 |
422,500 |
46,475 |
0 |
46,475 |
||
|
2023 |
02/14/2023 |
406,500 |
312,384 |
34,361 |
0 |
34,361 |
||
|
2022 |
03/15/2022 |
308,000 |
297,509 |
32,725 |
0 |
32,725 |
||
|
2021 |
03/19/2021 |
297,000 |
283,342 |
31,167 |
0 |
31,167 |
||
|
2020 |
03/10/2020 |
280,500 |
269,850 |
29,683 |
0 |
29,683 |
||
| Property Building Permit History | ||||||
|---|---|---|---|---|---|---|
| Issued | Permit # | Provided by | Bldg # | Description | Est Construction Cost | Status |
|
10/2/1992 |
10214873 |
OKLAHOMA CITY |
1 |
Add On |
4,000 |
Inactive |
| Click button on building number to access detailed information: | ||||||
|---|---|---|---|---|---|---|
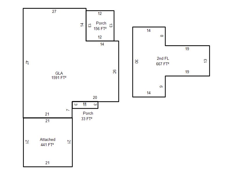
| Bldg # | Vacant/Improved Land | Bldg Description | Year Built | SqFt | # Stories | |
|
1 |
Improved |
Condo <= 3 Stories |
1985 |
2,258 |
1.5 Stories |
|