|
|
|
| Larry Stein Oklahoma County Assessor (405) 713-1200 - Public Access System |
|
|
|
|
|
|
| Real Property Display - Screen Produced 4/2/2026 12:01:13 AM | ||||
|---|---|---|---|---|
| Account: R126210740 | Type: Residential | Location: |
8846 N MAY AVE, Unit 74D |
|
| Building Name/Occupant: |
|
OKLAHOMA CITY |
||
| Owner Name 1: | CLARK LELAND D & JACQUELYN A CO TRS |
Parcel PIN#: |
3724-12-621-0740 |
|
| Owner Name 2: | CLARK REV TRUST | 1/4 section #: |
3724 |
|
| Owner Name 3: | Parent Acct: |
|
||
| Billing Address: | 8846 N MAY AVE, Unit 74D | Tax District: |
|
|
| City, State, Zip | OKLAHOMA CITY, OK 73120-4472 | School System: |
Oklahoma City #89 |
|
|
Country: (If noted) |
Land Size: |
1.0000 Acres |
||
|
Land Value: 57,200 |
|
|||
|
Sect 31-T13N-R3W Qtr NW |
SAINT MARTINS CONDOS
Block
000
Lot
000
|
|||
| Full Legal Description: SAINT MARTINS CONDOS 000 000 UNIT 74D |
| Photo & Sketch (if available) | Comp Sales (ordered by relevancy) |
|
||||||||||||||||||
|
||||||||||||||||||||
| Value History (*The County Treasurer 405-713-1300 posts & collects actual tax amounts. Contact information HERE) | |||||||||||||
|---|---|---|---|---|---|---|---|---|---|---|---|---|---|
| Year | Market Value | Taxable Mkt Value | Gross Assessed | Exemption | Net Assessed | Millage | Est. Tax | Tax Savings | |||||
|
2026 |
359,000 |
269,817 |
29,679 |
1,000 |
28,679 |
122.90 |
$3,525 |
$1,329 |
|||||
|
2025 |
366,500 |
261,959 |
28,815 |
1,000 |
27,815 |
122.90 |
$3,419 |
$1,536 |
|||||
|
2024 |
371,000 |
254,330 |
27,975 |
1,000 |
26,975 |
123.89 |
$3,342 |
$1,714 |
|||||
|
2023 |
357,000 |
246,923 |
27,161 |
1,000 |
26,161 |
122.82 |
$3,213 |
$1,610 |
|||||
|
2022 |
261,500 |
239,732 |
26,369 |
1,000 |
25,369 |
117.63 |
$2,984 |
$399 |
|||||
| Property Account Status/Adjustments/Exemptions | ||
|---|---|---|
| Account # | Exemption Description | Amount |
|
R126210740 |
3% Cap Homestead |
0 |
|
R126210740 |
Homestead |
1,000 |
| Property Deed Transaction History (Recorded in the County Clerk's Office) | ||||||||||
|---|---|---|---|---|---|---|---|---|---|---|
| Date | Type | Book | Page | Price | Grantor | Grantee | ||||
|
2/25/2025 |
|
Deeds |
$0 |
CLARK LELAND D & JACQELYN A |
CLARK LELAND D & JACQUELYN A CO TRS |
|||||
|
7/29/2016 |
|
Deeds |
$210,000 |
MCADAMS SAMUEL IRREV TRUST FBO SAM D MCADAMS TRUST |
CLARK LELAND D & JACQELYN A |
|||||
|
1/30/2014 |
|
Hmstd Off & |
$0 |
DUDLEY NORMA NEVILLE TRS DUDLEY NORMA NEVILLE TRUST |
TOWERY LESLIE E CO TRS ETAL DUDLEY CHARLES N CO TRS |
|||||
|
1/30/2014 |
|
Deeds |
$202,500 |
TOWERY LESLIE E CO TRS ETAL DUDLEY CHARLES N CO TRS |
MCADAMS SAMUEL IRREV TRUST FBO SAM D MCADAMS TRUST |
|||||
|
4/14/1995 |
|
Historical |
$0 |
DUDLEY NORMA NEVILLE TRS |
DUDLEY NORMA NEVILLE TRS |
|||||
| Last Mailed Notice of Value (N.O.V.) Information/History | ||||||||
|---|---|---|---|---|---|---|---|---|
| Year | Date | Market Value | Taxable Market Value | Gross Assessed | Exemption | Net Assessed | ||
|
2026 |
02/23/2026 |
359,000 |
269,817 |
29,679 |
1,000 |
28,679 |
||
|
2025 |
02/14/2025 |
366,500 |
261,959 |
28,815 |
1,000 |
27,815 |
||
|
2025 |
03/28/2025 |
366,500 |
261,959 |
28,815 |
1,000 |
27,815 |
||
|
2024 |
02/13/2024 |
371,000 |
254,330 |
27,975 |
1,000 |
26,975 |
||
|
2023 |
02/14/2023 |
357,000 |
246,923 |
27,161 |
1,000 |
26,161 |
||
| Property Building Permit History | |||||||||||
|---|---|---|---|---|---|---|---|---|---|---|---|
| Issued | Permit # | Provided by | Bldg # | Description | Est Construction Cost | Status | |||||
| No Building Permit records returned. | |||||||||||
| Click button on building number to access detailed information: | ||||||
|---|---|---|---|---|---|---|
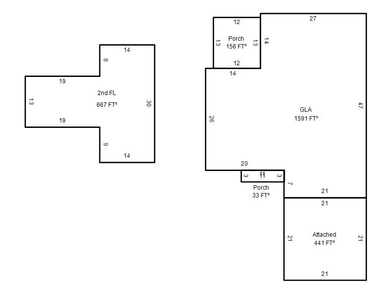
| Bldg # | Vacant/Improved Land | Bldg Description | Year Built | SqFt | # Stories | |
|
1 |
Improved |
Condo <= 3 Stories |
1985 |
2,258 |
1.5 Stories |
|