|
|
|
| Larry Stein Oklahoma County Assessor (405) 713-1200 - Public Access System |
|
|
|
|
|
|
| Real Property Display - Screen Produced 4/3/2026 4:04:59 AM | ||||
|---|---|---|---|---|
| Account: R130720780 | Type: Residential | Location: |
1421 NW 92ND ST |
|
| Building Name/Occupant: |
|
OKLAHOMA CITY |
||
| Owner Name 1: | GILLISPIE JOE L |
Parcel PIN#: |
3725-13-072-0780 |
|
| Owner Name 2: | 1/4 section #: |
3725 |
||
| Owner Name 3: | Parent Acct: |
|
||
| Billing Address: | 1421 NW 92ND ST | Tax District: |
|
|
| City, State, Zip | OKLAHOMA CITY, OK 73114-1312 | School System: |
Oklahoma City #89 |
|
|
Country: (If noted) |
Land Size: |
0.1607 Acres |
||
|
Land Value: 26,600 |
|
|||
|
Sect 32-T13N-R3W Qtr NE |
BRITTON HEIGHTS ADD
Block
005
Lot
000
|
|||
| Full Legal Description: BRITTON HEIGHTS ADD 005 000 LOTS 21 & 22 |
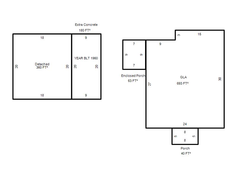
| Photo & Sketch (if available) | Comp Sales (ordered by relevancy) |
|
||||||||||||||||||
|
||||||||||||||||||||
| Value History (*The County Treasurer 405-713-1300 posts & collects actual tax amounts. Contact information HERE) | |||||||||||||
|---|---|---|---|---|---|---|---|---|---|---|---|---|---|
| Year | Market Value | Taxable Mkt Value | Gross Assessed | Exemption | Net Assessed | Millage | Est. Tax | Tax Savings | |||||
| No PropertyValuation records returned. | |||||||||||||
| Property Account Status/Adjustments/Exemptions | ||
|---|---|---|
| Account # | Exemption Description | Amount |
|
R130720780 |
Freeze Senior Valuation |
0 |
|
R130720780 |
Homestead |
1,000 |
|
R130720780 |
Senior Additional Homestead |
1,000 |
|
R130720780 |
3% Cap Homestead |
0 |
| Property Deed Transaction History (Recorded in the County Clerk's Office) | ||||||||||
|---|---|---|---|---|---|---|---|---|---|---|
| Date | Type | Book | Page | Price | Grantor | Grantee | ||||
|
7/15/2025 |
|
Hmstd Off & |
$0 |
GILLISPIE JOE L |
GILLISPIE JOE L |
|||||
|
6/2/2025 |
|
Hmstd Off & |
$0 |
ADDINGTON MIKE |
GILLISPIE JOE L |
|||||
|
7/29/1998 |
|
Historical |
$24,500 |
SUTTERFIELD CALVIN |
ADDINGTON MIKE |
|||||
|
9/15/1994 |
|
Historical |
$0 |
SECRETARY OF VETERANS AFFAIRS |
SUTTERFIELD CALVIN |
|||||
|
7/19/1994 |
|
Historical |
$0 |
CARTER WALTER |
SECRETARY OF VETERANS AFFAIRS |
|||||
| Last Mailed Notice of Value (N.O.V.) Information/History | ||||||||
|---|---|---|---|---|---|---|---|---|
| Year | Date | Market Value | Taxable Market Value | Gross Assessed | Exemption | Net Assessed | ||
| No Notice of Value N.O.V. records returned. | ||||||||
| Property Building Permit History | |||||||||||
|---|---|---|---|---|---|---|---|---|---|---|---|
| Issued | Permit # | Provided by | Bldg # | Description | Est Construction Cost | Status | |||||
| No Building Permit records returned. | |||||||||||
| Click button on building number to access detailed information: | ||||||
|---|---|---|---|---|---|---|
| Bldg # | Vacant/Improved Land | Bldg Description | Year Built | SqFt | # Stories | |
|
1 |
Improved |
Ranch 1 Story |
1925 |
693 |
1 Stories |
|