|
|
|
| Larry Stein Oklahoma County Assessor (405) 713-1200 - Public Access System |
|
|
|
|
|
|
| Real Property Display - Screen Produced 4/3/2026 5:51:21 AM | ||||
|---|---|---|---|---|
| Account: R130727545 | Type: Residential | Location: |
908 KENILWORTH RD |
|
| Building Name/Occupant: |
|
OKLAHOMA CITY |
||
| Owner Name 1: | TRUSTMARK GROUP SERIES LLC |
Parcel PIN#: |
3725-13-072-7545 |
|
| Owner Name 2: | 1/4 section #: |
3725 |
||
| Owner Name 3: | Parent Acct: |
|
||
| Billing Address: | 604 NW 160TH ST | Tax District: |
|
|
| City, State, Zip | EDMOND, OK 73013 | School System: |
Oklahoma City #89 |
|
|
Country: (If noted) |
Land Size: |
0.2238 Acres |
||
|
Land Value: 37,050 |
|
|||
|
Sect 32-T13N-R3W Qtr NE |
BRITTON HEIGHTS ADD
Block
047
Lot
000
|
|||
| Full Legal Description: BRITTON HEIGHTS ADD 047 000 W20FT LOT 4 & ALL LOT 5 PLUS A TR 10FT WIDE ADJ ON S & A TR 20FT WIDE ADJ ON W |
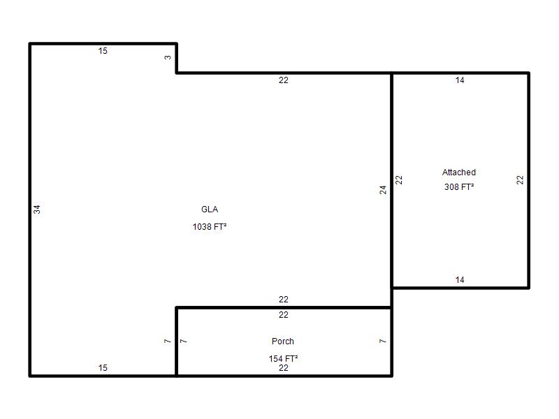
| Photo & Sketch (if available) | Comp Sales (ordered by relevancy) |
|
||||||||||||||||||
|
||||||||||||||||||||
| Value History (*The County Treasurer 405-713-1300 posts & collects actual tax amounts. Contact information HERE) | |||||||||||||
|---|---|---|---|---|---|---|---|---|---|---|---|---|---|
| Year | Market Value | Taxable Mkt Value | Gross Assessed | Exemption | Net Assessed | Millage | Est. Tax | Tax Savings | |||||
|
2026 |
127,500 |
105,195 |
11,571 |
0 |
11,571 |
122.90 |
$1,422 |
$302 |
|||||
|
2025 |
123,000 |
100,186 |
11,019 |
0 |
11,019 |
122.90 |
$1,354 |
$308 |
|||||
|
2024 |
120,000 |
95,416 |
10,495 |
0 |
10,495 |
123.89 |
$1,300 |
$335 |
|||||
|
2023 |
117,000 |
90,873 |
9,996 |
0 |
9,996 |
122.82 |
$1,228 |
$353 |
|||||
|
2022 |
89,500 |
86,546 |
9,519 |
0 |
9,519 |
117.63 |
$1,120 |
$38 |
|||||
| Property Account Status/Adjustments/Exemptions | ||
|---|---|---|
| Account # | Exemption Description | Amount |
|
R130727545 |
5% Capped Account |
0 |
| Property Deed Transaction History (Recorded in the County Clerk's Office) | ||||||||||
|---|---|---|---|---|---|---|---|---|---|---|
| Date | Type | Book | Page | Price | Grantor | Grantee | ||||
|
10/6/2021 |
|
Hmstd Off & |
$0 |
TRUSTMARK GROUP LLC |
TRUSTMARK GROUP SERIES LLC |
|||||
|
9/4/2015 |
|
Hmstd Off & |
$0 |
BREECHEN TIM L & DENNET R |
TRUSTMARK GROUP LLC |
|||||
|
11/20/2012 |
|
Deeds |
$50,000 |
RAK PROPERTIES INC |
BREECHEN TIM L & DENNET R |
|||||
|
8/6/2012 |
|
Deeds |
$42,000 |
BUCKLEY BECKY |
RAK PROPERTIES INC |
|||||
|
8/1/2012 |
|
Deeds |
$0 |
BUCKLEY WILLIAM CHARLES & BECKY |
BUCKLEY BECKY |
|||||
| Last Mailed Notice of Value (N.O.V.) Information/History | ||||||||
|---|---|---|---|---|---|---|---|---|
| Year | Date | Market Value | Taxable Market Value | Gross Assessed | Exemption | Net Assessed | ||
|
2026 |
02/23/2026 |
127,500 |
105,195 |
11,571 |
0 |
11,571 |
||
|
2025 |
02/14/2025 |
123,000 |
100,186 |
11,019 |
0 |
11,019 |
||
|
2024 |
02/13/2024 |
120,000 |
95,416 |
10,495 |
0 |
10,495 |
||
|
2023 |
02/14/2023 |
117,000 |
90,873 |
9,996 |
0 |
9,996 |
||
|
2022 |
03/15/2022 |
89,500 |
86,546 |
9,519 |
0 |
9,519 |
||
| Property Building Permit History | ||||||
|---|---|---|---|---|---|---|
| Issued | Permit # | Provided by | Bldg # | Description | Est Construction Cost | Status |
|
1/21/1993 |
10228682 |
OKLAHOMA CITY |
1 |
Fire Remodel |
12,000 |
Inactive |
|
1/4/1993 |
10228681 |
OKLAHOMA CITY |
1 |
Burn - Trip |
8,000 |
Inactive |
| Click button on building number to access detailed information: | ||||||
|---|---|---|---|---|---|---|
| Bldg # | Vacant/Improved Land | Bldg Description | Year Built | SqFt | # Stories | |
|
1 |
Improved |
Ranch 1 Story |
1959 |
1,038 |
1 Stories |
|