|
|
|
| Larry Stein Oklahoma County Assessor (405) 713-1200 - Public Access System |
|
|
|
|
|
|
| Real Property Display - Screen Produced 4/2/2026 4:10:20 PM | ||||
|---|---|---|---|---|
| Account: R130322250 | Type: Residential | Location: |
300 NW 92ND ST |
|
| Building Name/Occupant: |
|
OKLAHOMA CITY |
||
| Owner Name 1: | ELLIS ANNETTE |
Parcel PIN#: |
3729-13-032-2250 |
|
| Owner Name 2: | 1/4 section #: |
3729 |
||
| Owner Name 3: | Parent Acct: |
|
||
| Billing Address: | 512 NW 157TH ST | Tax District: |
|
|
| City, State, Zip | EDMOND , OK 73013 | School System: |
Oklahoma City #89 |
|
|
Country: (If noted) |
Land Size: |
0.1607 Acres |
||
|
Land Value: 17,150 |
|
|||
|
Sect 33-T13N-R3W Qtr NE |
ESTES PARK ADDITION
Block
004
Lot
000
|
|||
| Full Legal Description: ESTES PARK ADDITION 004 000 LOTS 1 & 2 |
| Photo & Sketch (if available) | Comp Sales (ordered by relevancy) |
|
||||||||||||||||||
|
||||||||||||||||||||
| Value History (*The County Treasurer 405-713-1300 posts & collects actual tax amounts. Contact information HERE) | |||||||||||||
|---|---|---|---|---|---|---|---|---|---|---|---|---|---|
| Year | Market Value | Taxable Mkt Value | Gross Assessed | Exemption | Net Assessed | Millage | Est. Tax | Tax Savings | |||||
|
2026 |
145,000 |
74,142 |
8,155 |
0 |
8,155 |
122.90 |
$1,002 |
$958 |
|||||
|
2025 |
138,000 |
70,612 |
7,766 |
0 |
7,766 |
122.90 |
$955 |
$911 |
|||||
|
2024 |
132,000 |
67,250 |
7,397 |
0 |
7,397 |
123.89 |
$916 |
$882 |
|||||
|
2023 |
123,000 |
64,048 |
7,044 |
0 |
7,044 |
122.82 |
$865 |
$796 |
|||||
|
2022 |
95,500 |
60,999 |
6,709 |
0 |
6,709 |
117.63 |
$789 |
$446 |
|||||
| Property Account Status/Adjustments/Exemptions | ||
|---|---|---|
| Account # | Exemption Description | Amount |
|
R130322250 |
5% Capped Account |
0 |
| Property Deed Transaction History (Recorded in the County Clerk's Office) | |||||||
|---|---|---|---|---|---|---|---|
| Date | Type | Book | Page | Price | Grantor | Grantee | |
|
7/18/2012 |
|
Deeds |
$0 |
ELLIS ANNETTE WILLIAMS PRECIOUS |
ELLIS ANNETTE |
||
|
10/8/2003 |
|
Deeds |
$0 |
WILLIAMS ANNETTE |
ELLIS ANNETTE WILLIAMS PRECIOUS |
||
|
5/5/1987 |
|
Historical |
$0 |
WILLIAMS ANNETTE |
WILLIAMS ANNETTE |
||
|
5/1/1986 |
|
Historical |
$39,500 |
|
WILLIAMS ANNETTE |
||
| Last Mailed Notice of Value (N.O.V.) Information/History | ||||||||
|---|---|---|---|---|---|---|---|---|
| Year | Date | Market Value | Taxable Market Value | Gross Assessed | Exemption | Net Assessed | ||
|
2026 |
02/23/2026 |
145,000 |
74,142 |
8,155 |
0 |
8,155 |
||
|
2025 |
02/14/2025 |
138,000 |
70,612 |
7,766 |
0 |
7,766 |
||
|
2024 |
02/13/2024 |
132,000 |
67,250 |
7,397 |
0 |
7,397 |
||
|
2023 |
02/14/2023 |
123,000 |
64,048 |
7,044 |
0 |
7,044 |
||
|
2022 |
03/15/2022 |
95,500 |
60,999 |
6,709 |
0 |
6,709 |
||
| Property Building Permit History | |||||||||||
|---|---|---|---|---|---|---|---|---|---|---|---|
| Issued | Permit # | Provided by | Bldg # | Description | Est Construction Cost | Status | |||||
| No Building Permit records returned. | |||||||||||
| Click button on building number to access detailed information: | ||||||
|---|---|---|---|---|---|---|
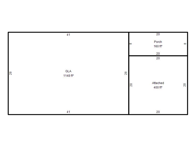
| Bldg # | Vacant/Improved Land | Bldg Description | Year Built | SqFt | # Stories | |
|
1 |
Improved |
Ranch 1 Story |
1983 |
1,148 |
1 Stories |
|