|
|
|
| Larry Stein Oklahoma County Assessor (405) 713-1200 - Public Access System |
|
|
|
|
|
|
| Real Property Display - Screen Produced 4/2/2026 7:50:09 AM | ||||
|---|---|---|---|---|
| Account: R130323775 | Type: Residential | Location: |
405 NW 92ND ST |
|
| Building Name/Occupant: |
|
OKLAHOMA CITY |
||
| Owner Name 1: | CLOSE PROPERTIES LLC |
Parcel PIN#: |
3729-13-032-3775 |
|
| Owner Name 2: | 1/4 section #: |
3729 |
||
| Owner Name 3: | Parent Acct: |
|
||
| Billing Address: | 2816 STAFFORD RD | Tax District: |
|
|
| City, State, Zip | EDMOND, OK 73012-3608 | School System: |
Oklahoma City #89 |
|
|
Country: (If noted) |
Land Size: |
0.1890 Acres |
||
|
Land Value: 20,168 |
|
|||
|
Sect 33-T13N-R3W Qtr NE |
ESTES PARK ADDITION
Block
005
Lot
000
|
|||
| Full Legal Description: ESTES PARK ADDITION 005 000 LOTS 45 & 46 PLUS S 1/2 VAC ALLEY ADJ ON N |
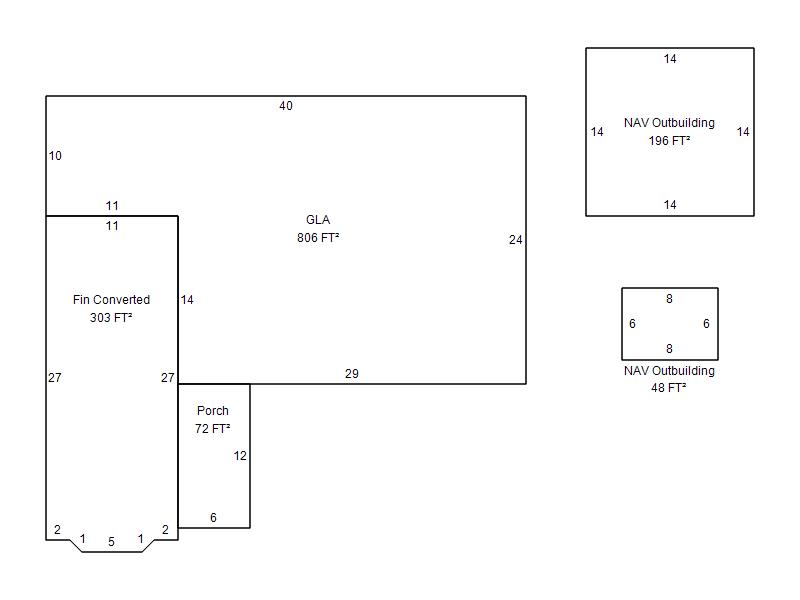
| Photo & Sketch (if available) | Comp Sales (ordered by relevancy) |
|
||||||||||||||||||
|
||||||||||||||||||||
| Value History (*The County Treasurer 405-713-1300 posts & collects actual tax amounts. Contact information HERE) | |||||||||||||
|---|---|---|---|---|---|---|---|---|---|---|---|---|---|
| Year | Market Value | Taxable Mkt Value | Gross Assessed | Exemption | Net Assessed | Millage | Est. Tax | Tax Savings | |||||
|
2026 |
87,000 |
46,432 |
5,107 |
0 |
5,107 |
122.90 |
$628 |
$548 |
|||||
|
2025 |
81,000 |
44,221 |
4,863 |
0 |
4,863 |
122.90 |
$598 |
$497 |
|||||
|
2024 |
76,500 |
42,116 |
4,632 |
0 |
4,632 |
123.89 |
$574 |
$469 |
|||||
|
2023 |
73,500 |
40,111 |
4,412 |
0 |
4,412 |
122.82 |
$542 |
$451 |
|||||
|
2022 |
56,000 |
38,201 |
4,201 |
0 |
4,201 |
117.63 |
$494 |
$230 |
|||||
| Property Account Status/Adjustments/Exemptions | ||
|---|---|---|
| Account # | Exemption Description | Amount |
|
R130323775 |
5% Capped Account |
0 |
| Property Deed Transaction History (Recorded in the County Clerk's Office) | |||||||
|---|---|---|---|---|---|---|---|
| Date | Type | Book | Page | Price | Grantor | Grantee | |
|
3/21/2016 |
|
Deeds |
$35,000 |
RAMOS PABLO |
CLOSE PROPERTIES LLC |
||
|
10/23/2001 |
|
Deeds |
$24,000 |
CLOSE CUSTOM CABINETS INC C/O KEVIN CLOSE |
RAMOS PABLO |
||
|
7/2/1998 |
|
Historical |
$21,833 |
RICHARDSON HOBART JR |
CLOSE CUSTOM CABINETS INC |
||
|
6/1/1979 |
|
Historical |
$0 |
|
RICHARDSON HOBART JR |
||
| Last Mailed Notice of Value (N.O.V.) Information/History | ||||||||
|---|---|---|---|---|---|---|---|---|
| Year | Date | Market Value | Taxable Market Value | Gross Assessed | Exemption | Net Assessed | ||
|
2026 |
02/23/2026 |
87,000 |
46,432 |
5,107 |
0 |
5,107 |
||
|
2025 |
02/14/2025 |
81,000 |
44,221 |
4,863 |
0 |
4,863 |
||
|
2024 |
02/13/2024 |
76,500 |
42,116 |
4,632 |
0 |
4,632 |
||
|
2023 |
02/14/2023 |
73,500 |
40,111 |
4,412 |
0 |
4,412 |
||
|
2022 |
03/15/2022 |
56,000 |
38,201 |
4,201 |
0 |
4,201 |
||
| Property Building Permit History | |||||||||||
|---|---|---|---|---|---|---|---|---|---|---|---|
| Issued | Permit # | Provided by | Bldg # | Description | Est Construction Cost | Status | |||||
| No Building Permit records returned. | |||||||||||
| Click button on building number to access detailed information: | ||||||
|---|---|---|---|---|---|---|
| Bldg # | Vacant/Improved Land | Bldg Description | Year Built | SqFt | # Stories | |
|
1 |
Improved |
Ranch 1 Story |
1963 |
806 |
1 Stories |
|