|
|
|
| Larry Stein Oklahoma County Assessor (405) 713-1200 - Public Access System |
|
|
|
|
|
|
| Real Property Display - Screen Produced 4/9/2026 7:56:46 AM | ||||
|---|---|---|---|---|
| Account: R130165040 | Type: Residential | Location: |
700 NW 89TH ST |
|
| Building Name/Occupant: |
|
OKLAHOMA CITY |
||
| Owner Name 1: | FERGUSON THOMAS LEVI |
Parcel PIN#: |
3732-13-016-5040 |
|
| Owner Name 2: | 1/4 section #: |
3732 |
||
| Owner Name 3: | Parent Acct: |
|
||
| Billing Address: | 1201 NE 69TH ST | Tax District: |
|
|
| City, State, Zip | OKLAHOMA CITY , OK 73111 | School System: |
Oklahoma City #89 |
|
|
Country: (If noted) |
Land Size: |
0.1607 Acres |
||
|
Land Value: 19,600 |
|
|||
|
Sect 33-T13N-R3W Qtr NW |
BRITTON CITY SECOND
Block
032
Lot
000
|
|||
| Full Legal Description: BRITTON CITY SECOND 032 000 LOTS 1 & 2 |
| Photo & Sketch (if available) | Comp Sales (ordered by relevancy) |
|
||||||||||||||||||
|
||||||||||||||||||||
| Value History (*The County Treasurer 405-713-1300 posts & collects actual tax amounts. Contact information HERE) | |||||||||||||
|---|---|---|---|---|---|---|---|---|---|---|---|---|---|
| Year | Market Value | Taxable Mkt Value | Gross Assessed | Exemption | Net Assessed | Millage | Est. Tax | Tax Savings | |||||
|
2026 |
152,500 |
120,607 |
13,266 |
0 |
13,266 |
122.90 |
$1,630 |
$431 |
|||||
|
2025 |
146,500 |
114,864 |
12,634 |
0 |
12,634 |
122.90 |
$1,553 |
$428 |
|||||
|
2024 |
142,500 |
109,395 |
12,033 |
0 |
12,033 |
123.89 |
$1,491 |
$451 |
|||||
|
2023 |
143,500 |
104,186 |
11,459 |
0 |
11,459 |
122.82 |
$1,408 |
$531 |
|||||
|
2022 |
114,500 |
99,225 |
10,914 |
0 |
10,914 |
117.63 |
$1,284 |
$198 |
|||||
| Property Account Status/Adjustments/Exemptions | ||
|---|---|---|
| Account # | Exemption Description | Amount |
|
R130165040 |
5% Capped Account |
0 |
| Property Deed Transaction History (Recorded in the County Clerk's Office) | ||||||||||
|---|---|---|---|---|---|---|---|---|---|---|
| Date | Type | Book | Page | Price | Grantor | Grantee | ||||
|
4/20/2020 |
|
Deeds |
$91,000 |
VB ONE LLC |
FERGUSON THOMAS LEVI |
|||||
|
2/12/2019 |
|
Deeds |
$68,000 |
HOCO PROPERTIES LLC |
VB ONE LLC |
|||||
|
5/1/2009 |
|
Deeds |
$41,500 |
EDWARDS CARTEYOU N |
HOCO PROPERTIES LLC |
|||||
|
6/9/1994 |
|
Historical |
$25,650 |
SECRETARY OF HOUSING |
EDWARDS CARTEYOU N |
|||||
|
10/14/1993 |
|
Historical |
$0 |
STANDARD FEDERAL |
SECRETARY OF HOUSING |
|||||
| Last Mailed Notice of Value (N.O.V.) Information/History | ||||||||
|---|---|---|---|---|---|---|---|---|
| Year | Date | Market Value | Taxable Market Value | Gross Assessed | Exemption | Net Assessed | ||
|
2026 |
02/23/2026 |
152,500 |
120,607 |
13,266 |
0 |
13,266 |
||
|
2025 |
02/14/2025 |
146,500 |
114,864 |
12,634 |
0 |
12,634 |
||
|
2024 |
02/13/2024 |
142,500 |
109,395 |
12,033 |
0 |
12,033 |
||
|
2023 |
02/14/2023 |
143,500 |
104,186 |
11,459 |
0 |
11,459 |
||
|
2022 |
03/15/2022 |
114,500 |
99,225 |
10,914 |
0 |
10,914 |
||
| Property Building Permit History | |||||||||||
|---|---|---|---|---|---|---|---|---|---|---|---|
| Issued | Permit # | Provided by | Bldg # | Description | Est Construction Cost | Status | |||||
| No Building Permit records returned. | |||||||||||
| Click button on building number to access detailed information: | ||||||
|---|---|---|---|---|---|---|
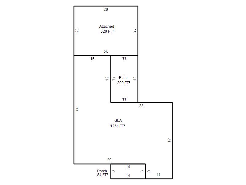
| Bldg # | Vacant/Improved Land | Bldg Description | Year Built | SqFt | # Stories | |
|
1 |
Improved |
Ranch 1 Story |
1950 |
1,351 |
1 Stories |
|