|
|
|
| Larry Stein Oklahoma County Assessor (405) 713-1200 - Public Access System |
|
|
|
|
|
|
| Real Property Display - Screen Produced 4/9/2026 7:57:50 AM | ||||
|---|---|---|---|---|
| Account: R130165695 | Type: Residential | Location: |
746 NW 89TH ST |
|
| Building Name/Occupant: |
|
OKLAHOMA CITY |
||
| Owner Name 1: | GOMEZ JESUS |
Parcel PIN#: |
3732-13-016-5695 |
|
| Owner Name 2: | 1/4 section #: |
3732 |
||
| Owner Name 3: | Parent Acct: |
|
||
| Billing Address: | 746 NW 89TH ST | Tax District: |
|
|
| City, State, Zip | OKLAHOMA CITY, OK 73114 | School System: |
Oklahoma City #89 |
|
|
Country: (If noted) |
Land Size: |
0.1607 Acres |
||
|
Land Value: 19,600 |
|
|||
|
Sect 33-T13N-R3W Qtr NW |
BRITTON CITY SECOND
Block
032
Lot
000
|
|||
| Full Legal Description: BRITTON CITY SECOND 032 000 LOTS 23 & 24 |
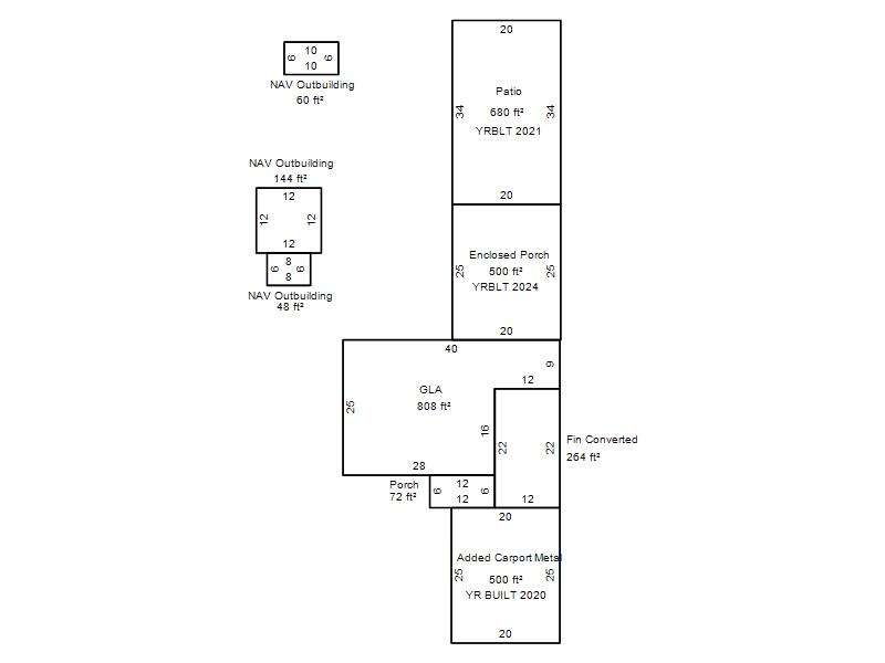
| Photo & Sketch (if available) | Comp Sales (ordered by relevancy) |
|
||||||||||||||||||
|
||||||||||||||||||||
| Value History (*The County Treasurer 405-713-1300 posts & collects actual tax amounts. Contact information HERE) | |||||||||||||
|---|---|---|---|---|---|---|---|---|---|---|---|---|---|
| Year | Market Value | Taxable Mkt Value | Gross Assessed | Exemption | Net Assessed | Millage | Est. Tax | Tax Savings | |||||
|
2026 |
132,000 |
94,708 |
10,417 |
0 |
10,417 |
122.90 |
$1,280 |
$504 |
|||||
|
2025 |
130,500 |
90,199 |
9,920 |
0 |
9,920 |
122.90 |
$1,219 |
$545 |
|||||
|
2024 |
95,000 |
57,809 |
6,358 |
0 |
6,358 |
123.89 |
$788 |
$507 |
|||||
|
2023 |
95,000 |
55,057 |
6,055 |
0 |
6,055 |
122.82 |
$744 |
$540 |
|||||
|
2022 |
73,500 |
52,436 |
5,767 |
0 |
5,767 |
117.63 |
$678 |
$273 |
|||||
| Property Account Status/Adjustments/Exemptions | ||
|---|---|---|
| Account # | Exemption Description | Amount |
|
R130165695 |
5% Capped Account |
0 |
| Property Deed Transaction History (Recorded in the County Clerk's Office) | ||||||||||
|---|---|---|---|---|---|---|---|---|---|---|
| Date | Type | Book | Page | Price | Grantor | Grantee | ||||
|
6/11/2020 |
|
Hmstd Off & |
$0 |
SNOW FAMILY LP |
GOMEZ JESUS |
|||||
|
2/2/2017 |
|
Hmstd Off & |
$0 |
TJ MANOR LLC |
SNOW FAMILY LP |
|||||
|
12/29/2008 |
|
Hmstd Off & |
$0 |
SNOW JAMES D & TRS ETAL SNOW JAMES D 2005 REV TRUST |
TJ MANOR LLC |
|||||
|
3/31/2006 |
|
Deeds |
$0 |
SNOW JAMES D & THRESEA |
SNOW JAMES D & TRS ETAL SNOW JAMES D 2005 REV TRUST |
|||||
|
5/6/2005 |
|
Other |
$0 |
MEFFORD JOANN |
SNOW JAMES D & THRESEA |
|||||
| Last Mailed Notice of Value (N.O.V.) Information/History | ||||||||
|---|---|---|---|---|---|---|---|---|
| Year | Date | Market Value | Taxable Market Value | Gross Assessed | Exemption | Net Assessed | ||
|
2026 |
02/23/2026 |
132,000 |
94,708 |
10,417 |
0 |
10,417 |
||
|
2025 |
03/28/2025 |
130,500 |
90,199 |
9,920 |
0 |
9,920 |
||
|
2024 |
02/13/2024 |
95,000 |
57,809 |
6,358 |
0 |
6,358 |
||
|
2023 |
02/14/2023 |
95,000 |
55,057 |
6,055 |
0 |
6,055 |
||
|
2022 |
03/15/2022 |
73,500 |
52,436 |
5,767 |
0 |
5,767 |
||
| Property Building Permit History | ||||||
|---|---|---|---|---|---|---|
| Issued | Permit # | Provided by | Bldg # | Description | Est Construction Cost | Status |
|
3/8/2023 |
BLDR-2022-09698 |
|
1 |
Add On |
5,500 |
Inactive |
|
4/17/2020 |
BLDR-2020-01376 |
|
1 |
Add On |
3,000 |
Inactive |
| Click button on building number to access detailed information: | ||||||
|---|---|---|---|---|---|---|
| Bldg # | Vacant/Improved Land | Bldg Description | Year Built | SqFt | # Stories | |
|
1 |
Improved |
Ranch 1 Story |
1950 |
808 |
1 Stories |
|