|
|
|
| Larry Stein Oklahoma County Assessor (405) 713-1200 - Public Access System |
|
|
|
|
|
|
| Real Property Display - Screen Produced 4/9/2026 7:57:50 AM | ||||
|---|---|---|---|---|
| Account: R130166200 | Type: Residential | Location: |
700 NW 88TH ST |
|
| Building Name/Occupant: |
|
OKLAHOMA CITY |
||
| Owner Name 1: | HAMMONS CHRISTOPHER D JR |
Parcel PIN#: |
3732-13-016-6200 |
|
| Owner Name 2: | 1/4 section #: |
3732 |
||
| Owner Name 3: | Parent Acct: |
|
||
| Billing Address: | 3024 SW 95TH ST | Tax District: |
|
|
| City, State, Zip | OKLAHOMA CITY, OK 73159 | School System: |
Oklahoma City #89 |
|
|
Country: (If noted) |
Land Size: |
0.1607 Acres |
||
|
Land Value: 19,600 |
|
|||
|
Sect 33-T13N-R3W Qtr NW |
BRITTON CITY SECOND
Block
035
Lot
000
|
|||
| Full Legal Description: BRITTON CITY SECOND 035 000 LOTS 1 & 2 |
| Photo & Sketch (if available) | Comp Sales (ordered by relevancy) |
|
||||||||||||||||||
|
||||||||||||||||||||
| Value History (*The County Treasurer 405-713-1300 posts & collects actual tax amounts. Contact information HERE) | |||||||||||||
|---|---|---|---|---|---|---|---|---|---|---|---|---|---|
| Year | Market Value | Taxable Mkt Value | Gross Assessed | Exemption | Net Assessed | Millage | Est. Tax | Tax Savings | |||||
|
2026 |
96,000 |
60,972 |
6,706 |
0 |
6,706 |
122.90 |
$824 |
$474 |
|||||
|
2025 |
95,000 |
58,069 |
6,387 |
0 |
6,387 |
122.90 |
$785 |
$499 |
|||||
|
2024 |
89,000 |
55,304 |
6,082 |
0 |
6,082 |
123.89 |
$754 |
$459 |
|||||
|
2023 |
87,000 |
52,671 |
5,792 |
0 |
5,792 |
122.82 |
$712 |
$464 |
|||||
|
2022 |
66,000 |
50,163 |
5,517 |
0 |
5,517 |
117.63 |
$649 |
$205 |
|||||
| Property Account Status/Adjustments/Exemptions | ||||||
|---|---|---|---|---|---|---|
| Account # | Exemption Description | Amount | ||||
| No adjustment/exemption records returned. | ||||||
| Property Deed Transaction History (Recorded in the County Clerk's Office) | ||||||||||
|---|---|---|---|---|---|---|---|---|---|---|
| Date | Type | Book | Page | Price | Grantor | Grantee | ||||
|
2/9/2026 |
|
Hmstd Off & |
$0 |
N&C ENTERPRISE LC |
HAMMONS CHRISTOPHER D JR |
|||||
|
3/24/2021 |
|
Hmstd Off & |
$0 |
HAMMONS CHRISTOPHER DEWON JR |
N&C ENTERPRISE LC |
|||||
|
6/14/2016 |
|
Other |
$0 |
HUNTER ELLA LORENE HUNTER JOEL ANTHONY |
HAMMONS CHRISTOPHER DEWON JR |
|||||
|
3/18/2003 |
|
Deeds |
$0 |
HUNTER ELLA L |
HUNTER ELLA LORENE TRS HUNTER ELLA LORENE REV LIV TRUST |
|||||
|
3/18/2003 |
|
Deeds |
$0 |
HUNTER ELLA LORENE TRS HUNTER ELLA LORENE REV LIV TRUST |
HUNTER ELLA LORENE HUNTER JOEL ANTHONY |
|||||
| Last Mailed Notice of Value (N.O.V.) Information/History | ||||||||
|---|---|---|---|---|---|---|---|---|
| Year | Date | Market Value | Taxable Market Value | Gross Assessed | Exemption | Net Assessed | ||
|
2026 |
02/23/2026 |
96,000 |
60,972 |
6,706 |
0 |
6,706 |
||
|
2025 |
02/14/2025 |
95,000 |
58,069 |
6,387 |
0 |
6,387 |
||
|
2024 |
02/13/2024 |
89,000 |
55,304 |
6,082 |
0 |
6,082 |
||
|
2023 |
02/14/2023 |
87,000 |
52,671 |
5,792 |
0 |
5,792 |
||
|
2022 |
03/15/2022 |
66,000 |
50,163 |
5,517 |
0 |
5,517 |
||
| Property Building Permit History | ||||||
|---|---|---|---|---|---|---|
| Issued | Permit # | Provided by | Bldg # | Description | Est Construction Cost | Status |
|
9/30/2007 |
10342336 |
OKLAHOMA CITY |
1 |
Burn - Trip |
2,000 |
Inactive |
| Click button on building number to access detailed information: | ||||||
|---|---|---|---|---|---|---|
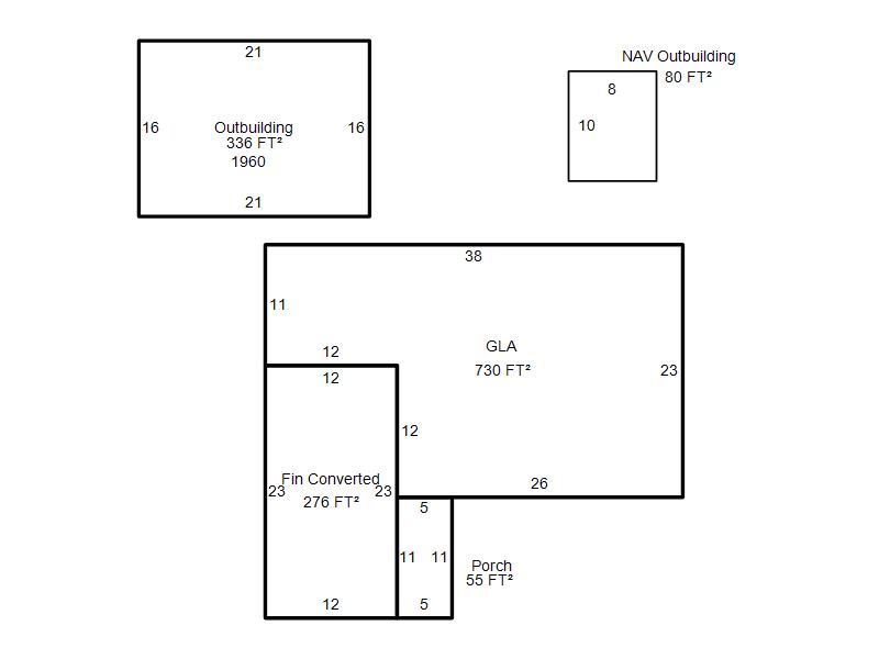
| Bldg # | Vacant/Improved Land | Bldg Description | Year Built | SqFt | # Stories | |
|
1 |
Improved |
Ranch 1 Story |
1951 |
730 |
1 Stories |
|