|
|
|
| Larry Stein Oklahoma County Assessor (405) 713-1200 - Public Access System |
|
|
|
|
|
|
| Real Property Display - Screen Produced 4/4/2026 7:19:01 AM | ||||
|---|---|---|---|---|
| Account: R146420500 | Type: Residential | Location: |
1003 CLOVER LN |
|
| Building Name/Occupant: |
|
OKLAHOMA CITY |
||
| Owner Name 1: | CHEEMA SHZAM ALI |
Parcel PIN#: |
3740-14-642-0500 |
|
| Owner Name 2: | RASOOL IRAM G | 1/4 section #: |
3740 |
|
| Owner Name 3: | Parent Acct: |
3740-14-642-0503 |
||
| Billing Address: | 1003 CLOVER LN | Tax District: |
|
|
| City, State, Zip | OKLAHOMA CITY, OK 73131-2402 | School System: |
Millwood #37 |
|
|
Country: (If noted) |
Land Size: |
0.7800 Acres |
||
|
Land Value: 34,208 |
|
|||
|
Sect 35-T13N-R3W Qtr NW |
MCCOURRY HEIGHTS ADD
Block
000
Lot
000
|
|||
| Full Legal Description: MCCOURRY HEIGHTS ADD ALL OF LOT 3 & PT OF LOTS 4 & 5 BEG AT SW/C LT 3 TH E160FT N61.70FT NE30.47FT NLY16.75FT NE4.59FT SE24.40FT NE13.76FT NE37.52FT NE28.24FT NE45.78FT NE23.40FT W277.65FT S222.50FT TO BEG EX A TR BEG 155.70FT E OF SW/C LOT 3 OF SD SUB DIV TH E4.30FT N61.70FT NELY30.47FT NELY16.75FT NE4.59FT SE24.40FT NE13.76FT NE37.52FT NE28.24FT NE45.78FT NE23.40FT W127.65FT SELY222.57FT TO BEG |
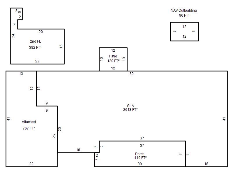
| Photo & Sketch (if available) | Comp Sales (ordered by relevancy) |
|
||||||||||||||||||
|
||||||||||||||||||||
| Value History (*The County Treasurer 405-713-1300 posts & collects actual tax amounts. Contact information HERE) | |||||||||||||
|---|---|---|---|---|---|---|---|---|---|---|---|---|---|
| Year | Market Value | Taxable Mkt Value | Gross Assessed | Exemption | Net Assessed | Millage | Est. Tax | Tax Savings | |||||
|
2026 |
543,000 |
442,578 |
48,683 |
0 |
48,683 |
131.17 |
$6,386 |
$1,449 |
|||||
|
2025 |
529,913 |
421,503 |
46,364 |
0 |
46,364 |
131.17 |
$6,082 |
$1,564 |
|||||
|
2024 |
499,000 |
409,624 |
45,058 |
0 |
45,058 |
132.60 |
$5,975 |
$1,304 |
|||||
|
2023 |
509,000 |
390,119 |
42,912 |
0 |
42,912 |
134.52 |
$5,773 |
$1,759 |
|||||
|
2022 |
467,500 |
371,542 |
40,869 |
0 |
40,869 |
129.77 |
$5,304 |
$1,370 |
|||||
| Property Account Status/Adjustments/Exemptions | ||
|---|---|---|
| Account # | Exemption Description | Amount |
|
R146420500 |
5% Capped Account |
0 |
| Property Deed Transaction History (Recorded in the County Clerk's Office) | ||||||||||
|---|---|---|---|---|---|---|---|---|---|---|
| Date | Type | Book | Page | Price | Grantor | Grantee | ||||
|
5/29/2024 |
|
Hmstd Off & |
$0 |
THOMPSON NATHAN |
CHEEMA SHZAM ALI |
|||||
|
11/4/2016 |
|
Deeds |
$0 |
CHEEMA SHZAM ALI RASOOL IRAM G |
CHEEMA SHZAM ALI |
|||||
|
5/12/2014 |
|
Deeds |
$315,500 |
NEAL MCGEE HOMES INC |
CHEEMA SHZAM ALI & IRAM G RASOOL |
|||||
|
11/22/2013 |
|
Deeds |
$0 |
JOURNAL ENTRY OF JUDGMENT |
NEAL MCGEE HOMES INC |
|||||
|
7/13/2010 |
|
Deeds |
$0 |
NEAL MCGEE HOMES INC |
NEAL MCGEE HOMES INC |
|||||
| Last Mailed Notice of Value (N.O.V.) Information/History | ||||||||
|---|---|---|---|---|---|---|---|---|
| Year | Date | Market Value | Taxable Market Value | Gross Assessed | Exemption | Net Assessed | ||
|
2026 |
02/23/2026 |
543,000 |
442,578 |
48,683 |
0 |
48,683 |
||
|
2025 |
02/14/2025 |
540,000 |
430,105 |
47,310 |
0 |
47,310 |
||
|
2024 |
02/13/2024 |
499,000 |
409,624 |
45,058 |
0 |
45,058 |
||
|
2023 |
02/14/2023 |
509,000 |
390,119 |
42,912 |
0 |
42,912 |
||
|
2022 |
03/15/2022 |
467,500 |
371,542 |
40,869 |
0 |
40,869 |
||
| Property Building Permit History | ||||||
|---|---|---|---|---|---|---|
| Issued | Permit # | Provided by | Bldg # | Description | Est Construction Cost | Status |
|
7/29/2013 |
10454440 |
OKLAHOMA CITY |
1 |
Main Dwellin |
250,000 |
Inactive |
| Click button on building number to access detailed information: | ||||||
|---|---|---|---|---|---|---|
| Bldg # | Vacant/Improved Land | Bldg Description | Year Built | SqFt | # Stories | |
|
1 |
Improved |
1½ Story Fin |
2014 |
2,995 |
1.5 Stories |
|