|
|
|
| Larry Stein Oklahoma County Assessor (405) 713-1200 - Public Access System |
|
|
|
|
|
|
| Real Property Display - Screen Produced 4/4/2026 7:19:19 AM | ||||
|---|---|---|---|---|
| Account: R146421500 | Type: Residential | Location: |
1020 SHAMROCK RD |
|
| Building Name/Occupant: |
|
OKLAHOMA CITY |
||
| Owner Name 1: | MUSE NEIL A & LINDA R |
Parcel PIN#: |
3740-14-642-1500 |
|
| Owner Name 2: | 1/4 section #: |
3740 |
||
| Owner Name 3: | Parent Acct: |
|
||
| Billing Address: | 1020 SHAMROCK RD | Tax District: |
|
|
| City, State, Zip | OKLAHOMA CITY, OK 73131-2424 | School System: |
Millwood #37 |
|
|
Country: (If noted) |
Land Size: |
1.0525 Acres |
||
|
Land Value: 28,690 |
|
|||
|
Sect 35-T13N-R3W Qtr NW |
MCCOURRY HEIGHTS ADD
Block
000
Lot
015
|
|||
| Full Legal Description: MCCOURRY HEIGHTS ADD 000 015 |
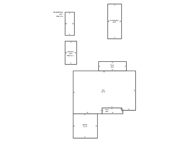
| Photo & Sketch (if available) | Comp Sales (ordered by relevancy) |
|
||||||||||||||||||
|
||||||||||||||||||||
| Value History (*The County Treasurer 405-713-1300 posts & collects actual tax amounts. Contact information HERE) | |||||||||||||
|---|---|---|---|---|---|---|---|---|---|---|---|---|---|
| Year | Market Value | Taxable Mkt Value | Gross Assessed | Exemption | Net Assessed | Millage | Est. Tax | Tax Savings | |||||
|
2026 |
292,500 |
206,569 |
22,721 |
1,000 |
21,721 |
131.17 |
$2,849 |
$1,371 |
|||||
|
2025 |
285,000 |
200,553 |
22,060 |
1,000 |
21,060 |
131.17 |
$2,763 |
$1,350 |
|||||
|
2024 |
268,000 |
194,712 |
21,417 |
1,000 |
20,417 |
132.60 |
$2,707 |
$1,202 |
|||||
|
2023 |
271,000 |
189,041 |
20,793 |
1,000 |
19,793 |
134.52 |
$2,663 |
$1,347 |
|||||
|
2022 |
238,000 |
183,535 |
20,188 |
1,000 |
19,188 |
129.77 |
$2,490 |
$907 |
|||||
| Property Account Status/Adjustments/Exemptions | ||
|---|---|---|
| Account # | Exemption Description | Amount |
|
R146421500 |
3% Cap Homestead |
0 |
|
R146421500 |
Homestead |
1,000 |
| Property Deed Transaction History (Recorded in the County Clerk's Office) | |||||||
|---|---|---|---|---|---|---|---|
| Date | Type | Book | Page | Price | Grantor | Grantee | |
|
4/5/2002 |
|
Deeds |
$0 |
MUSE NEIL A |
MUSE NEIL A & LINDA R |
||
|
1/4/2002 |
|
Deeds |
$0 |
MUSE LINDA R MUSE NEIL A |
MUSE NEIL A |
||
|
6/1/2000 |
|
Other |
$0 |
TOM TAYLOR CONST COMPANY INC |
MUSE LINDA R MUSE NEIL A |
||
|
12/21/1999 |
|
Other |
$0 |
MUSE NEAL A & LINDA R |
TOM TAYLOR CONST COMPANY INC |
||
|
6/1/1986 |
|
Historical |
$47,500 |
|
MUSE NEAL A & LINDA R |
||
| Last Mailed Notice of Value (N.O.V.) Information/History | ||||||||
|---|---|---|---|---|---|---|---|---|
| Year | Date | Market Value | Taxable Market Value | Gross Assessed | Exemption | Net Assessed | ||
|
2026 |
02/23/2026 |
292,500 |
206,569 |
22,721 |
1,000 |
21,721 |
||
|
2025 |
02/14/2025 |
285,000 |
200,553 |
22,060 |
1,000 |
21,060 |
||
|
2024 |
02/13/2024 |
268,000 |
194,712 |
21,417 |
1,000 |
20,417 |
||
|
2023 |
02/14/2023 |
271,000 |
189,041 |
20,793 |
1,000 |
19,793 |
||
|
2022 |
03/15/2022 |
238,000 |
183,535 |
20,188 |
1,000 |
19,188 |
||
| Property Building Permit History | ||||||
|---|---|---|---|---|---|---|
| Issued | Permit # | Provided by | Bldg # | Description | Est Construction Cost | Status |
|
1/10/2000 |
10241389 |
OKLAHOMA CITY |
1 |
Main Dwellin |
102,000 |
Inactive |
|
11/30/1999 |
10241390 |
OKLAHOMA CITY |
1 |
Demolish |
0 |
Inactive |
|
7/26/1999 |
10241391 |
OKLAHOMA CITY |
1 |
Burn - Trip |
40,000 |
Inactive |
| Click button on building number to access detailed information: | ||||||
|---|---|---|---|---|---|---|
| Bldg # | Vacant/Improved Land | Bldg Description | Year Built | SqFt | # Stories | |
|
1 |
Improved |
Ranch 1 Story |
2000 |
1,877 |
1 Stories |
|